Maison à vendre 4 pièces • 3 chambres • 98 m2 Saint-Pardoux-Isaac
Prix au m² : 2 577 € / m²
Référence 53951
Description du bien
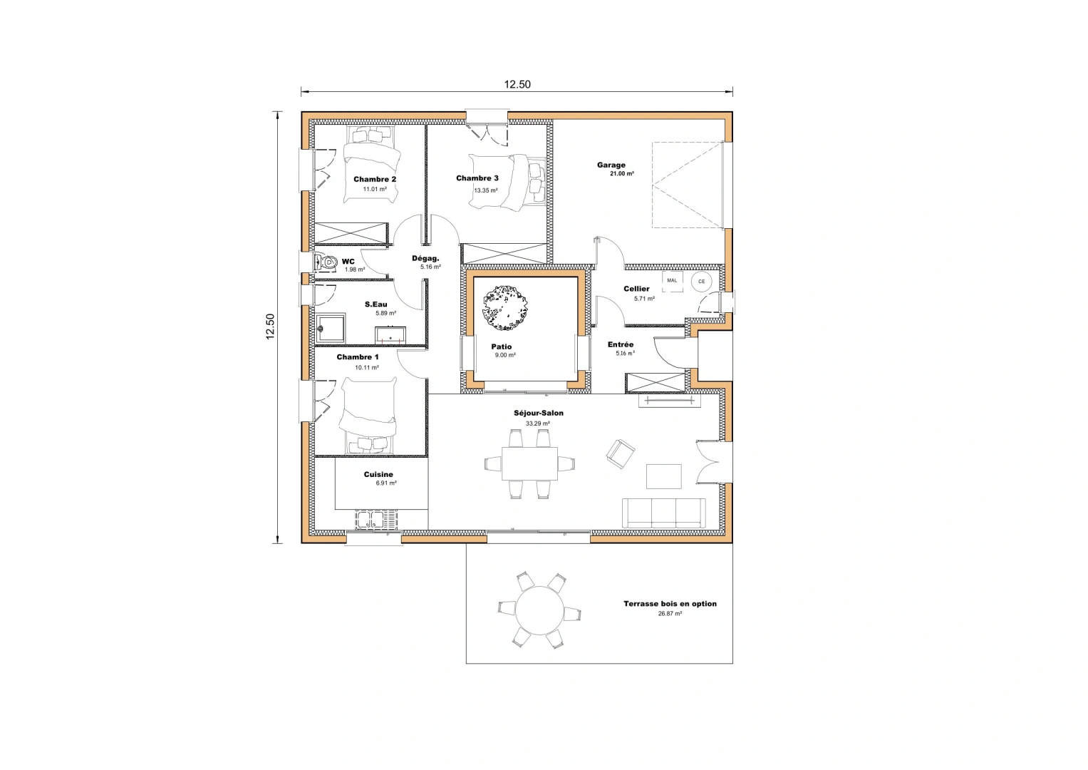
## Terrain exceptionnel à Saint-Pardoux-IsaacDécouvrez cette opportunité unique à Saint-Pardoux-Isaac (47800), une commune située dans le département de Lot-et-Garonne. Ce village offre un cadre de vie paisible, entouré de campagnes verdoyantes et proche des commerces essentiels. Le terrain proposé est situé sur une surface de 1000 m², idéal pour un projet de construction personnalisé.## Maison modèle Patio : modernité et lumièreNous vous proposons la construction d'une maison modèle Patio, un modèle moderne qui allie lumière et confort :- 98 m² de surface habitable- 3 chambres- 1 salle d'eau- Grand garage- Terrasse en bois- Patio central visible de toutes les pièces, véritable cœur de la maison, apportant lumière et intimitéCe modèle Patio offre un espace de vie lumineux et une distribution optimale des pièces, garantissant intimité et convivialité. Le chauffage gainable assure une répartition homogène de la chaleur et une excellente efficacité énergétique, contribuant au confort et aux économies d'énergie.## Un projet clé en mainAssurance dommage ouvrage incluse. L'ensemble du projet comprend la maison (prête à décorer), le terrain de 1000 m² à Saint-Pardoux-Isaac (valeur 15 000 €), les frais de notaire, les coûts d'adaptation au sol et les coûts liés au raccordement des différents réseaux techniques ainsi que l'assainissement individuel et s'élève au prix de 252 465€.Terrain vendu par son propriétaire sans entremise du constructeur MAISONS SIC.## Pour plus d'informationsContactez Camille SIMON au 06 59 47 39 86 pour découvrir ce projet sur-mesure et concrétiser votre rêve immobilier.
Caractéristiques du bien
-
Intérieur
- Surface 98 m2
- 3 Chambres
LOCALISATION DU BIEN
Quartier Saint-Pardoux-Isaac à Saint-Pardoux-Isaac
Géorisque
Informations financières
A propos du prix
Prix de vente
Prix au m² : 2 577 € / m²

Calcul de vos mensualités
- Montant emprunté
- Coût des intérêts
-
Coût des intérêts :
83041 €