Terrain à batir à vendre Saint-Étienne-du-Valdonnez

87 000 €

Référence  AG 664

decoration todo
L'agence

43 annonces

Marvejols

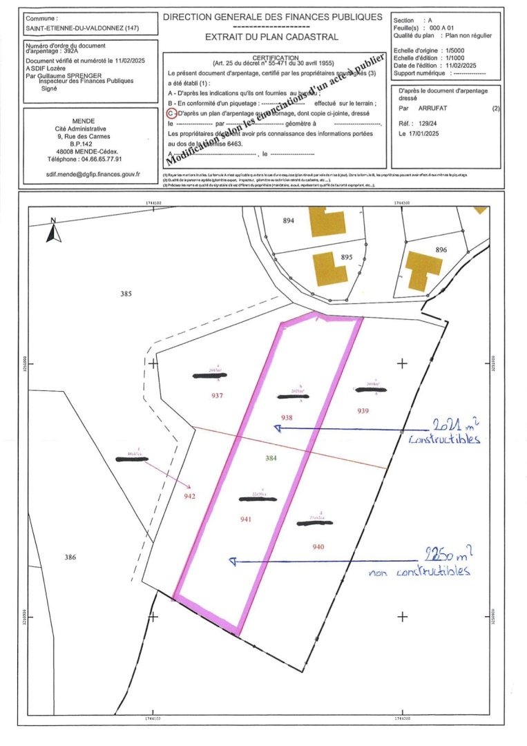
Description du bien

Ensemble de deux lots comprenant : Une parcelle constructible de 2021 m², raccordée au réseau d’assainissement communal. Une parcelle non constructible de 2250 m². Les réseaux d’eau potable et d’électricité se trouvent à proximité. L’ensemble est exposé plein sud et bénéficie d’un emplacement idéal. CU valide  Pour plus d'informations ou pour visiter, n'hésitez pas a contacter votre agent l'AGENCE, Sébastien MASSADOR au 06 83 04 20 58 ou smassador.lagence@orange.fr 

Afficher plus Afficher moins

Caractéristiques du bien

  • Copropriété

    • Nombre de lots: 2

LOCALISATION DU BIEN

Quartier Saint-Étienne-du-Valdonnez à Saint-Étienne-du-Valdonnez

Points d'intérêts

Transports

Éducation

Services publics

Commerces & Services

Géorisque

Les informations sur les risques auxquels ce bien est exposé sont disponibles sur le site Géorisques https://www.georisques.gouv.fr

Informations financières

A propos du prix

Prix de vente

87 000 €

Calcul de vos mensualités

Simulez vos prêts en quelques clics !

*Les données de ce simulateur sont indicatives et non contractuelles. Calcul hors assurance et frais de garantie.

Vos mensualités
298 € / mois
  • Montant emprunté
  • Coût des intérêts
  • Coût des intérêts :

    28616
    (d’après le taux d’intérêt annuel moyen : 3.3 %)
decoration
L'agence

43 annonces

Marvejols

Ce bien vous intéresse ?
*
*
*
*
*
*