property

Maison à vendre 4 pièces • 3 chambres • 123 m2

59 500 €

Maison à vendre 4 pièces • 3 chambres • 123 m2 Cuves

59 500 €

Prix au m² : 484 € / m²

Référence  3302_CL

decoration todo
AGENCE Avranches - Brecey

312 annonces

Avranches

Description du bien

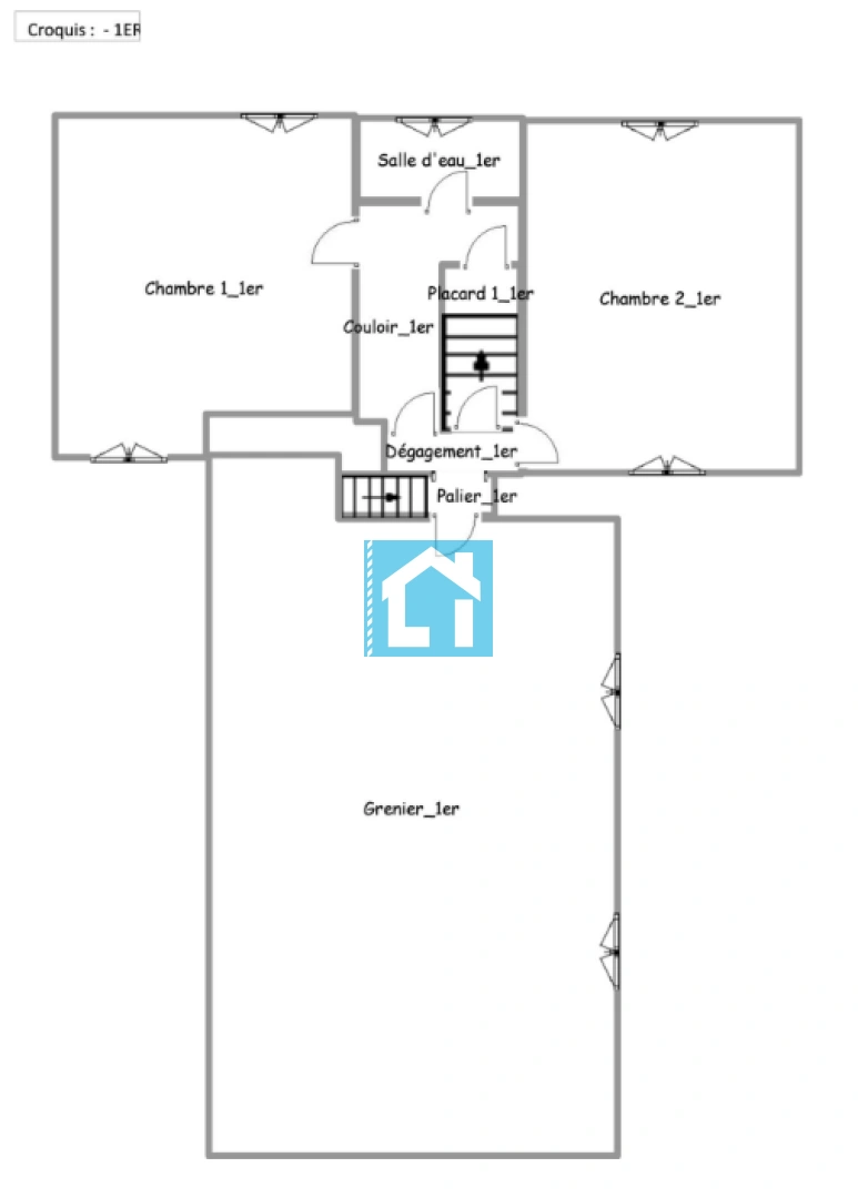
Loslier Immobilier, Moins d'honoraires, Plus de services Cindy LEVERD vous propose à la vente cette maison de bourg  à rénover, située à Cuves, soit à 5 km de Brécey, 15 km de Sourdeval et 20 km de Villedieu-les-Poêles, Avranches et Mortain. Elle est composée :  Au RDC : pièce de vie avec cuisine, buanderie, chambre, salle d'eau, WC, Cave Au 1er étage : 2 chambres, salle d'eau, grenier aménageable Au 2nd étage : grenier  aménageable En extérieur : terrain arboré Assainissement tout à l'égout N’hésitez pas à contacter votre conseillère en immobilier pour plus d’information au 07 50 40 75 73 ou sur cindy.leverd.li@gmail.com. Les informations sur les risques auxquels ce bien est exposé sont disponibles sur le site Géorisques : www.georisques.gouv.fr

Afficher plus Afficher moins

Caractéristiques du bien

  • Intérieur

    • Surface 123 m2
    • 3 Chambres
    • 2 WC
    • Cheminée

Diagnostics énergétiques

Consommation énergétique

Emission de gaz

LOCALISATION DU BIEN

Quartier Cuves à Cuves

Points d'intérêts

Transports

Éducation

Services publics

Commerces & Services

Géorisque

Les informations sur les risques auxquels ce bien est exposé sont disponibles sur le site Géorisques https://www.georisques.gouv.fr

Informations financières

A propos du prix

Prix de vente

59 500 €

Prix au m² : 484 € / m²

  • Taxe foncière
    561 € / an

Calcul de vos mensualités

Simulez vos prêts en quelques clics !

*Les données de ce simulateur sont indicatives et non contractuelles. Calcul hors assurance et frais de garantie.

Vos mensualités
204 € / mois
  • Montant emprunté
  • Coût des intérêts
  • Coût des intérêts :

    19571
    (d’après le taux d’intérêt annuel moyen : 3.3 %)
decoration
AGENCE Avranches - Brecey

312 annonces

Avranches

Ce bien vous intéresse ?
*
*
*
*
*
*