property

Maison à vendre 4 pièces • 1 chambre • 200 m2

20 000 €

Maison à vendre 4 pièces • 1 chambre • 200 m2 Sarcey

20 000 €

Prix au m² : 100 € / m²

Référence  964Vente

decoration todo
Agence Immobilière VOIROL-CHAUMONT

20 annonces

Chaumont

Description du bien

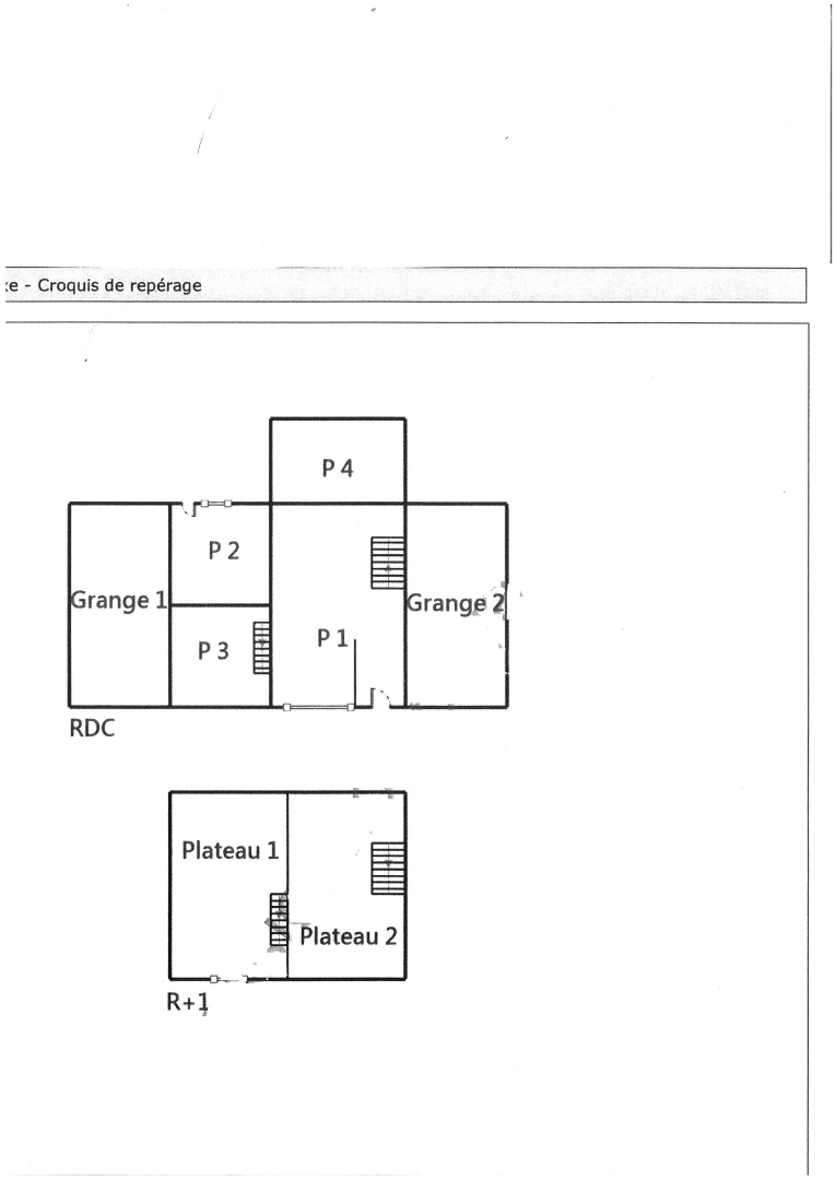
Un bâtiment totalement à rénover d'environ 200 m² sur un terrain de 650 m². Possibilité de faire deux logements avec garage. Grand verger de 350 m².

Afficher plus Afficher moins

Caractéristiques du bien

  • Intérieur

    • Surface 200 m2
    • 1 Chambres

LOCALISATION DU BIEN

Sarcey

Points d'intérêts

Transports

Éducation

Services publics

Commerces & Services

Géorisque

Les informations sur les risques auxquels ce bien est exposé sont disponibles sur le site Géorisques https://www.georisques.gouv.fr

Informations financières

A propos du prix

Prix de vente

20 000 €

Prix au m² : 100 € / m²

Calcul de vos mensualités

Simulez vos prêts en quelques clics !

*Les données de ce simulateur sont indicatives et non contractuelles. Calcul hors assurance et frais de garantie.

Vos mensualités
69 € / mois
  • Montant emprunté
  • Coût des intérêts
  • Coût des intérêts :

    6578
    (d’après le taux d’intérêt annuel moyen : 3.3 %)
decoration
Agence Immobilière VOIROL-CHAUMONT

20 annonces

Chaumont

Ce bien vous intéresse ?
*
*
*
*
*
*