property

Appartement à vendre 2 pièces • 1 chambre • 42.49 m2

187 000 €

Appartement à vendre 2 pièces • 1 chambre • 42.49 m2 Villers-lès-Nancy

187 000 €

Prix au m² : 4 402 € / m²

Référence  t2 villers

decoration todo
ID IMMOBILIER

107 annonces

Metz

Description du bien

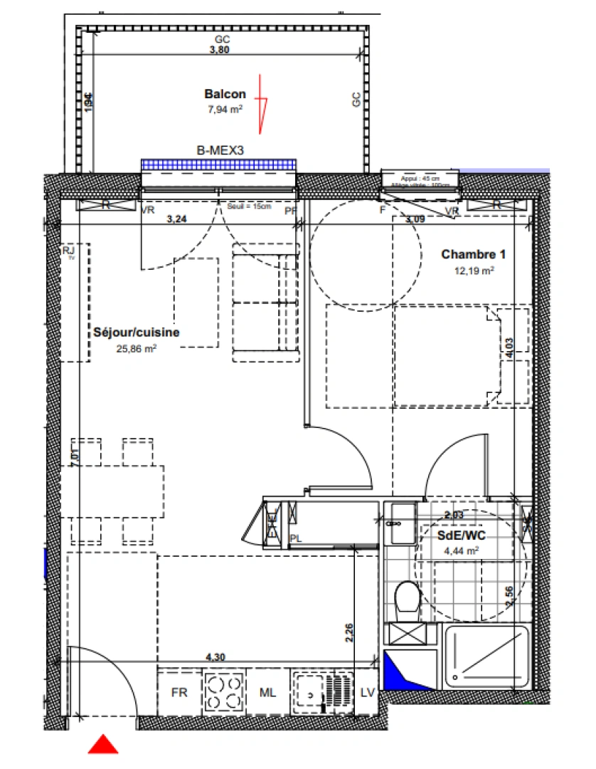
Idéal pour primo-accédants ou investisseurs, cet appartement 2 pièces de 42,49 m² est situé au 1er étage de la résidence récente à Villers-lès-Nancy. Il offre un cadre de vie calme et verdoyant à proximité immédiate du Parc de la Coulée Verte. Il se compose d’un séjour/cuisine lumineux de 25,86 m² ouvrant sur un balcon de 7,94 m², d’une chambre de 12,19 m² et d’une salle d’eau avec WC. Les prestations modernes répondent aux normes RE2020 et assurent un excellent confort thermique et acoustique. La résidence, contemporaine et sécurisée, dispose d’un ascenseur, d’un local à vélos et de stationnements privatifs. L’environnement est paisible et verdoyant, tout en restant proche du centre-ville et des commodités essentielles. Jusqu'au 30/11/2025 profitez des frais de notaire offerts !

Afficher plus Afficher moins

Caractéristiques du bien

  • Intérieur

    • Surface 42.49 m2
    • 1 Chambres
    • 1 WC
  • Extérieur

    • 1 balcon
  • Surfaces annexes

    • Etage 1
    • Bâtiment de 3 étages
  • Copropriété

    • Nombre de lots: 156
  • Accessibilité

    • Accès PMR
  • Environnement

    • Exposition NORD-OUEST
    • Vue Nord Ouest

Diagnostics énergétiques

Consommation énergétique

Emission de gaz

LOCALISATION DU BIEN

Quartier Gec Village à Villers-lès-Nancy

Points d'intérêts

Transports

Éducation

Services publics

Commerces & Services

Géorisque

Les informations sur les risques auxquels ce bien est exposé sont disponibles sur le site Géorisques https://www.georisques.gouv.fr

Informations financières

A propos du prix

Prix de vente

187 000 €

Prix au m² : 4 402 € / m²

Calcul de vos mensualités

Simulez vos prêts en quelques clics !

*Les données de ce simulateur sont indicatives et non contractuelles. Calcul hors assurance et frais de garantie.

Vos mensualités
641 € / mois
  • Montant emprunté
  • Coût des intérêts
  • Coût des intérêts :

    61508
    (d’après le taux d’intérêt annuel moyen : 3.3 %)
decoration
ID IMMOBILIER

107 annonces

Metz

Ce bien vous intéresse ?
*
*
*
*
*
*