property

Maison à vendre 9 pièces • 9 chambres • 209 m2

281 000 €

exclusivité

Maison à vendre 9 pièces • 9 chambres • 209 m2 Roubaix

281 000 €

Prix au m² : 1 345 € / m²

Référence  234

decoration todo
Duquesnoy Immobilier

34 annonces

Wasquehal

Description du bien

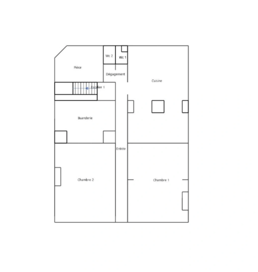
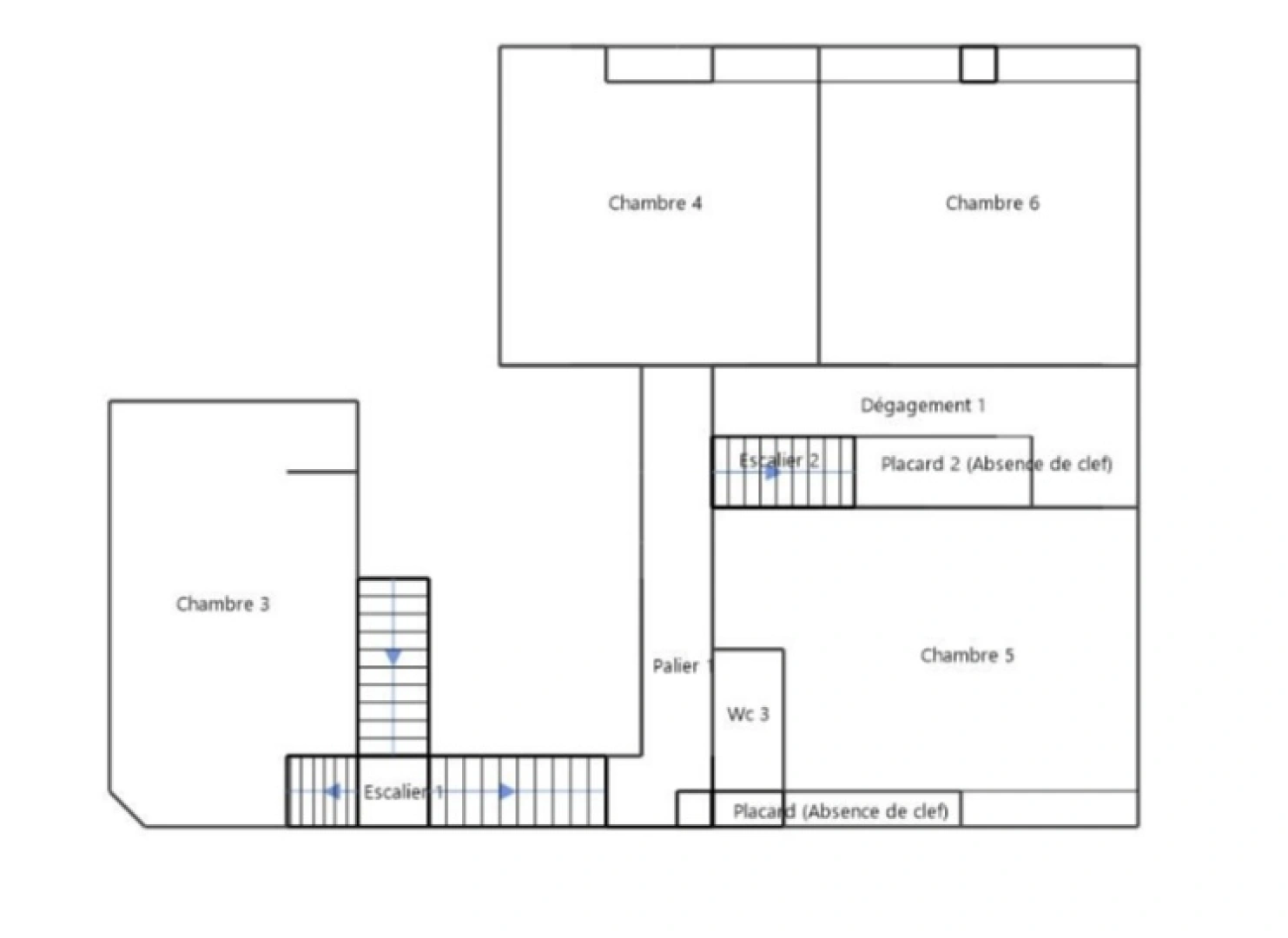
MAISON AMENAGEE POUR LA COLOCATION SITUEE PROCHE DU METRO ALSACE ET GARE DE ROUBAIX. Elle est composée de 9 chambres meublées avec chacune leur douche. Une cuisine commune, une buanderie, 4 wc. Les revenus locatifs etaient de 40080€ par an hors charges. Idéalement placé (proche du centre ville et des transports). Référence annonce : 234 Date de réalisation du diagnostic : 02/03/20256 Consommation énergie primaire : E 280 Consommation énergie finale : 122 Les informations sur les risques auxquels ce bien est exposé sont disponibles sur le site Géorisques : www.georisques.gouv.fr Le prix indiqué comprend les honoraires à la charge de l'acheteur : 4.07% TTC du prix du bien hors honoraires Prix hors honoraires : 270000 €

Afficher plus Afficher moins

Caractéristiques du bien

  • Intérieur

    • Surface 209 m2
    • 9 Chambres
    • 4 WC
    • 1 Salle de bain/eau
    • Cuisine EQUIPEE

Diagnostics énergétiques

Consommation énergétique

Emission de gaz

LOCALISATION DU BIEN

Quartier Grand Quartier 2 à Roubaix

Points d'intérêts

Transports

Éducation

Services publics

Commerces & Services

Géorisque

Les informations sur les risques auxquels ce bien est exposé sont disponibles sur le site Géorisques https://www.georisques.gouv.fr

Informations financières

A propos du prix

Prix de vente

281 000 €

Prix au m² : 1 345 € / m²

  • Taxe foncière
    2 133 € / an

Calcul de vos mensualités

Simulez vos prêts en quelques clics !

*Les données de ce simulateur sont indicatives et non contractuelles. Calcul hors assurance et frais de garantie.

Vos mensualités
964 € / mois
  • Montant emprunté
  • Coût des intérêts
  • Coût des intérêts :

    92426
    (d’après le taux d’intérêt annuel moyen : 3.3 %)
decoration
Duquesnoy Immobilier

34 annonces

Wasquehal

Ce bien vous intéresse ?
*
*
*
*
*
*