property

Maison à vendre 5 pièces • 4 chambres • 101 m2

390 000 €

Maison à vendre 5 pièces • 4 chambres • 101 m2 Cucq

390 000 €

Prix au m² : 3 862 € / m²

Référence  MG678

decoration todo
Agence du Golf

84 annonces

Cucq

Description du bien

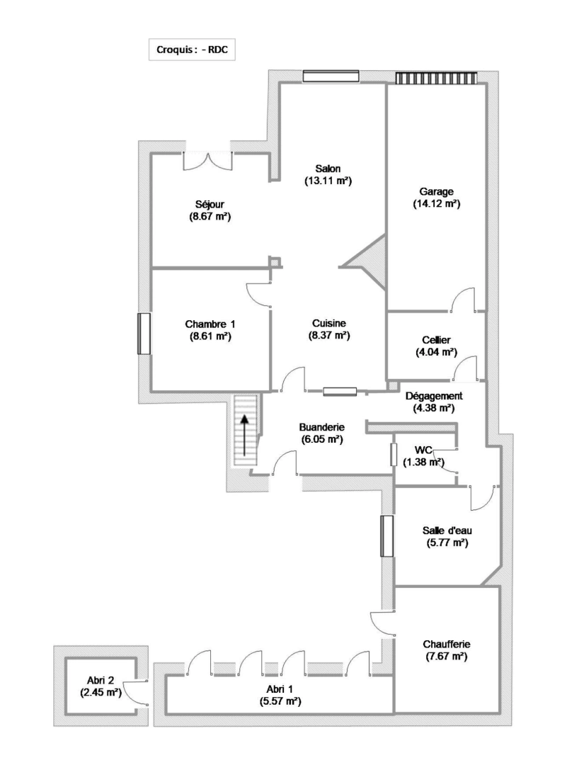
Maison à rénover, pleine de charme et de caractère.Construite dans les années 50, cette maison située à proximité du centre de Stella offre un beau potentiel. Au rez-de-chaussée, elle se compose d’un salon-séjour avec cuisine ouverte, d’une chambre, d’une buanderie, d’un cellier avec accès au garage, d’un WC, d’une salle d’eau ainsi que d’une chaufferie. Deux abris de jardin sont également accessibles à l’arrière de la maison. À l’étage, vous trouverez une chambre en enfilade ainsi que deux autres chambres supplémentaires. La maison nécessite d’importants travaux de rénovation afin de répondre aux standards actuels, mais bénéficie d’un emplacement idéal : à 500 m du centre-ville et à seulement 50 m des dunes, dans un secteur calme et résidentiel. Le tout est édifié sur un terrain d’environ 300 m². CONTACT : GIRARD Mathias 06 71 18 05 59

Afficher plus Afficher moins

Caractéristiques du bien

  • Intérieur

    • Surface 101 m2
    • 4 Chambres
    • 2 WC
    • 1 Salle de bain/eau
    • Cuisine EQUIPEE
    • Cheminée
  • Extérieur

    • Terrasse
  • Surfaces annexes

    • Garage
    • Cave
  • Copropriété

    • ANCIEN
  • Environnement

    • Exposition NORD-SUD

Diagnostics énergétiques

Consommation énergétique

Emission de gaz

LOCALISATION DU BIEN

Quartier Cucq à Cucq

Points d'intérêts

Transports

Éducation

Services publics

Commerces & Services

Géorisque

Les informations sur les risques auxquels ce bien est exposé sont disponibles sur le site Géorisques https://www.georisques.gouv.fr

Informations financières

A propos du prix

Prix de vente

390 000 €

Prix au m² : 3 862 € / m²

Calcul de vos mensualités

Simulez vos prêts en quelques clics !

*Les données de ce simulateur sont indicatives et non contractuelles. Calcul hors assurance et frais de garantie.

Vos mensualités
1338 € / mois
  • Montant emprunté
  • Coût des intérêts
  • Coût des intérêts :

    128279
    (d’après le taux d’intérêt annuel moyen : 3.3 %)
decoration
Agence du Golf

84 annonces

Cucq

Ce bien vous intéresse ?
*
*
*
*
*
*