property

Maison à vendre 5 pièces • 3 chambres • 101 m2

319 000 €

Maison à vendre 5 pièces • 3 chambres • 101 m2 Lezoux

319 000 €

Prix au m² : 3 159 € / m²

Référence  2735

decoration todo
Lalle Immobilier Riom

25 annonces

Riom

Description du bien

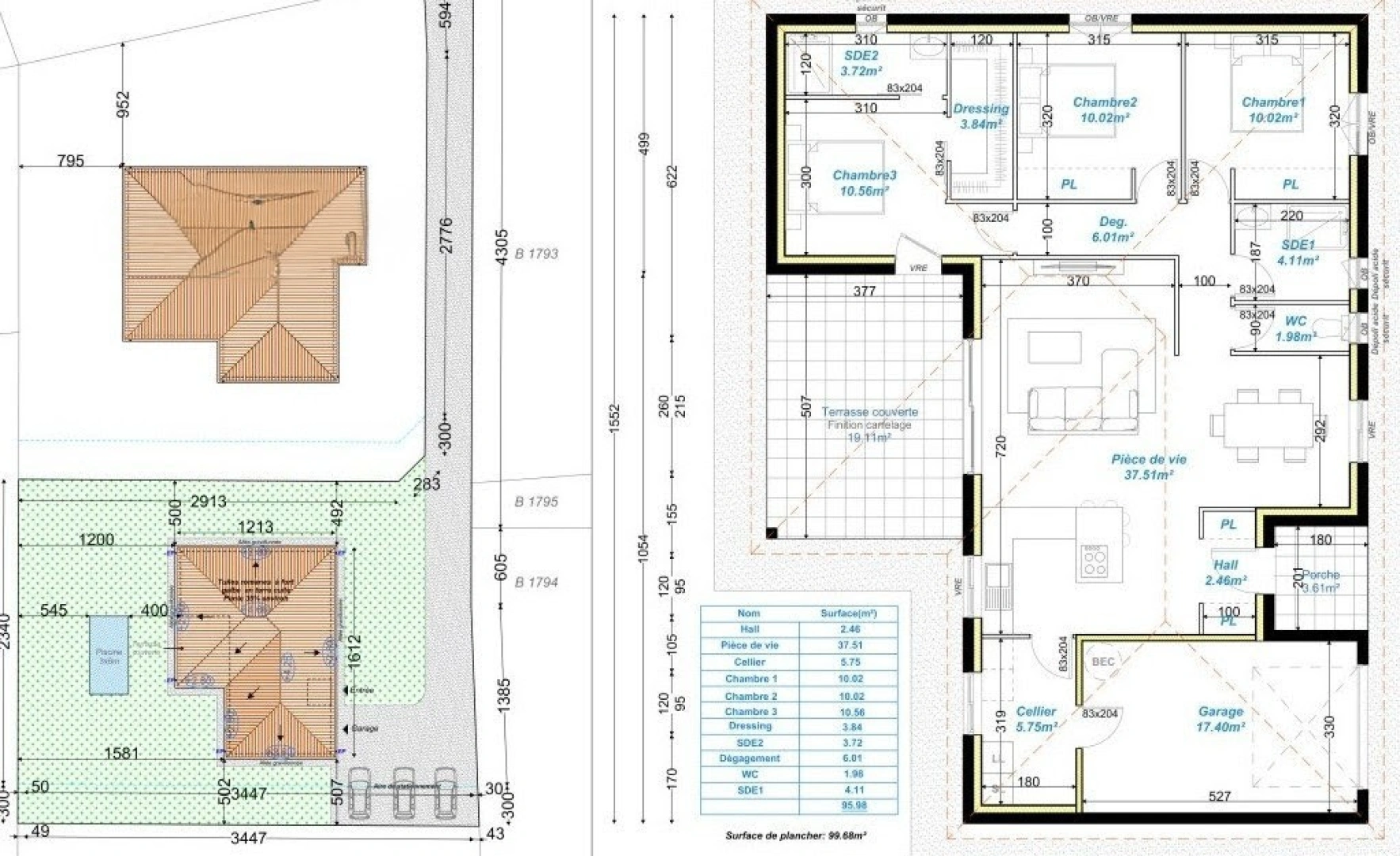
En collaboration avec HOME CONCEPTION, nous vous présentons cette maison d'environ 101m² de plain-pied comprenant : - Pièce de vie de 37m² - 3 chambres dont une suite parentale - salle d'eau - wc - terrasse - Cellier - Garage   Quelques précisions sur cette maison :   Ensemble des éléments administratifs réalisés par nos soins (Permis de Construire déjà accepté, cette maison peut débuter rapidement). Ensemble des études structures comprises (étude de sol G2Pro, G3, étude béton, étude charpente, Fluide...) Contrat CCMI donc ensemble des garanties (Dommages ouvrages, Techniques, Biennale, Décennale) compris dans ce prix ;   Maison sur Vide sanitaire Soubassement sous vide sanitaire en béton Armé ; Maison en briques hautement isolante BGV4G de chez BIOBRIC ; Plancher béton à rupture de pont thermique ; Charpente industrielle renforcée avec entraxe des fermettes répétée tous les 60cm ; Couverture en Tuile Terre Cuite ; Doublage et ensemble plâtrerie sur ossature métallique avec isolation des murs par laine de verre haute densité 12 à 14cm épaisseur suivant étude thermique ; Ensemble des sols des pièces de vie prévus dans ce chiffrage carrelage dans les pièces de vie; Ensemble des éléments sanitaires prévus et fournis (meuble vasque, WC suspendu, robinetterie douche... excepté la cuisine) ; Chauffage Pompe à Chaleur Air/AIR ; Grand choix à votre disposition afin de personnaliser votre maison : revêtement de sols, portes intérieures, porte d'entrée-de garage ; Faïence, robinetterie et éléments sanitaires... A prévoir dans votre investissement en plus : La réalisation des peintures (possibilité en SUS) ; L'achat de la cuisine (à définir avec votre cuisiniste, ou le nôtre) ; Il est possible de faire des modifications sur le plan si vous le souhaitez. Tout peut être envisagé si nous fixons les choses avant le démarrage de cette construction.   FRAIS DE NOTAIRE UNIQUEMENT SUR LA PARTIE TERRAIN SOIT ENVIRON 5500€

Afficher plus Afficher moins

Caractéristiques du bien

  • Intérieur

    • Surface 101 m2
    • 3 Chambres
  • Surfaces annexes

    • Garage
  • Environnement

    • Environnement calme

LOCALISATION DU BIEN

Quartier Lezoux à Lezoux

Points d'intérêts

Transports

Éducation

Services publics

Commerces & Services

Géorisque

Les informations sur les risques auxquels ce bien est exposé sont disponibles sur le site Géorisques https://www.georisques.gouv.fr

Informations financières

A propos du prix

Prix de vente

319 000 €

Prix au m² : 3 159 € / m²

Calcul de vos mensualités

Simulez vos prêts en quelques clics !

*Les données de ce simulateur sont indicatives et non contractuelles. Calcul hors assurance et frais de garantie.

Vos mensualités
1094 € / mois
  • Montant emprunté
  • Coût des intérêts
  • Coût des intérêts :

    104925
    (d’après le taux d’intérêt annuel moyen : 3.3 %)
decoration
Lalle Immobilier Riom

25 annonces

Riom

Ce bien vous intéresse ?
*
*
*
*
*
*