Maison à vendre 5 pièces • 4 chambres • 102 m2 Os-Marsillon
Prix au m² : 2 294 € / m²
Référence 53827
Description du bien
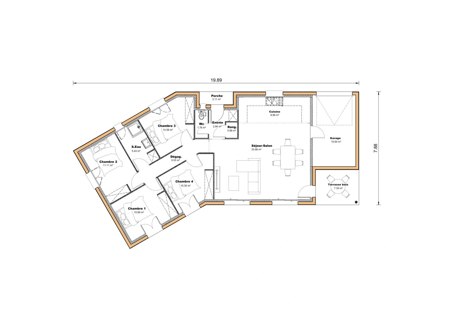
Dans le village de Os Marsillon, proche de Morcenx, venez découvrir ce terrain plat dans le lotissement Théaux.Cette parcelle de 850m², viabilisée, reliée au tout à l'égout n'attend plus que votre projet de construction. Exposée sud, sa surface vous permettra de réaliser la construction de votre choix.Nous vous proposons d'y construire notre modèle perf 5 de 102m², 4 chambres, garage et terrasse couverte. Cette maison avec son entrée centrale dessert la partie nuit avec ses 4 chambres avec emplacement de placard et sa salle d'eau. De l'autre côté, nous trouvons un grand salon séjour avec cuisine ouverte donnant sur la terrasse bois couverte. Le garage de 15m² pourra accueillir votre véhicule ou servir de stockage. Avec sa forme originale en V, elle est idéale pour une grande famille, ou bien aménager un espace bureau.Modèle proposé avec chauffage split. Nous vous proposons ce projet clés en mains. Construction conforme à la RE2025. Construction traditionnelle en brique sur vide sanitaire. Conforme à la RE2025, classe énergie A. Tous nos modèles sur notre site sic-habitat.com. Tous nos modèles sont proposés en construction traditionnelle ou ossature bois (ou mixte) et sont personnalisables en fonction de vos goûts et besoins. Nous travaillons également sur vos propres plans, sur mesure. N'hésitez pas! Contactez Christophe au O6.78.92.10.95 pour prendre rendez vous - Contrat CCMI, garanties inclues : RC entreprise, décennale, dommage ouvrage, biennale, prix fixes et définitifs, délai de construction, parfait achèvement.Tarif estimatif terrain + construction : 233903€ - Prix maison seule : 183903€ - Restent à votre charge : les frais de notaire, le terrassement et raccordements, la cuisine, les peintures intérieures, le sol des chambres- Bon d'achat cuisine offert de 2500€ pour tout contrat souscrit.Terrain en vente directe par notre partenaire en transactions immobilières sans entremise des Maisons SIC.
Caractéristiques du bien
-
Intérieur
- Surface 102 m2
- 4 Chambres
LOCALISATION DU BIEN
Quartier Os-Marsillon à Os-Marsillon
Géorisque
Informations financières
A propos du prix
Prix de vente
Prix au m² : 2 294 € / m²

Calcul de vos mensualités
- Montant emprunté
- Coût des intérêts
-
Coût des intérêts :
76935 €