Maison à vendre 4 pièces • 3 chambres • 90 m2 Os-Marsillon
Prix au m² : 2 404 € / m²
Référence 53828
Description du bien
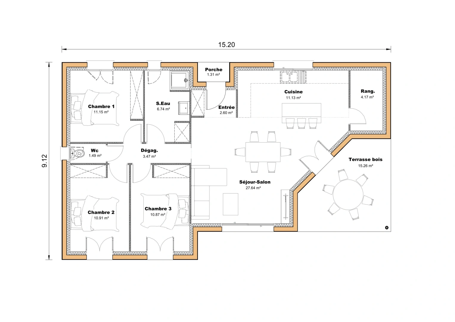
Dans le village de Os Marsillon, proche de Morcenx, venez découvrir ce terrain plat dans le lotissement Théaux. Cette parcelle de 850m², viabilisée, reliée au tout à l'égout n'attend plus que votre projet de construction. Exposée sud, sa surface vous permettra de réaliser la construction de votre choix.Nous vous proposons d'y construire notre modèle Performance 4 de 90m² et 3 chambres. Cette maison aux lignes modernes est tournée vers le jardin avec sa terrasse couverte de 15m². Son coin nuit de 3 belles chambres d'environ 12m² et sa salle d'eau, donne sur une grande pièce de vie cuisine séjour de 39m², idéale pour vos repas de famille!Modèle proposé avec un chauffage split et radiants dans les chambres. Nous vous proposons ce projet clés en mains. Il ne vous restera plus que les peintures intérieures, les sols des chambres et la cuisine à votre charge. Construction conforme à la RE2025. Construction traditionnelle sur vide sanitaire. Conforme à la RE2025, classe énergie A. Tous nos modèles sur notre site sic-habitat.com. Tous nos modèles sont proposés en construction traditionnelle ou ossature bois (ou mixte) et sont personnalisables en fonction de vos goûts et besoins. Nous travaillons également sur vos propres plans, sur mesure. N'hésitez pas! Contactez Christophe au O6.78.92.10.95 pour prendre rendez vous - Contrat CCMI, garanties inclues : RC entreprise, décennale, dommage ouvrage, biennale, prix fixes et définitifs, délai de construction, parfait achèvement.Tarif estimatif terrain + construction : 216293€ - Prix maison seule : 166293€ - Restent à votre charge : les frais de notaire, le terrassement et raccordements, la cuisine, les peintures intérieures, le sol des chambres - Bon d'achat cuisine offert de 2500€ pour tout contrat souscrit.Terrain en vente directe par notre partenaire en transactions immobilières sans entremise des Maisons SIC.
Caractéristiques du bien
-
Intérieur
- Surface 90 m2
- 3 Chambres
LOCALISATION DU BIEN
Quartier Os-Marsillon à Os-Marsillon
Géorisque
Informations financières
A propos du prix
Prix de vente
Prix au m² : 2 404 € / m²

Calcul de vos mensualités
- Montant emprunté
- Coût des intérêts
-
Coût des intérêts :
71143 €