property

Maison à vendre 4 pièces • 3 chambres • 90 m2

268 730 €

Maison à vendre 4 pièces • 3 chambres • 90 m2 Morlaàs

268 730 €

Prix au m² : 2 986 € / m²

Référence  54480

decoration todo
Sic Habitat vvv

2329 annonces

Tonneins

Description du bien

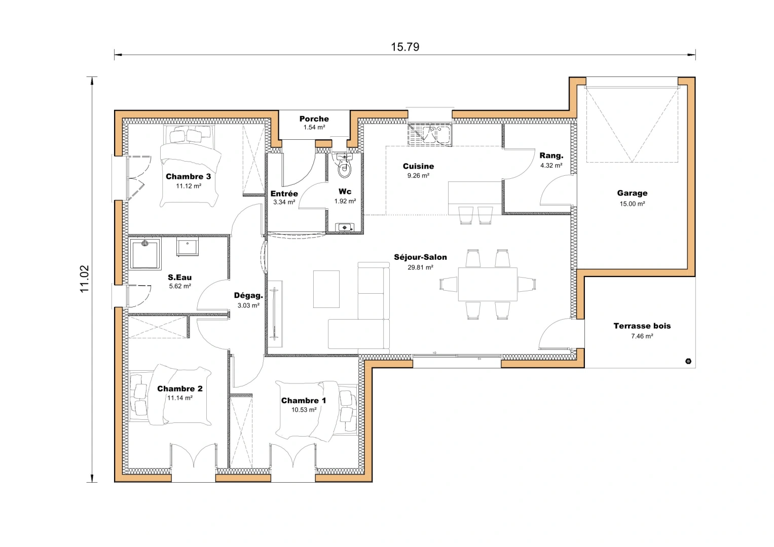
Dans la ville de Morlaas, venez découvrir ce terrain de 570m², situé dans un lotissement de 13 lots. Il est vendu viabilisé et raccordé au tout à l'égout. Parfaitement situé, dans un quartier très calme proche de la verdure et de toutes les commodités il sera idéal pour accueillir le projet de votre vie!Nous vous proposons d'y construire notre maison Performance 12 de 90m², 3 chambres, garage et terrasse couverte. Vous entrez dans la pièce de vie par un hall d'entrée, l'ensemble faisant plus de 40m² avec cuisine ouverte et cellier communicant avec le garage. Il est possible d'intégrer une terrasse au sud. Le coin nuit est quant à lui composé de 3 chambres et d'une salle d'eau. Un garage et une terrasse couverte de 10m² viennent apporter praticité et confort à notre performance 12.Elle est équipée d'un ballon thermodynamique, une pac air/air split.Ce projet vous est proposé clés en mains (restent à votre charge : la cuisine, les peintures intérieures). Bâtiment conforme à la RE2025. Construction traditionnelle en brique sur vide sanitaire. Conforme à la RE2020, classe énergie A. Tous nos modèles sur notre site sic-habitat.com. Tous nos modèles sont proposés en construction traditionnelle ou ossature bois (ou mixte) et sont personnalisables en fonction de vos goûts et besoins. Nous travaillons également sur vos propres plans, sur mesure. N'hésitez pas, contactez Christophe au O6.78.92.10.95 pour prendre rendez vous - Contrat CCMI, garanties incluses : RC entreprise, décennale, dommage ouvrage, biennale, prix fixes et définitifs, délai de construction, parfait achèvement.Tarif estimatif terrain + construction : 268730€ - Prix maison seule : 177430€ - Prix du Terrain : avec frais de notaire, assainissement, terrassement et raccordements : 91300€ - Bon d'achat cuisine offert de 2500€ pour tout contrat souscrit.Terrain en vente directe par notre partenaire en transactions immobilières sans entremise des Maisons SIC.

Afficher plus Afficher moins

Caractéristiques du bien

  • Intérieur

    • Surface 90 m2
    • 3 Chambres

LOCALISATION DU BIEN

Quartier Morlaàs à Morlaàs

Points d'intérêts

Transports

Éducation

Services publics

Commerces & Services

Géorisque

Les informations sur les risques auxquels ce bien est exposé sont disponibles sur le site Géorisques https://www.georisques.gouv.fr

Informations financières

A propos du prix

Prix de vente

268 730 €

Prix au m² : 2 986 € / m²

Calcul de vos mensualités

Simulez vos prêts en quelques clics !

*Les données de ce simulateur sont indicatives et non contractuelles. Calcul hors assurance et frais de garantie.

Vos mensualités
922 € / mois
  • Montant emprunté
  • Coût des intérêts
  • Coût des intérêts :

    88390
    (d’après le taux d’intérêt annuel moyen : 3.3 %)
decoration
Sic Habitat vvv

2329 annonces

Tonneins

Ce bien vous intéresse ?
*
*
*
*
*
*