property

Maison à vendre 4 pièces • 3 chambres • 90 m2

266 265 €

Maison à vendre 4 pièces • 3 chambres • 90 m2 Sendets

266 265 €

Prix au m² : 2 959 € / m²

Référence  51648

decoration todo
Sic Habitat vvv

1236 annonces

Tonneins

Description du bien

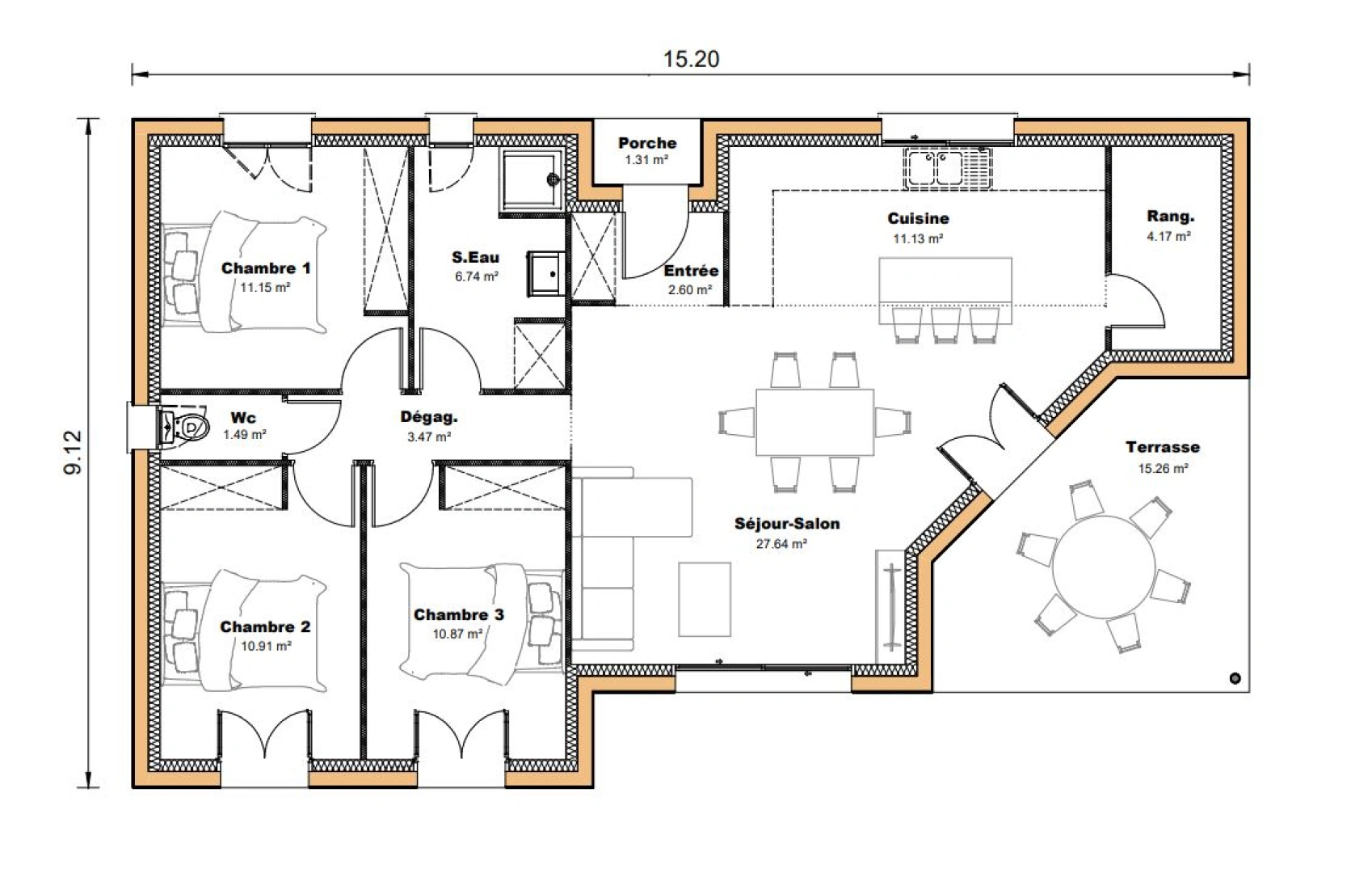
Projet de construction clés en mains.Sur ce terrain de 634m², situé à Sendets sur la route de Morlaas, vous pourrez construire la maison de votre vie! Bien placé, proche de l'axe Tarbes-Pau, il se trouve dans un petit lotissement de 7 lots. Ce secteur recherché n'attend plus que votre projet !Je vous propose d'y bâtir notre modèle 'performance 12' de 90m², 3 chambres et terrasse. e modèle avec sa grande pièce de vie donnant sur la terrasse, saura vous amener la lummière et le confort que vous cherchez! Le coin nunit et ses 3 grandes chambres et salle de bains ouxte cette grande pièce de vie très lumineuse. Cette base peut être adaptée en fonction de vos besoins et envies. D'autres modèles sur notre site sic-habitat.com. Contactez Christophe au O6.78.92.10.95 pour tous renseignements.De construction traditionnelle en brique sur vide sanitaire, elle respecte parfaitement la RE2020. Differents types de chauffages selon vos envies et budget.Tarif estimatif, à partir de : 266265€ (tarif comprenant l'achat du terrain et frais de notaires inhérents + raccordements aux réseaux + construction)

Afficher plus Afficher moins

Caractéristiques du bien

  • Intérieur

    • Surface 90 m2
    • 3 Chambres

LOCALISATION DU BIEN

Quartier Sendets à Sendets

Points d'intérêts

Transports

Éducation

Services publics

Commerces & Services

Géorisque

Les informations sur les risques auxquels ce bien est exposé sont disponibles sur le site Géorisques https://www.georisques.gouv.fr

Informations financières

A propos du prix

Prix de vente

266 265 €

Prix au m² : 2 959 € / m²

Calcul de vos mensualités

Simulez vos prêts en quelques clics !

*Les données de ce simulateur sont indicatives et non contractuelles. Calcul hors assurance et frais de garantie.

Vos mensualités
913 € / mois
  • Montant emprunté
  • Coût des intérêts
  • Coût des intérêts :

    87580
    (d’après le taux d’intérêt annuel moyen : 3.3 %)
decoration
Sic Habitat vvv

1236 annonces

Tonneins

Ce bien vous intéresse ?
*
*
*
*
*
*