Terrain à batir à vendre Saint-Estève

259 000 €

Référence  0874 N°4

decoration todo
LAVILLE IMMO

165 annonces

Cabestany

Description du bien

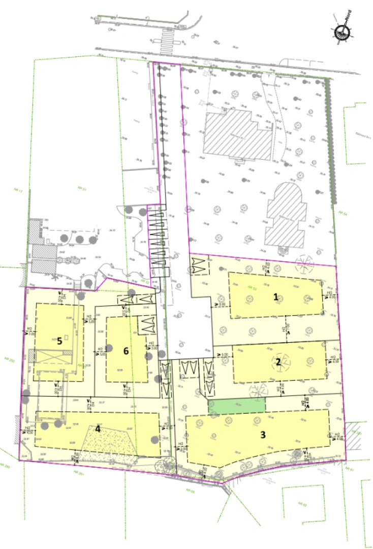
SAINT?ESTEVE :  L'agence Laville Immo vous présente ce terrain à bâtir situé sur les hauteurs calmes et verdoyantes de Saint-Estève, il bénéficie d'une localisation premium à seulement 5 minutes de Perpignan. Cette parcelle spacieuse est l'une des 6 opportunités de ce programme préservé : Configuration : Terrain en 4 faces pour une intimité totale. Surface de la parcelle : 804 m². Surface de plancher : Jusqu'à 300 m² autorisés. Liberté totale : Terrain viabilisé et libre de constructeur. Disponibilité : Immédiate ! Parfaitement intégré dans un environnement naturel protégé, ce terrain offre une orientation idéale et des vues dégagées, propices à la création d'une maison familiale contemporaine avec terrasse panoramique et piscine privative. Commodités à proximité immédiate : Écoles, commerces, transports Sankéo. Accès facilités : Rocade et autoroute A9 à quelques minutes. Contactez-nous pour une visite ou une étude de dossier : 04.68.34.29.86 / laville-immo@orange.fr Les informations sur les risques auxquels ce bien est exposé sont disponibles sur le site Géorisques : www.georisques.gouv.fr. Prix direct promoteur.

Afficher plus Afficher moins

Caractéristiques du bien

  • Accessibilité

    • Accès PMR
  • Environnement

    • Environnement calme

LOCALISATION DU BIEN

Quartier Pierre Droite à Saint-Estève

Points d'intérêts

Transports

Éducation

Services publics

Commerces & Services

Géorisque

Les informations sur les risques auxquels ce bien est exposé sont disponibles sur le site Géorisques https://www.georisques.gouv.fr

Informations financières

A propos du prix

Prix de vente

259 000 €

Calcul de vos mensualités

Simulez vos prêts en quelques clics !

*Les données de ce simulateur sont indicatives et non contractuelles. Calcul hors assurance et frais de garantie.

Vos mensualités
888 € / mois
  • Montant emprunté
  • Coût des intérêts
  • Coût des intérêts :

    85190
    (d’après le taux d’intérêt annuel moyen : 3.3 %)
decoration
LAVILLE IMMO

165 annonces

Cabestany

Ce bien vous intéresse ?
*
*
*
*
*
*