Appartement à vendre 2 pièces • 1 chambre • 43.94 m2 Le Barcarès
Prix au m² : 4 370 € / m²
Référence V10000226
Description du bien
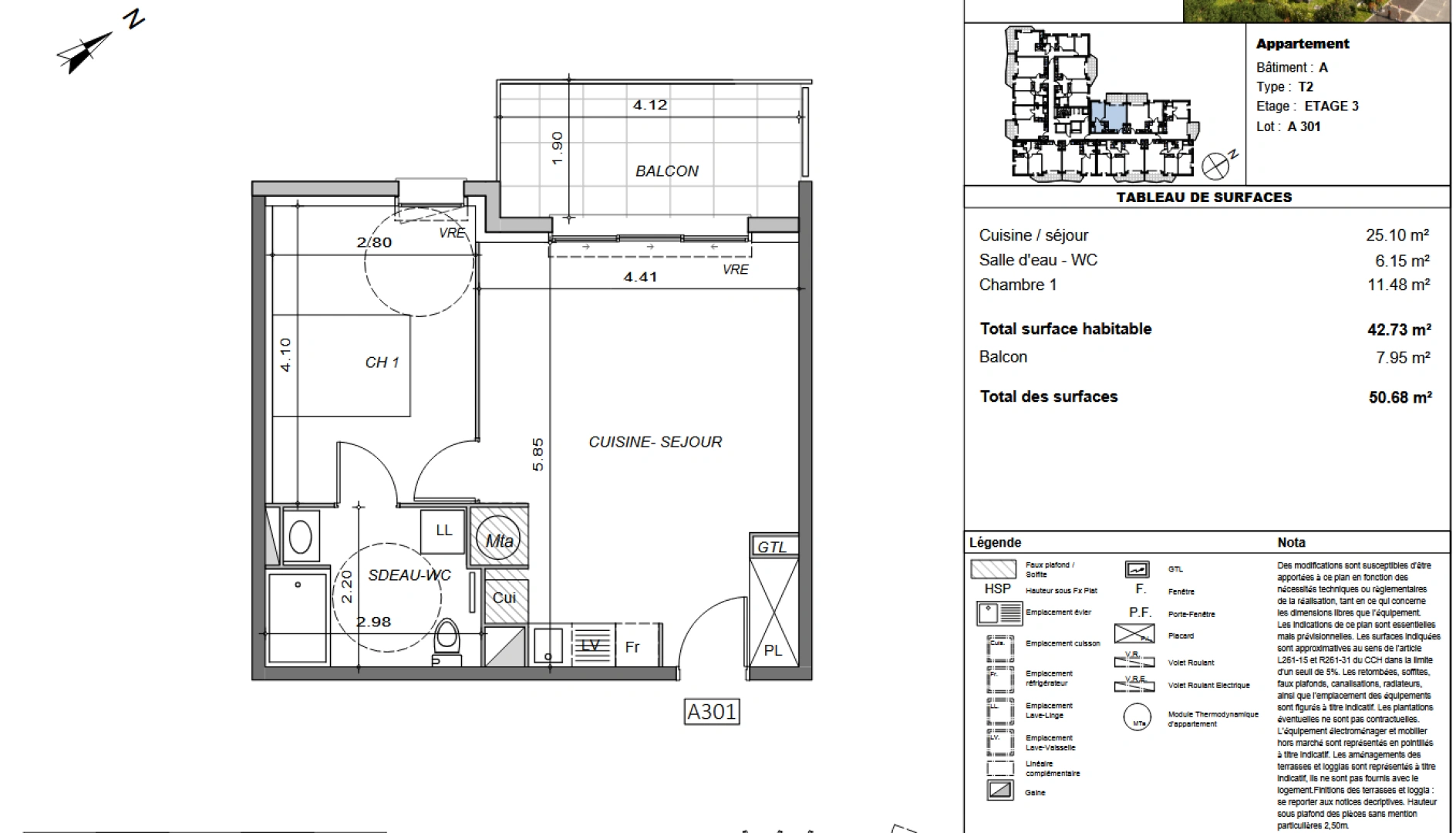
Le Barcarès Village 150 mètres de la plage, T2 de 43.94m² habitable avec terrasse de 6.33m² au 2ème étage vue sur le mini golf avec parking : emplacement prisé et de choix, découvrez cette belle résidence au Barcarès. Au cœur de cette station balnéaire préservée et vivante avec ses 8 km de côtes, c’est un lieu idéal pour vivre ou pour investir. Appartements idéalement situés à quelques minutes des plages. La résidence LE BAHIA est composée de 35 logements du 2 au 4 pièces, avec terrasses sans vis-à-vis, vue mer et stationnements (parking ou garage), pinède privée dans la résidence, ascenseur, clim, cuisine équipée..... Pour toute question ou information rendez-vous à notre agence. Notre maîtrise du secteur et notre disponibilité sont à votre disposition pour vous accompagner dans ce projet !Votre agence Locale pour toute question ou information complémentaire. Vous aurez tout à portée de main : grandes plages préservées, activités nautiques, marchés, pistes cyclables, tous commerces, et commodités (écoles, loisirs et médecins).La résidence LE BAHIA, implantée dans un parc résidentiel paysager, s’intègre harmonieusement dans son environnement avec caractère. Ses façades, ornées de balcons aux formes variées, créent une architecture en trois dimensions. Cette résidence en R+3 propose 35 logements du 2 au 4 pièces, tous dotés de balcons sans vis-à-vis offrant pour certains une vue sur la mer et des espaces de stationnement. Les grandes baies vitrées en aluminium laqué s’ouvrent sur des balcons intimistes et lumineux grâce à leurs garde-corps opaques, faisant des espaces extérieurs un prolongement naturel des intérieurs.
Caractéristiques du bien
-
Intérieur
- Surface 43.94 m2
- 1 Chambres
- 1 WC
- Climatisation
- Cuisine SEMI-EQUIPEE
-
Extérieur
- Terrasse
-
Surfaces annexes
- Etage 2
- Bâtiment de 3 étages
-
Copropriété
- NEUF
-
Environnement
- Exposition OUEST
- Vue Jardins
LOCALISATION DU BIEN
Quartier Le Barcarès à Le Barcarès
Géorisque
Informations financières
A propos du prix
Prix de vente
Prix au m² : 4 370 € / m²

Calcul de vos mensualités
- Montant emprunté
- Coût des intérêts
-
Coût des intérêts :
63153 €