property

Maison de village à vendre 8 pièces • 4 chambres • 137 m2

159 000 €

Maison de village à vendre 8 pièces • 4 chambres • 137 m2 Saint-Hippolyte

159 000 €

Prix au m² : 1 161 € / m²

Référence  2025-006

decoration todo
La conciergerie du midi

3 annonces

Portel-des-Corbières

Description du bien

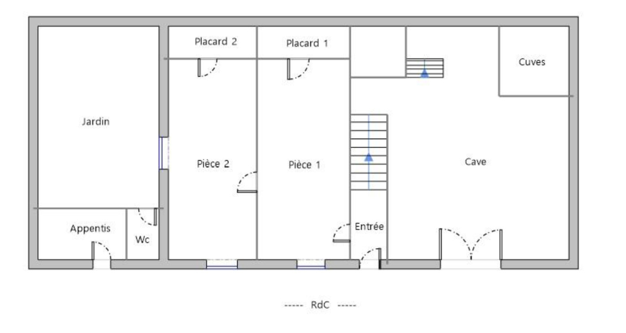
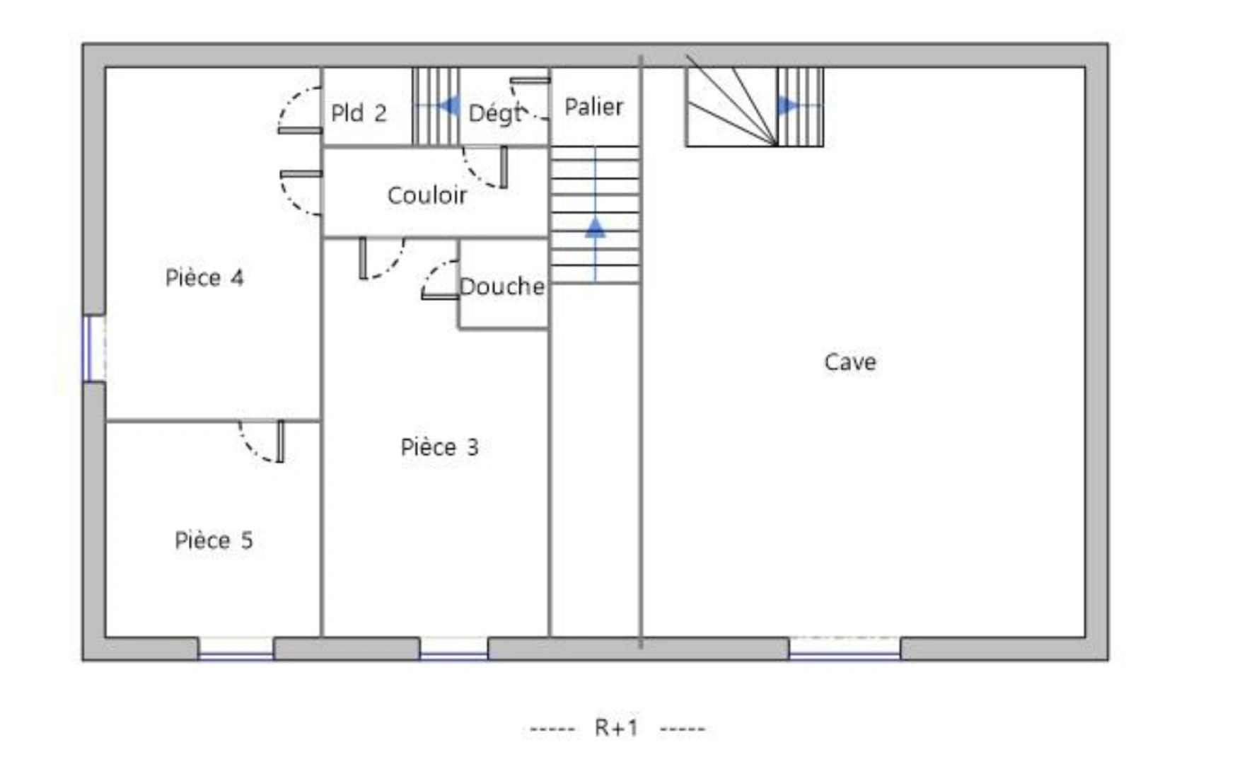
La conciergerie du midi vous propose ce bien à fort potentiel. Découvrez cette maison de village avec garage et combles aménageables, idéale pour un projet de rénovation. Avec un potentiel d’environ 250 à 300 m² habitables, elle s’organise sur trois niveaux : Rez-de-chaussée : Pièces de vie de 45 m² avec accès extérieur + WC. 1er étage : 37 m² de pièces(chambres possibles). 2e étage : 37 m² de pièces (2 chambres + bureau ou chambre supplémentaire). Garage de 100 m² avec hauteur sous plafond de 5 m, donnant accès à des combles aménageables (hauteur de 4,7 m, poutres apparentes). Un bien rare, offrant une grande liberté de personnalisation. Prix du bien : 159 000 € Honoraires à la charge du vendeur Information d'affichage énergétique sur ce bien : DPE NS indice et GES NS indice . Les informations sur les risques auxquels ce bien est exposé sont disponibles sur le site Géorisques : www. georisques. gouv. fr Pour visiter et vous accompagner dans votre projet, contactez Benoit JULHAN, au +33 769 372 948 ou par courriel à contact@laconciergeriedumidi.com

Afficher plus Afficher moins

Caractéristiques du bien

  • Intérieur

    • Surface 137 m2
    • 4 Chambres
    • 1 WC
    • Cheminée
  • Extérieur

    • Jardin de 30 m2
  • Surfaces annexes

    • Garage

LOCALISATION DU BIEN

Quartier Saint-Hippolyte à Saint-Hippolyte

Points d'intérêts

Transports

Éducation

Services publics

Commerces & Services

Géorisque

Les informations sur les risques auxquels ce bien est exposé sont disponibles sur le site Géorisques https://www.georisques.gouv.fr

Informations financières

A propos du prix

Prix de vente

159 000 €

Prix au m² : 1 161 € / m²

Calcul de vos mensualités

Simulez vos prêts en quelques clics !

*Les données de ce simulateur sont indicatives et non contractuelles. Calcul hors assurance et frais de garantie.

Vos mensualités
545 € / mois
  • Montant emprunté
  • Coût des intérêts
  • Coût des intérêts :

    52298
    (d’après le taux d’intérêt annuel moyen : 3.3 %)
decoration
La conciergerie du midi

3 annonces

Portel-des-Corbières

Ce bien vous intéresse ?
*
*
*
*
*
*