Maison à vendre 5 pièces • 2 chambres • 91 m2 Bischwiller
Prix au m² : 2 407 € / m²
Référence POMABI
Description du bien
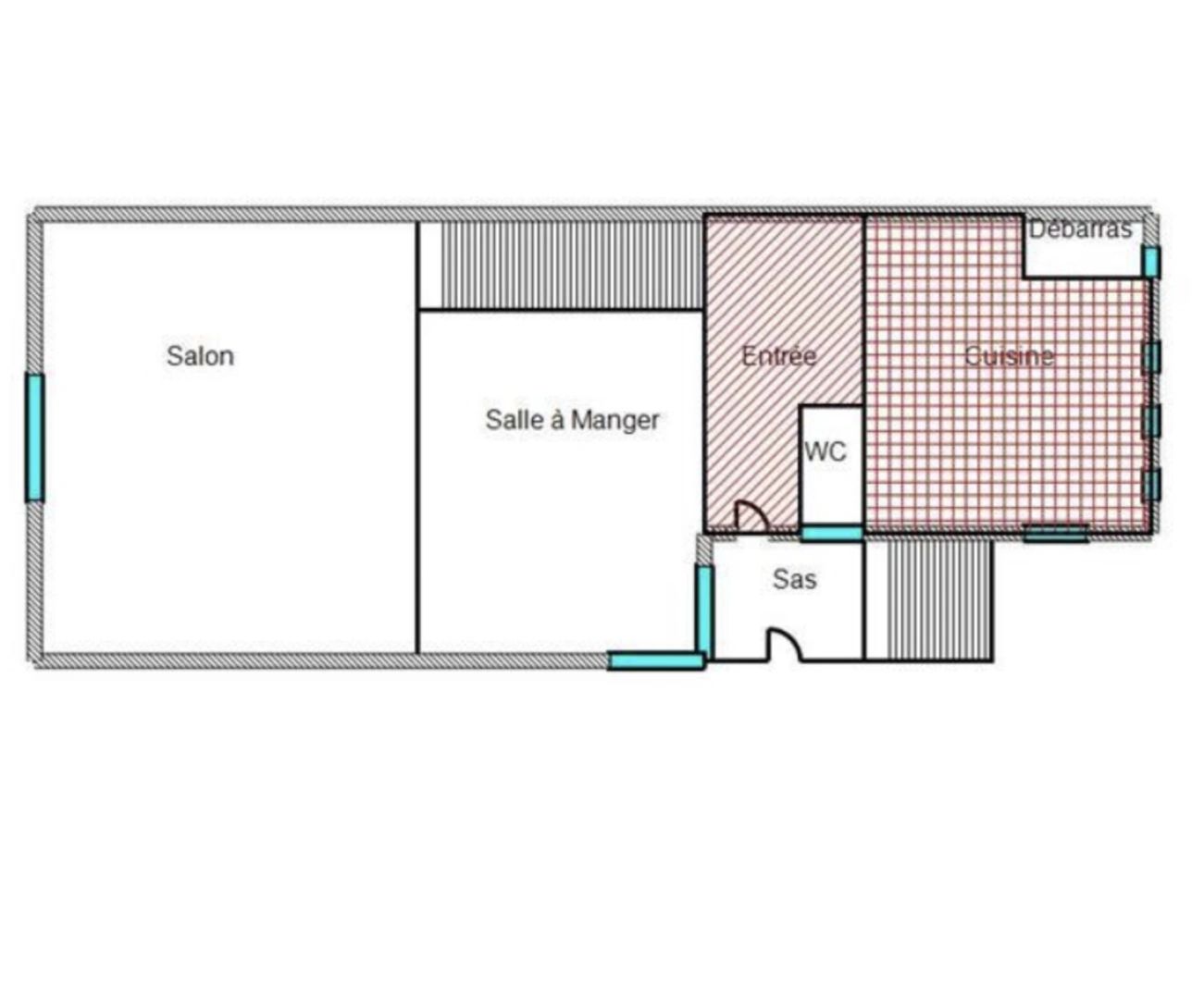
Opportunité à saisir à Bischwiller : Maison 5 pièces avec jardin, à rénover ! Découvrez cette charmante maison de 5 pièces d'une surface de 91 m², idéalement située au calme à Bischwiller, avec un magnifique jardin. Une occasion unique de créer votre foyer sur mesure ! Composition : Rez-de-chaussée : 1 entrée. Spacieux salon-séjour de 27m2. Cuisine séparée de 12 m². WC. Étage : 3 chambres ( 10 m², 10 m², 16 m²). Salle d'eau avec douche. Atouts supplémentaires : Sous-sol complet avec espace chaufferie (chaudière centrale au fioul) , rangement. Magnifique jardin, un véritable havre de paix. À rénover : idéal pour personnaliser votre futur chez-vous. Prix : 219 000 € (honoraires d'agence inclus à la charge des acquéreurs). Pour tout renseignement complémentaire, contactez : Patrice Otto Tél : 06 70 111 333 Négociateur B.A Immobilier.
Caractéristiques du bien
-
Intérieur
- Surface 91 m2
- 2 Chambres
- 1 WC
- 1 Salle de bain/eau
Diagnostics énergétiques
Consommation énergétique
Emission de gaz
LOCALISATION DU BIEN
Quartier Nord-Est à Bischwiller
Géorisque
Informations financières
A propos du prix
Prix de vente
Prix au m² : 2 407 € / m²

Calcul de vos mensualités
- Montant emprunté
- Coût des intérêts
-
Coût des intérêts :
72033 €