property

Appartement à vendre 3 pièces • 2 chambres • 91.46 m2

114 268 €

Appartement à vendre 3 pièces • 2 chambres • 91.46 m2 Rothau

114 268 €

Prix au m² : 1 250 € / m²

Référence  LDVAP60000837

decoration todo
L'ERE IMMOBILIERE

14 annonces

Griesheim-près-Molsheim

Description du bien

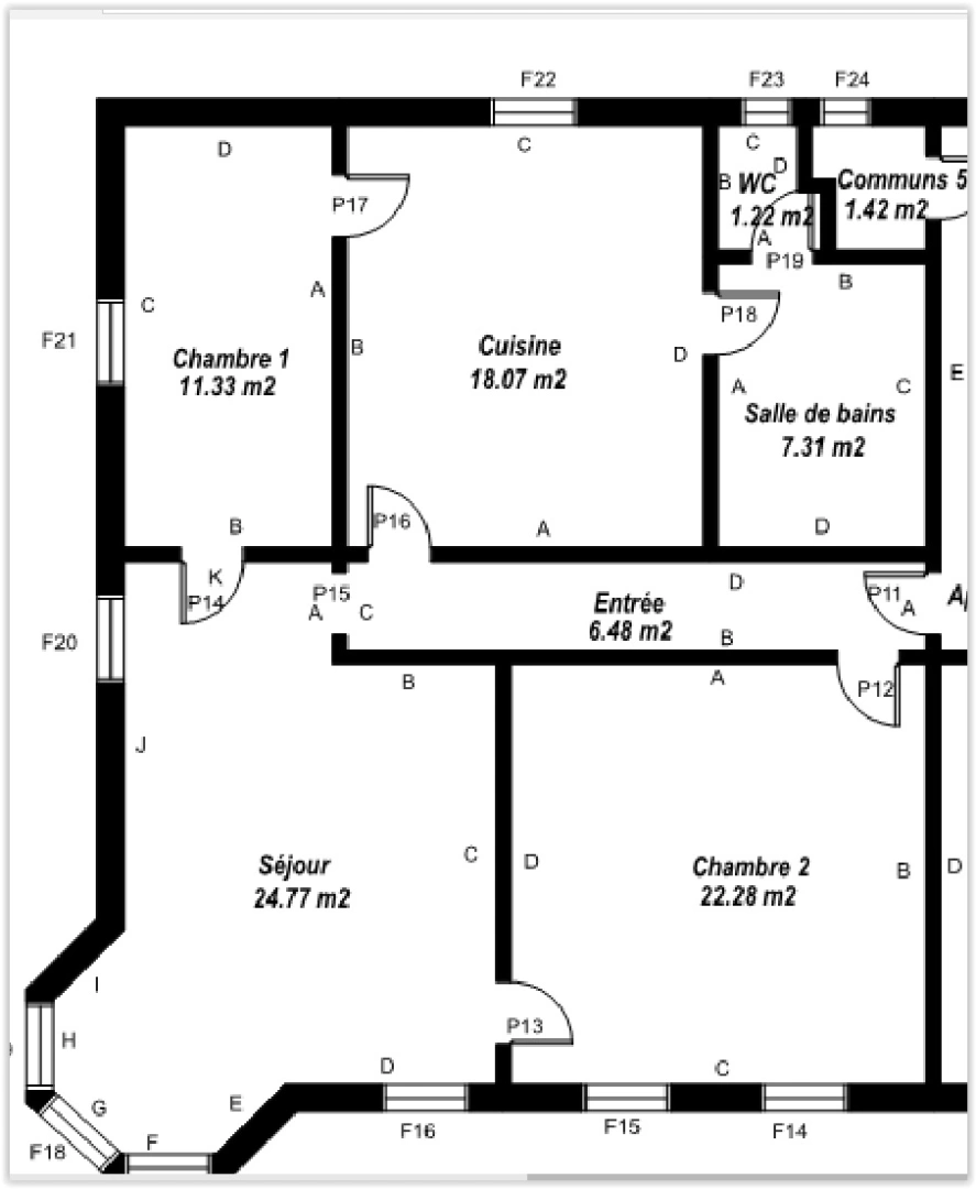
A vendre en exclusivité, ce spacieux et lumineux appartement de 3 pièces de 91m², situé au 1er étage sur 4, dans un immeuble d'exception. Situé au coeur de la ville de Rothau, vous trouverez à proximité de ce bien: des écoles, commerces, pharmacie, cinéma et une gare.   Les atouts de ce bien : - un spacieux salon séjour, avec oriel, de 25m² lumineux tout au long de la journée - deux grandes chambres confortables de 11 et 22m² - une cuisine indépendante de 18m² avec placard de rangement et évier - une salle de bain de 7m² avec baignoire, vasque et WC attenant - une cave privative vient compléter ce bien Cet appartement allie volume, luminosité et fonctionnalité.   Vous pourrez stationner dans la cour (places collectives limitées) ou dans la rue avoisinante.   Chauffage : fioul Eau chaude : ballon éléctrique individuel   Possibilité d'acquérir ce bien pour une résidence principale ou un investissement locatif. Des travaux d'amélioration ont été réalisés sur l'appartement afin de passer en C sur le DPE (plus d'informations en nous contactant).   Un bien rare sur le marché de Rothau, à visiter sans tarder!

Afficher plus Afficher moins

Caractéristiques du bien

  • Intérieur

    • Surface 91.46 m2
    • 2 Chambres
    • 1 WC
    • 1 Salle de bain/eau
  • Surfaces annexes

    • Etage 1
    • Bâtiment de 4 étages
    • Cave

Diagnostics énergétiques

Consommation énergétique

Emission de gaz

LOCALISATION DU BIEN

Quartier Rothau à Rothau

Points d'intérêts

Transports

Éducation

Services publics

Commerces & Services

Géorisque

Les informations sur les risques auxquels ce bien est exposé sont disponibles sur le site Géorisques https://www.georisques.gouv.fr

Informations financières

A propos du prix

Prix de vente

114 268 €

Prix au m² : 1 250 € / m²

Calcul de vos mensualités

Simulez vos prêts en quelques clics !

*Les données de ce simulateur sont indicatives et non contractuelles. Calcul hors assurance et frais de garantie.

Vos mensualités
392 € / mois
  • Montant emprunté
  • Coût des intérêts
  • Coût des intérêts :

    37585
    (d’après le taux d’intérêt annuel moyen : 3.3 %)
decoration
L'ERE IMMOBILIERE

14 annonces

Griesheim-près-Molsheim

Ce bien vous intéresse ?
*
*
*
*
*
*