Terrain à vendre Hégenheim
Référence MG23355
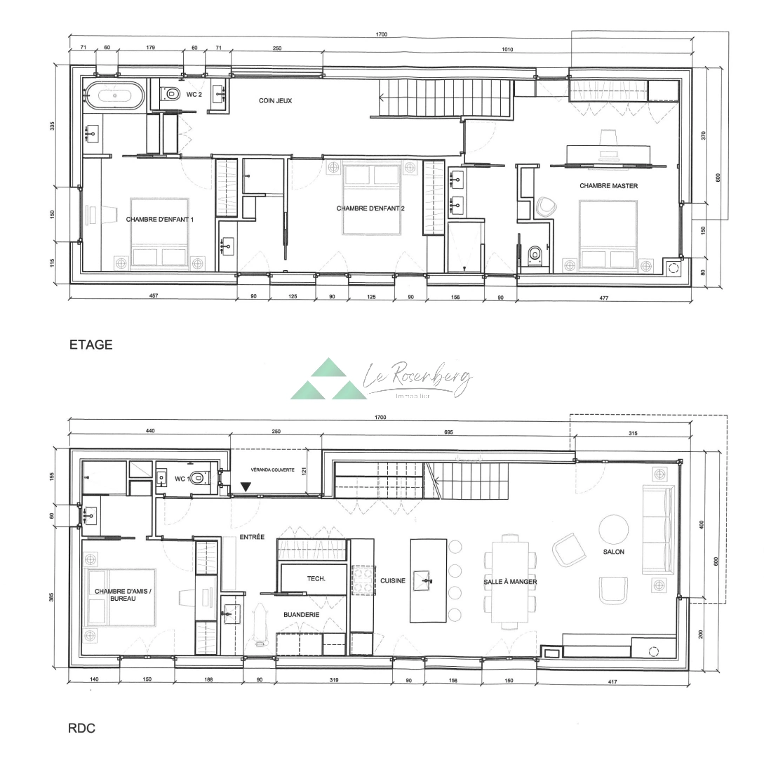
Description du bien
Localisation stratégique de cette belle parcelle de 11,38 ares (14,5 x 78m) idéalement exposée dans un environnement chaleureux aux portes de Bâle et proche du centre-village. Très beau projet d’architecte de 164 m² sur 2 niveaux, espaces contemporains pensés pour une vie familiale moderne, avec 4 chambres dont une suite master avec dressing et coin bureau, 3 salles de bains, toilettes invité, cuisine avec îlot ouvert sur salle à manger et salon spacieux + annexe carport de 30 m². Possibilité de transformer une chambre avec accès indépendant sur l’extérieur pour l’exercice d’une profession libérale. Permis de construire obtenu et purgé de tout recours. Plans validés par un Bureau Fluides (RE 2020). Toutes les viabilités sont dans la rue de Bourgfelden. Libre de constructeur. Aucun coût ou frais supplémentaire pour le permis de construire inclus dans le prix de vente du terrain. Pour tous renseignements, contactez Muriel Goetschy au 06 29 52 31 68.
LOCALISATION DU BIEN
Quartier Hégenheim à Hégenheim
Géorisque
Informations financières
A propos du prix
Prix de vente

Calcul de vos mensualités
- Montant emprunté
- Coût des intérêts
-
Coût des intérêts :
115122 €
Achat immobilier sur Hégenheim
