Propriete à vendre 12 pièces • 9 chambres • 450 m2 Saint-Genis-Laval
Prix au m² : 3 445 € / m²
Référence LVPR10000064
Description du bien
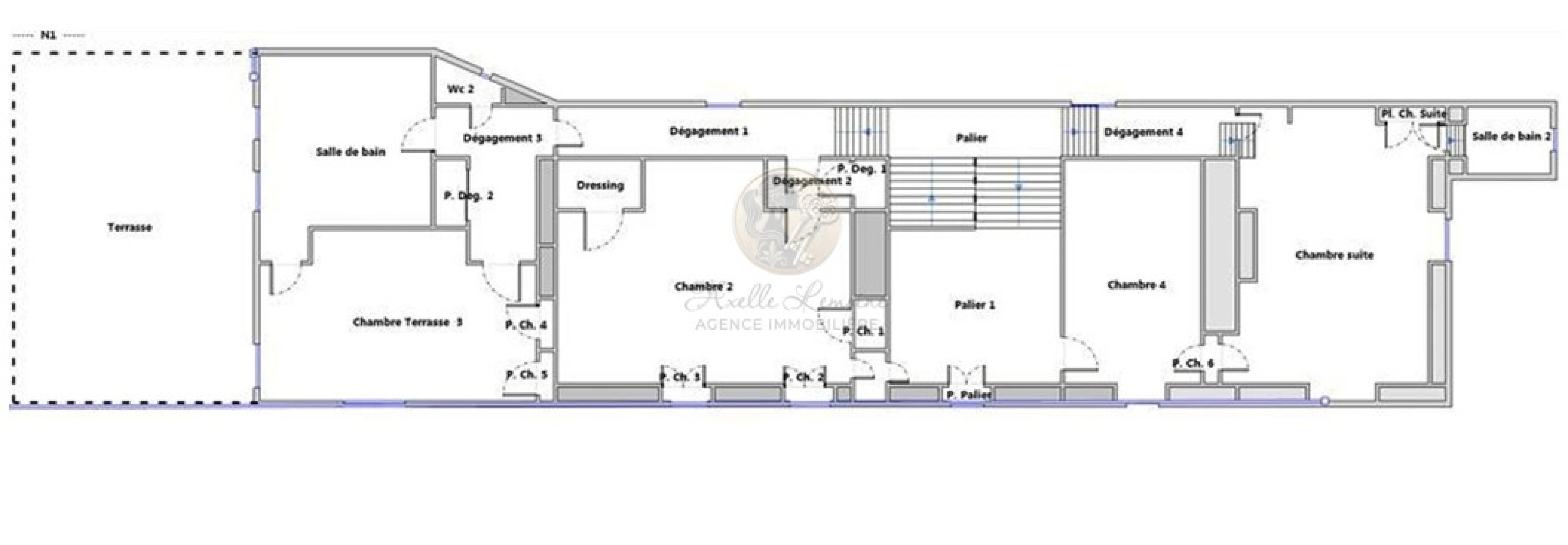
Située au cœur de Saint-Genis-Laval, à seulement dix minutes à pied du métro B Lyon Sud, cette demeure de maître du XVIIIe siècle offre un cadre de vie rare alliant le charme de l’ancien et le confort moderne. Édifiée sur trois niveaux et développant de vastes volumes baignés de lumière, elle prend place sur une parcelle plate et arborée de 2506 m² entièrement close. Dès l’entrée, un hall majestueux de 25 m² avec vestibule et escalier en bois massif donne le ton. Sur l'aile droite, une suite de 30 m² avec plafond à la française, parquet en pointe de Hongrie, deux placards, cheminée et rafraîchissoir du XVIIIe siècle évoque toute l’élégance de cette demeure. Une salle d’eau avec douche, lavabo et toilettes complète cet espace. Sur l'aile gauche, une enfilade composée d’un salon avec cheminée et boiseries murales, d’une salle à manger et d’une cuisine. Ces deux dernières pièces s’ouvrent sur un couloir de service doté de rangements, d’un accès à la cave à vin et d’une sortie indépendante sur la rue. L’ensemble du rez-de-chaussée représente 161 m² Carrez et offre de magnifiques volumes avec une hauteur sous plafond de trois mètres. L’escalier en bois conduit au premier étage où l’on découvre une suite de 33 m² avec cheminée, salle d’eau et toilettes ainsi qu’un bureau de 12,5 m² (pouvant faire office de chambre étant accessible de la suite ou du palier). Ce niveau propose également une chambre de 25 m² et une seconde suite de 39 m² avec salle d’eau, dressing, toilettes et accès à une terrasse extérieure de 50 m². Au deuxième étage se trouvent deux vastes suites de 30 et 39 m², toutes deux équipées de dressings et salles d’eau, un bureau de 11 m² attenant à l’une des suites ainsi que deux chambres supplémentaires d’une dizaine de mètres carrés et des greniers de rangement. Au total, la propriété compte cinq suites, trois chambres, deux bureaux, cinq salles de bains. Les suites du premier et deuxième niveau sont climatisées. Le jardin paysager est entièrement clos de murs et abrite une piscine de 9,5 m sur 4,8 m avec couverture électrique, un puit permettant l’arrosage intégré et une belle variété d’arbres centenaires et fruitiers. Un parking à l’entrée de la propriété permet de stationner cinq véhicules. Les prestations incluent une chaudière gaz à condensation, seize panneaux photovoltaïques d’une puissance totale de six kWc dont trois en autoconsommation ainsi qu’une cave à vin. La maison est classée D au diagnostic de performance énergétique. Cette demeure séduira les amateurs de patrimoine à la recherche d’un bien de caractère en plein centre-ville, à proximité immédiate des commerces, écoles et transports, et offrant un cadre de vie idéal pour une grande famille, un projet de chambres d’hôtes ou pour des acquéreurs aimant recevoir. Pour une vision plus dynamique de cette belle demeure, n'hésitez pas à cliquer sur le lien suivant: Maison de maître à vendre - Saint Genis Laval - Les Clés d'Axelle
Caractéristiques du bien
-
Intérieur
- Surface 450 m2
- 9 Chambres
- 6 WC
- Climatisation
- 4 Salle de bain/eau
- Cheminée
-
Extérieur
- Piscine
- Terrasse
-
Surfaces annexes
- Cave
-
Environnement
- Exposition EST
- Vue pas de vis-à-vis
- Environnement Niché dans un environnement calme et verdoyant, un lieu idéal pour conjuguer qualité de vie, praticité et élégance.
Diagnostics énergétiques
Consommation énergétique
Emission de gaz
LOCALISATION DU BIEN
Quartier Saint-Genis-Laval Nord à Saint-Genis-Laval
Géorisque
Informations financières

Calcul de vos mensualités
- Montant emprunté
- Coût des intérêts
-
Coût des intérêts :
509825 €
Achat immobilier sur Saint-Genis-Laval
