property

Pavillon à vendre 1 pièce • 260 m2

65 900 €

Pavillon à vendre 1 pièce • 260 m2 Neuville-sur-Saône

65 900 €

Prix au m² : 254 € / m²

Référence  350HP

decoration todo
95BIS Immobilier Lyon 6

44 annonces

Lyon 06

Description du bien

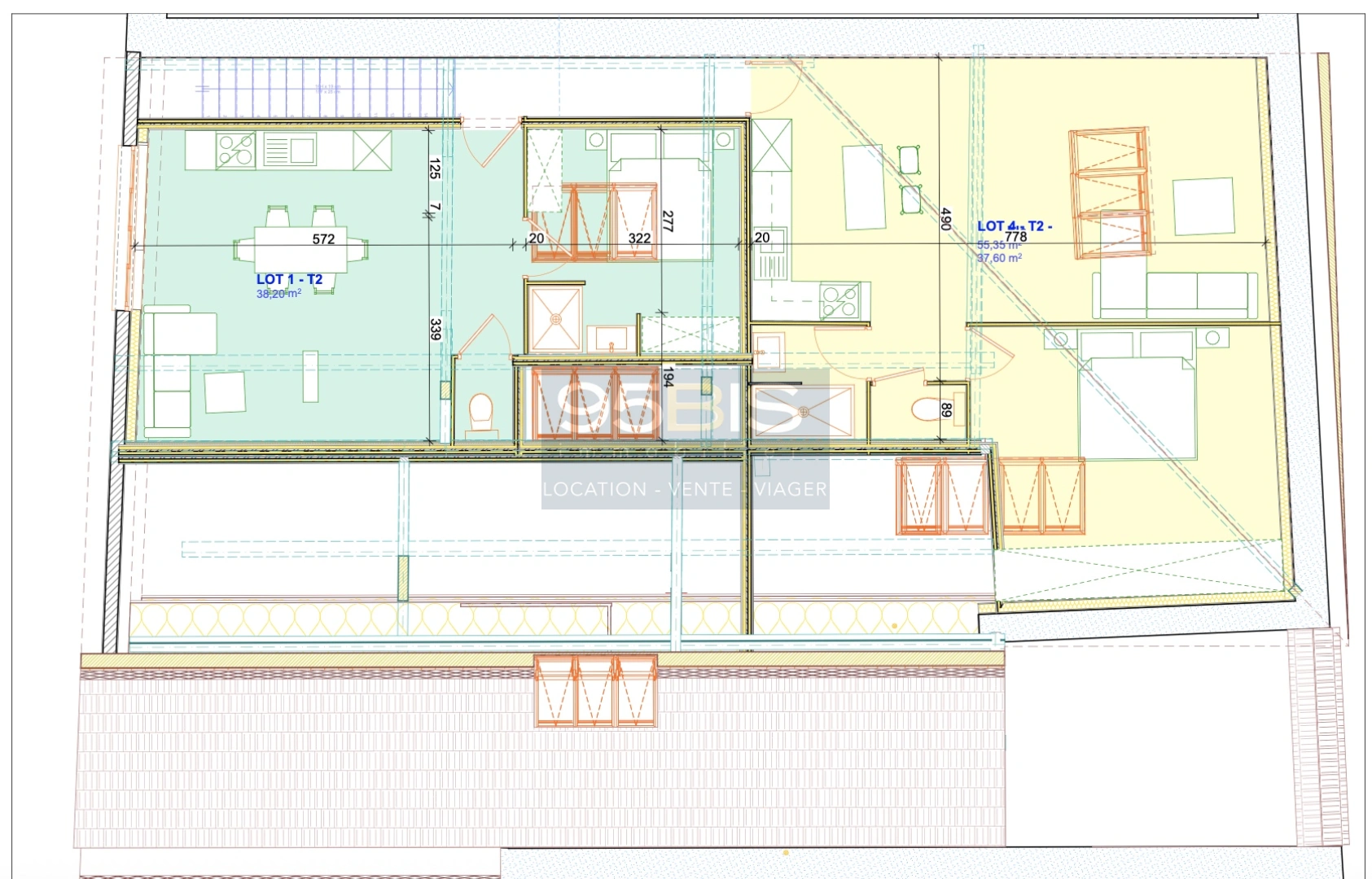
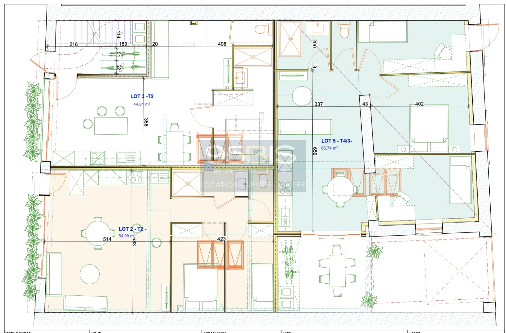
Sous compromis - VENTE A TERME LIBRE. La vente à terme libre aussi appelée crédit vendeur, permet l'acquisition d'un bien sans emprunt bancaire. L'acquéreur a la jouissance immédiatement. Eléments financiers : Capital à verser au moment de l'acquisition 65.900€, puis 180 mensualités de 1.194,45€, indexées une fois par an sur l'indice de référence des loyers. Possibilité à tout moment de solder les mensualités sans frais. Le bien peut également être acheté en transaction classique 280.900€ honoraires d'agence inclus. Le bien : centre Neuville sur Saone. Sur un terrain de 225 m2, 'immeuble à usage d'habitation' d'environ 260 m2 habitable, comprenant un entrepôt avec au rez de chaussée environ 150 m2, au 1er niveau environ 75 m2, un appartement d'environ 40 m2 contigu à l'entrepôt, et une courette de 15 m2. Ce bien peut être traité en rénovation pour faire une maison ou plusieurs appartements. Exemple de proposition en 5 logements dans les visuels. Possibilité de mise en relation avec un cabinet en maîtrise d'oeuvre qui a déjà des propositions établies.

Afficher plus Afficher moins

Caractéristiques du bien

  • Intérieur

    • Surface 260 m2

LOCALISATION DU BIEN

Quartier Vosne-Tête Noire à Neuville-sur-Saône

Points d'intérêts

Transports

Éducation

Services publics

Commerces & Services

Géorisque

Les informations sur les risques auxquels ce bien est exposé sont disponibles sur le site Géorisques https://www.georisques.gouv.fr

Informations financières

A propos du prix

Prix de vente

65 900 €

Prix au m² : 254 € / m²

  • Taxe foncière
    871 € / an

Calcul de vos mensualités

Simulez vos prêts en quelques clics !

*Les données de ce simulateur sont indicatives et non contractuelles. Calcul hors assurance et frais de garantie.

Vos mensualités
226 € / mois
  • Montant emprunté
  • Coût des intérêts
  • Coût des intérêts :

    21676
    (d’après le taux d’intérêt annuel moyen : 3.3 %)
decoration
95BIS Immobilier Lyon 6

44 annonces

Lyon 06

Ce bien vous intéresse ?
*
*
*
*
*
*