property

Rez de jardin à vendre 6 pièces • 4 chambres • 135 m2

649 000 €

Rez de jardin à vendre 6 pièces • 4 chambres • 135 m2 Caluire-et-Cuire

649 000 €

Prix au m² : 4 808 € / m²

Référence  ET649RAM0109

decoration todo
IMMO PASSION

35 annonces

Caluire-et-Cuire

Description du bien

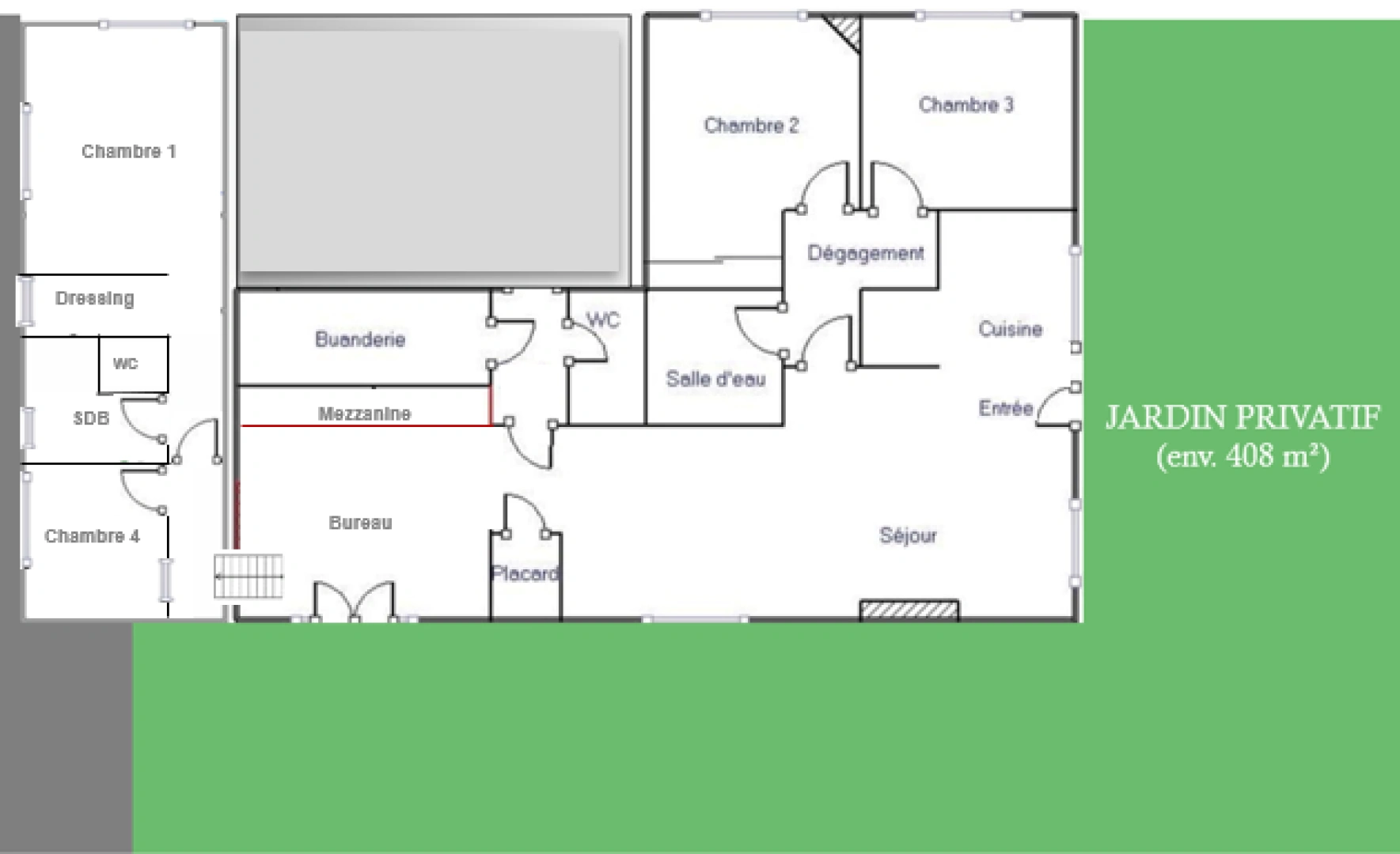
Dans une belle maison bourgeoise, cet appartement en rez de chaussée, bénéficie d'un grand jardin de 428 m2, fleuri, arboré et très agréable Cette petite copropriété de 5 appartements jouit d'un grand jardin de 700 m2 accessible à tous L'appartement est magnifique, entièrement rénové, donnant sur son jardin privé Belle hauteur sous plafond, grande pièce de vie, cuisine ouverte sur le séjour, 3 expositions 4 chambres, un espace bureau, une buanderie, une salle de bains, une salle d'eau, 2 WC Tout est parfait, et l'ambiance entre copropriétaires est très bonne De plus vous avez 2 caves, et deux places de parking extérieures Ecole de Vassieux à pied, commerces du vieux Crépieux à 2 pas, accès TEO Elisabeth Tapissier 0603966460

Afficher plus Afficher moins

Caractéristiques du bien

  • Intérieur

    • Surface 135 m2
    • 4 Chambres
    • 2 WC
    • 1 Salle de bain/eau
  • Extérieur

    • Terrasse
  • Surfaces annexes

    • Bâtiment de 2 étages
    • Cave
  • Copropriété

    • ANCIEN
    • Nombre de lots: 4
  • Accessibilité

    • Accès PMR
  • Environnement

    • Exposition SUD-OUEST

Diagnostics énergétiques

Consommation énergétique

Emission de gaz

LOCALISATION DU BIEN

Quartier Vassieux-Crépieux à Caluire-et-Cuire

Points d'intérêts

Transports

Éducation

Services publics

Commerces & Services

Géorisque

Les informations sur les risques auxquels ce bien est exposé sont disponibles sur le site Géorisques https://www.georisques.gouv.fr

Informations financières

A propos du prix

Prix de vente

649 000 €

Prix au m² : 4 808 € / m²

  • Charge de copropriété
    163 € / an

    Montant annuel de la quote-part du budget prévisionnel des dépenses courantes.

  • Taxe foncière
    1 325 € / an

Calcul de vos mensualités

Simulez vos prêts en quelques clics !

*Les données de ce simulateur sont indicatives et non contractuelles. Calcul hors assurance et frais de garantie.

Vos mensualités
2226 € / mois
  • Montant emprunté
  • Coût des intérêts
  • Coût des intérêts :

    213469
    (d’après le taux d’intérêt annuel moyen : 3.3 %)
decoration
IMMO PASSION

35 annonces

Caluire-et-Cuire

Ce bien vous intéresse ?
*
*
*
*
*
*