Appartement à vendre 5 pièces • 3 chambres • 110 m2 Villefranche-sur-Saône
Prix au m² : 3 182 € / m²
Référence 1222
Description du bien
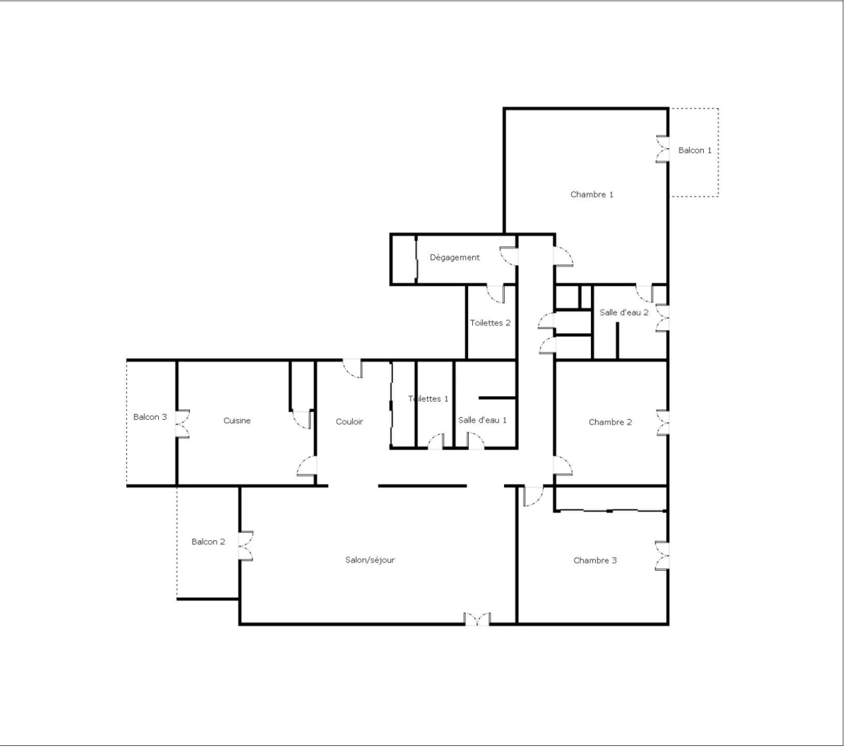
Uniquement chez Vivre en Beaujolais - Sauverzac Immobilier, dans une résidence calme et recherchée de Villefranche, découvrez ce magnifique appartement traversant Est-Ouest, entièrement RÉNOVÉ avec des prestations de qualité dont la climatisation réversible. D’une superficie généreuse 110m2 avec 3 chambres et 2 salles de douche. Il offre un séjour lumineux de 27 m² donnant accès à un balcon, une cuisine récente, haut de gamme Mobalpa, avec plan de travail et évier en pierre, cuisine séparée et entièrement équipée. L’espace nuit se compose de 3 chambres, dont une suite parentale avec dressing et salle d’eau privative, ainsi qu’une deuxième salle d’eau indépendante. L’appartement dispose de 3 balcons, vous permettant de profiter pleinement de la lumière naturelle tout au long de la journée. Un garage fermé ainsi que 2 caves complètent ce bien rare. Plan en photos ou sur demande. Les + : résidence bien entretenue, quartier agréable et calme, à proximité immédiate des écoles, du centre-ville et de la gare train et bus. – tout est accessible à pied ! En voiture : autoroute A6/A46. Copropriété de 48 lots principaux – Charges mensuelles : env. 200 €. Visite virtuelle sur demande. Les informations sur les risques auxquels ce bien est exposé sont disponibles sur le site Géorisques : www.georisques.gouv.fr
Caractéristiques du bien
-
Intérieur
- Surface 110 m2
- 3 Chambres
- 2 WC
- Climatisation
- Cuisine EQUIPEE
-
Extérieur
- 3 balcon
-
Surfaces annexes
- Etage 4
- Bâtiment de 5 étages
- Garage
- Cave
-
Copropriété
- STANDING
- Nombre de lots: 48
-
Accessibilité
- Accès PMR
-
Environnement
- Exposition EST-OUEST
- Vue Dégagée
- Environnement agréable, résidentiel
Diagnostics énergétiques
Consommation énergétique
Emission de gaz
LOCALISATION DU BIEN
Quartier Ouest à Villefranche-sur-Saône
Géorisque
Informations financières

Calcul de vos mensualités
- Montant emprunté
- Coût des intérêts
-
Coût des intérêts :
115122 €