Terrain à batir à vendre Chaponnay

365 000 €

Référence  395 6

decoration todo
AGENCE ST PRIEST

15 annonces

Saint-Priest

Description du bien

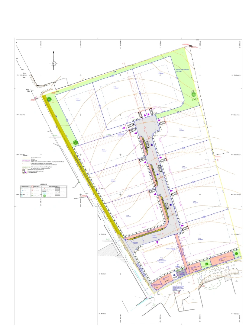
Terrain viabilisé - 800m² - Vue imprenable sur Lyon L'agence CID vous propose en exclusivité des terrains à bâtir viabilisés dans un nouveau lotissement de 11 lots sur les hauteurs de Chaponnay, avec une vue dégagée sur Lyon. Nous vous proposons la parcelle n° 6 de 800m² , terrain avec la plus belle vue du lotissement! Informations sur le bien : - Superficie de 800m² - Libre constructeur - Zonage du PLU : zone AUe - Surface plancher maximum de 250m²  - 50% de la surface du lot devra être en espace vert dont 20 % en pleine terre   - Non soumis au DPE Les informations sur les risques auxquels ce bien est exposé sont disponibles sur le site Géorisques : www.georisques.gouv.fr Nous pouvons vous mettre en relation avec nos constructeurs partenaires, qui pourront vous proposer des projets sur ce lotissement. Pour tous renseignements n'hésitez pas à contacter votre conseillère : Violaine VENDEVILLE 07.69.96.03.38

Afficher plus Afficher moins

LOCALISATION DU BIEN

Quartier Chaponnay à Chaponnay

Points d'intérêts

Transports

Éducation

Services publics

Commerces & Services

Géorisque

Les informations sur les risques auxquels ce bien est exposé sont disponibles sur le site Géorisques https://www.georisques.gouv.fr

Informations financières

A propos du prix

Prix de vente

365 000 €

Calcul de vos mensualités

Simulez vos prêts en quelques clics !

*Les données de ce simulateur sont indicatives et non contractuelles. Calcul hors assurance et frais de garantie.

Vos mensualités
1252 € / mois
  • Montant emprunté
  • Coût des intérêts
  • Coût des intérêts :

    120056
    (d’après le taux d’intérêt annuel moyen : 3.3 %)
decoration
AGENCE ST PRIEST

15 annonces

Saint-Priest

Ce bien vous intéresse ?
*
*
*
*
*
*