property

Appartement à vendre 4 pièces • 2 chambres • 152.41 m2

265 000 €

Appartement à vendre 4 pièces • 2 chambres • 152.41 m2 Mâcon

265 000 €

Prix au m² : 1 739 € / m²

Référence  014

decoration todo
LazzarImmo

10 annonces

Mâcon

Description du bien

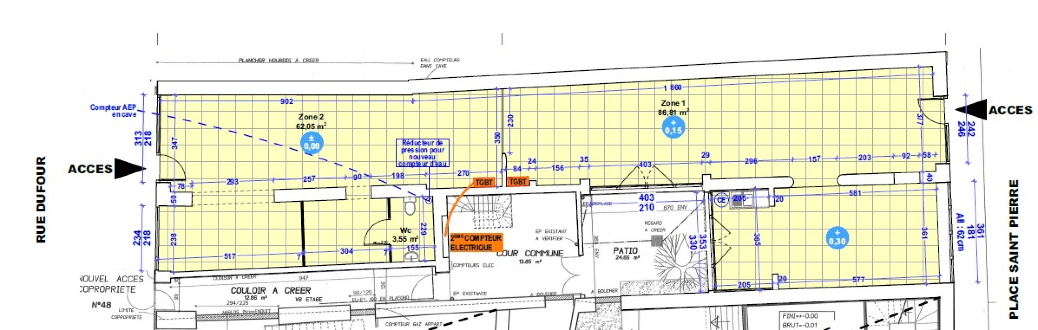
CREEZ votre commerce ou bureau et HABITEZ à proximité immédiate ! ...magasin, boutique, bureaux avec réserve et votre lieux de vie à proximité immédiate ! ESPACE à AMENAGER pour un usage COMMERCIAL et d'HABITATION. L'avantage d'un EMPLACEMENT IDEAL pour les CITADINS, COMMERÇANTS, INVESTISSEURS !   L’immeuble est en bon état d’entretien général : réfection de toiture (2003), ravalement de façades (2016), effacement gaz en façade (2016), mise en conformité garde-coprs escalier commun + divers (2016), électricité parties communes (2016), réfection canalisations eau pluviales et eaux usées (2016), peintures boiseries (2016). Zinguerie en bon état, peu de parties communes, la façade coté place Saint Pierre sera refaite (suite accord de la copropriété contiguë qui prendra en charge ces travaux).   COPROPRIETE : - Nombre de lots : 12 lots dont 6 lots principaux d'habitations et de commerces. - Quote part des charges annuelles courantes de la copropriété : 360 € correspondant à la moyenne des deux dernières années (2023-2024). DPE :  Consommation énergiétique classe C 156 KWhEP/m2.an et émission de Gaz à Effet de Serre classe C 28 kgéqCO2/m2.an. Estimation des coûts annuels : entre 3 170 € et 4 310 € par anPrix moyens des énergies indexés sur les annéesNuméro enregistrement DPE (ADEME) : 2571T1424836W ACCES : - VIA LA PLACE SAINT-PIERRE ET VIA LA RUE DUFOUR. 1 - ESPACE COMMERCIAL situé Rue DUFOUR avec pièce d'archive, toilettes, surface : 62,05 m2. 2 - ESPACE HABITAT situé Place Saint-Pierre à usage commercial et d’habitation : 86,81 m2. 3 + ESPACE WC : 3,55 m2 et Patio extérieur : 24,65 m2.   La SURFACE de 152,41 m2 située en RDC offre un DOUBLE ACCES TRAVERSANT, est DIVISIBLE, les lieux sont actuellement LIBRES de toute occupation !   Secteur en pleine redynamisation proche de tous les commerces et services de l’hyper centre Mâcon, FORT TRAFFIC POINT DE VENTE.   POSSIBILITES pour la création d'un logement (LOT 12) :  Hall d'accueil avec rangements, cuisine ouverte sur séjour à usage de salle-à-manger et salon (profitant de l'accès sur patio de 24,65 m2), chambre 1 et chambre 2 avec accès sur patio, SDE et WC séparé; et possible communication avec le commerce ! Surface : 86,81 m2.   Ce produit offrira à ses futurs propriétaires la liberté d'accéder à pied vers l'ensemble des commerces et services du centre-ville, tout en s'assurant un bon développement commercial ! Le calme dont tout citadin rêve et les volumes suffisants pour s'épanouir : habitat avec le patio pour se ressourcer ou méditer à l’ombre de la Glycine ! L’occasion également d'un projet de galerie « commerçante » tout proche des Halles Mâconnaises ! Les lieux s'offriraient également au développement d'une salle de sport ou pour du coworking ou encore pour l'ouverture d'une galerie d'Art ! TRAFFIC Point de Vente - Le parking de l'Esplanade et le tout nouveau parking Saint-Pierre offrent tout au long de l'année, un flux piéton suffisant pour le développement commercial en coeur de ville d'un commerce ou d'une boutique !     CARACTERISTIQUES TECHNIQUES :  L'ensemble raccordé au réseau collectif d’assainissement local. Diagnostic assainissement : favorable. Faibles charges de la copropriété. SYSTEME DE CHAUFFAGE par chaudière individuelle au gaz de ville et PAR LE SOL (plancher chauffant : circuit hydraulique). Présence d’une chaudière au gaz de ville  coté Place St Pierre. PECS : par la chaudière. ISOLATION : locaux isolés thermiquement par l'intérieur. ELECTRICITE : 2 TABLEAUX électriques côté Rue Dufour et côté place Saint-Pierre, PLOMBERIE-CHAUFFAGE : concernant le circuit Hydraulique du plancher chauffant, présence de deux boucles, on peut donc ainsi rendre dissociables les deux espaces proposés à la vente tout en conservant le confort du chauffage par le sol. CONNECTIQUE : desservi par la FIBRE OPTIQUE / Baie de brassage et de serveur présente. ACCES PH / PMR : pour personnes handicapées et/ou personnes à mobilité réduite côté Place Saint-Pierre, idem côte Rue Dufour. PARKING 100 places à 10 mètres à pied. Transport urbain et Esplande proche.   ECOLES à proximité immédiate : accessibles à pied. Maternelles et primaires : publiques (50 m à pied !) et privées /  Collèges : publics et privés / Lycées : publics et privés,   A SAISIR ! VOUS ETES ICI ---> MACON gares Sncf/Tgv/A6/A40/RCEA / 40' Bourg-en-Bresse / 55' Lyon ( gare Scnf-Ter) / 1h30' Dijon / 1h32' Paris ( gare Tgv) / 1h50' Grenoble / 1h55' Annecy / 1h45 Genève / 2h30 Marseille ( gare Tgv).

Afficher plus Afficher moins

Caractéristiques du bien

  • Intérieur

    • Surface 152.41 m2
    • 2 Chambres
    • 1 WC
  • Extérieur

    • Terrasse
  • Copropriété

    • ANCIEN
    • Nombre de lots: 2
  • Environnement

    • Exposition NORD-EST
    • Environnement HYPER CENTRE HYPER CALME

Diagnostics énergétiques

Consommation énergétique

Emission de gaz

LOCALISATION DU BIEN

Quartier Macon à Mâcon

Points d'intérêts

Transports

Éducation

Services publics

Commerces & Services

Géorisque

Les informations sur les risques auxquels ce bien est exposé sont disponibles sur le site Géorisques https://www.georisques.gouv.fr

Informations financières

A propos du prix

Prix de vente

265 000 €

Prix au m² : 1 739 € / m²

  • Charge de copropriété
    30 € / an

    Montant annuel de la quote-part du budget prévisionnel des dépenses courantes.

  • Taxe foncière
    2 577 € / an

Calcul de vos mensualités

Simulez vos prêts en quelques clics !

*Les données de ce simulateur sont indicatives et non contractuelles. Calcul hors assurance et frais de garantie.

Vos mensualités
909 € / mois
  • Montant emprunté
  • Coût des intérêts
  • Coût des intérêts :

    87164
    (d’après le taux d’intérêt annuel moyen : 3.3 %)
decoration
LazzarImmo

10 annonces

Mâcon

Ce bien vous intéresse ?
*
*
*
*
*
*