property

Appartement à vendre 4 pièces • 3 chambres • 130.71 m2

498 000 €

Appartement à vendre 4 pièces • 3 chambres • 130.71 m2 Aix-les-Bains

498 000 €

Prix au m² : 3 810 € / m²

Référence  236E

decoration todo
PLANIFIQUE IMMOBILIER

61 annonces

Archamps

Description du bien

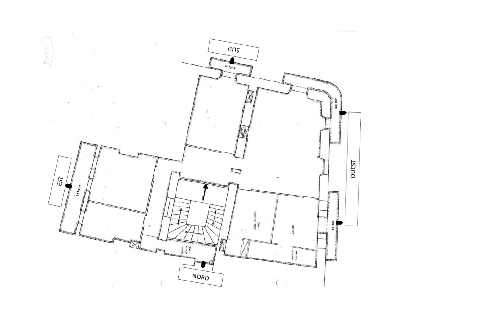
***Exclusivité****   Vivre la ville à pied, profiter de l'atmosphère particulière si calme d'une zone sans circulation, tout en savourant le charme d’un appartement familial de style dans une petite copropriété cossue.     Situé en étage élevé avec des volumes généreux et un balcon pour chaque pièce d'Est en Ouest, cet appartement bénéficie d'une belle lumière et offre des espaces extérieurs ensoleillés très appréciables.   Description du bien :   -Entrée accueillante distribuant les pièces à vivre et le coin nuit d'autre part -Séjour de 35 m² offrant un bel espace de vie convivial, exposé Sud et Ouest, avec vue dégagée sur le Mont du Chat. -Cuisine attenante équipée complété d'un cellier/lingerie pour une surface totale de de 18m2 -Trois chambres de 10, 16 et 18 m² au calme avec placards -Grande salle de bain avec WC -Salle d’eau / WC -Cheminées, moulures et parquets d'origine préservés -Annexes appréciables : une grande cave de 6.8 m² et une mansarde aménageable de 9 m². -Mode de chauffage: Individuel gaz de ville. Chaudière récente et entretenue     Atouts extérieurs et stationnement :   - La localisation : Implanté en zone piétonne au cœur historique d’Aix-les-Bains, cet appartement bénéficie d’un cadre de vie privilégié : commerces, établissements scolaires, gare, bus,  cinéma, théâtre ... et tous les services accessibles à pied. Entre lac et montagnes, la commune offre un équilibre idéal entre dynamisme urbain et douceur de vivre - Le stationnement: En voirie et en parkings couverts et sécurisés à quelques pas avec tarif résident raisonnable avec postes de recharge pour voitures et 2 roues électriques   Envie d’en savoir plus et d'organiser rapidement une visite ? Contactez notre conseiller en transactions immobilières, Henri Derisbourg pour tous compléments d'informations.   Les informations sur les risques auxquels ce bien est exposé sont disponibles sur le site www.georisques.gouv.fr   Pour vous permettre de mieux vous projeter et mettre en valeur le potentiel d'aménagement de ce bien, des aménagements ont été réalisés avec des visuels en 2D   Saisissez cette opportunité !   Planifique Immobilier Bien plus qu'une agence.   

Afficher plus Afficher moins

Caractéristiques du bien

  • Intérieur

    • Surface 130.71 m2
    • 3 Chambres
    • Cuisine EQUIPEE
    • Cheminée
  • Extérieur

    • 5 balcon
  • Surfaces annexes

    • Etage 3
    • Bâtiment de 5 étages
    • Cave
  • Copropriété

    • ANCIEN
    • Nombre de lots: 25
  • Environnement

    • Exposition SUD-OUEST
    • Vue Vue montagne

Diagnostics énergétiques

Consommation énergétique

Emission de gaz

LOCALISATION DU BIEN

Quartier Centre Ville à Aix-les-Bains

Points d'intérêts

Transports

Éducation

Services publics

Commerces & Services

Géorisque

Les informations sur les risques auxquels ce bien est exposé sont disponibles sur le site Géorisques https://www.georisques.gouv.fr

Informations financières

A propos du prix

Prix de vente

498 000 €

Prix au m² : 3 810 € / m²

Calcul de vos mensualités

Simulez vos prêts en quelques clics !

*Les données de ce simulateur sont indicatives et non contractuelles. Calcul hors assurance et frais de garantie.

Vos mensualités
1708 € / mois
  • Montant emprunté
  • Coût des intérêts
  • Coût des intérêts :

    163802
    (d’après le taux d’intérêt annuel moyen : 3.3 %)
decoration
PLANIFIQUE IMMOBILIER

61 annonces

Archamps

Ce bien vous intéresse ?
*
*
*
*
*
*