property

Appartement à vendre 5 pièces • 4 chambres • 94.74 m2

380 000 €

Appartement à vendre 5 pièces • 4 chambres • 94.74 m2 Challes-les-Eaux

380 000 €

Prix au m² : 4 011 € / m²

Référence  NXTCLE

decoration todo
GROUPE RD IMMO

141 annonces

Aix-les-Bains

Description du bien

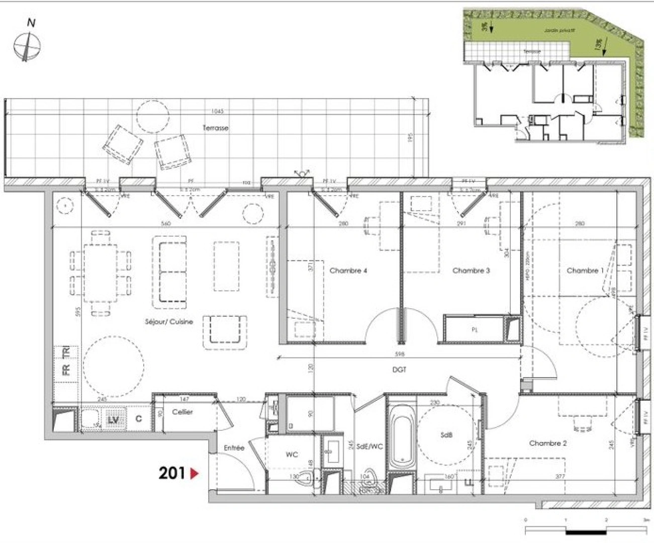
Situé au RDC avec terrasse et jardin, ce superbe appartement T5 de 96.74 m² offre un emplacement rare au sein d’une résidence calme et sécurisée . ESPACES DE VIE • Pièce de vie lumineuse de 30 m² avec cuisine ouverte, accès direct a la terrasse et au jardin privatif de 70m². • 4 Chambres • 1 Salle de bain équipée . 1 Salle de douche en sus avec WC • 1 WC séparé • 1 Cellier   CONFORT & PRESTATIONS • Chauffage individuel gaz à condensation • Volets roulants motorisés • Ascenseur • Digicode & interphone • Résidence sécurisée   ESPACE EXTÉRIEUR • Une Belle terrasse de 20 m² orienté au nord et un jardin privatif de 50m². • 1 Garage en sous-sol   Dossier complet & plans sur demande.   Une annonce du Groupe RD IMMO   Pour plus d'informations contacter : Maud Perrier : O6 22 34 48 23 maud@groupe-rdimmo.fr Agent Commercial Indépendant RSAC No 420 800 674

Afficher plus Afficher moins

Caractéristiques du bien

  • Intérieur

    • Surface 94.74 m2
    • 4 Chambres
  • Surfaces annexes

    • Garage
  • Environnement

    • Exposition SUD
    • Vue Montagne
    • Environnement Ville

Diagnostics énergétiques

Consommation énergétique

Emission de gaz

LOCALISATION DU BIEN

Quartier Challes-les-Eaux à Challes-les-Eaux

Points d'intérêts

Transports

Éducation

Services publics

Commerces & Services

Géorisque

Les informations sur les risques auxquels ce bien est exposé sont disponibles sur le site Géorisques https://www.georisques.gouv.fr

Informations financières

A propos du prix

Prix de vente

380 000 €

Prix au m² : 4 011 € / m²

Calcul de vos mensualités

Simulez vos prêts en quelques clics !

*Les données de ce simulateur sont indicatives et non contractuelles. Calcul hors assurance et frais de garantie.

Vos mensualités
1303 € / mois
  • Montant emprunté
  • Coût des intérêts
  • Coût des intérêts :

    124989
    (d’après le taux d’intérêt annuel moyen : 3.3 %)
decoration
GROUPE RD IMMO

141 annonces

Aix-les-Bains

Ce bien vous intéresse ?
*
*
*
*
*
*