Propriete à vendre 7 pièces • 5 chambres • 180 m2 Machilly
Prix au m² : 20 556 € / m²
Référence 74079
Description du bien
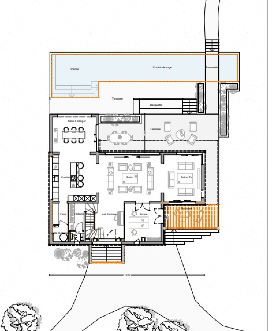
Propriété d’Exception 'Pieds dans l’Eau' – Domaine de Coudrée, Sciez Découvrez une propriété rare et exclusive, idéalement située dans le prestigieux Domaine privé et sécurisé de Coudrée, sur les rives du Lac Léman. Offrant une vue panoramique à 180° sur la Riviera vaudoise et les Alpes, ce bien unique vous promet un cadre de vie magique et apaisant, au plus proche de l’eau. Un emplacement exceptionnel & un cadre idyllique Terrain de 2 490 m² offrant un accès direct au lac Ponton privé, idéal pour les amoureux de la navigation et des paysages lacustres Double garage et un charmant mazot, ajoutant du cachet à cette propriété Une maison à fort potentiel Avec 220 m² de surface habitable, cette propriété offre de nombreuses possibilités : ???? Rez-de-jardin : Un grand séjour lumineux avec une vue imprenable sur le lac Une cuisine fonctionnelle Un bureau Un WC ???? À l’étage : Cinq chambres offrant une belle luminosité Une salle de bains et un WC Deux options pour un projet à votre image 1?? Rénovation : Modernisez cette demeure pour conserver son charme authentique, tout en bénéficiant de 180 m² habitables. 2?? Reconstruction : Créez la villa de vos rêves avec une surface habitable pouvant atteindre 240 m². Permis de construire accepté et purgé de tout recours pour un projet sans contraintes. Un cadre de vie unique et préservé Le Domaine de Coudrée, véritable havre de paix, vous offre une sécurité optimale grâce à un service de gardiennage. Vous profiterez de plages privées, de ports, d’un terrain de tennis et d’espaces de loisirs pour une qualité de vie exceptionnelle. NE MANQUEZ PAS CET OPPORTUNIT2 UNIQUE !
Caractéristiques du bien
-
Intérieur
- Surface 180 m2
- 5 Chambres
- 2 WC
- Cuisine EQUIPEE
-
Extérieur
- Terrasse
-
Surfaces annexes
- Garage
-
Environnement
- Environnement Pieds dans l'eau
Diagnostics énergétiques
Consommation énergétique
Emission de gaz
LOCALISATION DU BIEN
Machilly
Géorisque
Informations financières
A propos du prix
Prix de vente
Prix au m² : 20 556 € / m²

Calcul de vos mensualités
- Montant emprunté
- Coût des intérêts
-
Coût des intérêts :
1217001 €