property

Triplex à vendre 5 pièces • 3 chambres • 139 m2

575 000 €

Triplex à vendre 5 pièces • 3 chambres • 139 m2 Doussard

575 000 €

Prix au m² : 4 137 € / m²

Référence  2025-11-4

decoration todo
NEMOZ IMMOBILIER

16 annonces

Talloires

Description du bien

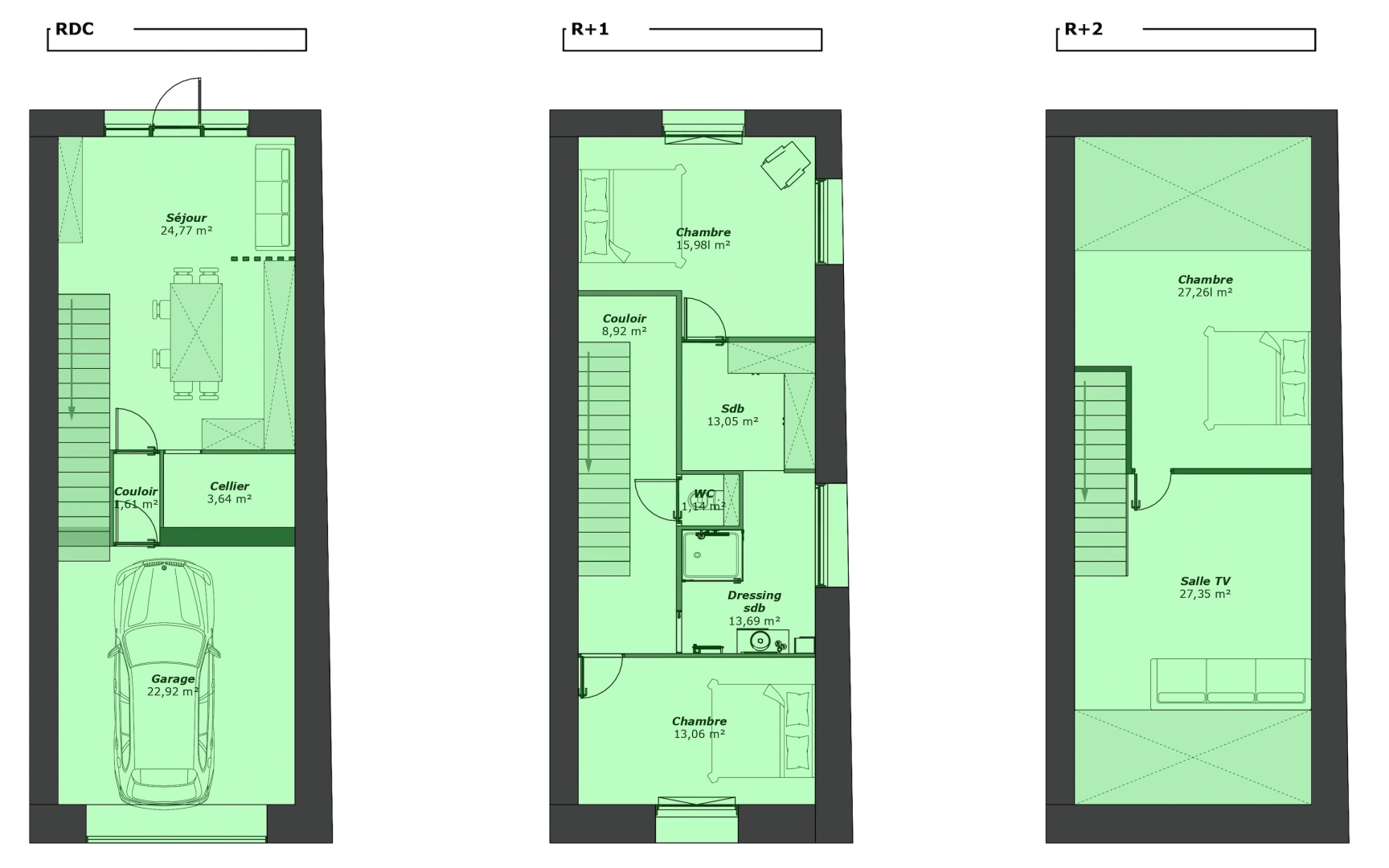
  Doussard, au sein d'une ancienne grange entièrement réhabilitée en 5 appartements, laissez vous séduire par ce superbe T5 en triplex de 139 m2 à l'état futur d'achevement. Son accès direct depuis un garage privatif à ouverture électrique. facilitera votre quotidien. Au rez-de-jardin vous profiterez d'un séjour lumineux avec cuisine ouverte,donnant sur une terrasse privative au calme. Un cellier complète cet étage. Au 1er étage l'espace de nuit se compose de deux chambres, d'une salle de bains, d'une salle d'eau et d'un dressing pour optimiser votre confort. Au dernier niveau vous trouverez  une troisième chambre, ainsi qu'une grande pièce idéale pour un bureau,une salle de jeux ou une salle TV. Des prestations hauts de game: chauffage par pompe à chaleur,climatisation pour un confort en toute saison, volets roulants électriques , matériaux et finitions soignés. Le maître d'oeuvre et l'architecte  vous accompagneront dans la personnalisation de l'agencement et la décoration,selon vos envie et votre style de vie pour un interieur à votre image.  Ne passez pas à côté de ce magnifique projet de vie !        

Afficher plus Afficher moins

Caractéristiques du bien

  • Intérieur

    • Surface 139 m2
    • 3 Chambres
    • 1 Salle de bain/eau
  • Surfaces annexes

    • Garage

LOCALISATION DU BIEN

Quartier Doussard à Doussard

Points d'intérêts

Transports

Éducation

Services publics

Commerces & Services

Géorisque

Les informations sur les risques auxquels ce bien est exposé sont disponibles sur le site Géorisques https://www.georisques.gouv.fr

Informations financières

A propos du prix

Prix de vente

575 000 €

Prix au m² : 4 137 € / m²

Calcul de vos mensualités

Simulez vos prêts en quelques clics !

*Les données de ce simulateur sont indicatives et non contractuelles. Calcul hors assurance et frais de garantie.

Vos mensualités
1972 € / mois
  • Montant emprunté
  • Coût des intérêts
  • Coût des intérêts :

    189129
    (d’après le taux d’intérêt annuel moyen : 3.3 %)
decoration
NEMOZ IMMOBILIER

16 annonces

Talloires

Ce bien vous intéresse ?
*
*
*
*
*
*