property

Maison à vendre 5 pièces • 4 chambres • 112 m2

569 000 €

Maison à vendre 5 pièces • 4 chambres • 112 m2 Mésigny

569 000 €

Prix au m² : 5 081 € / m²

Référence  2025 284bis

decoration todo
Ingen Immo

19 annonces

Annecy

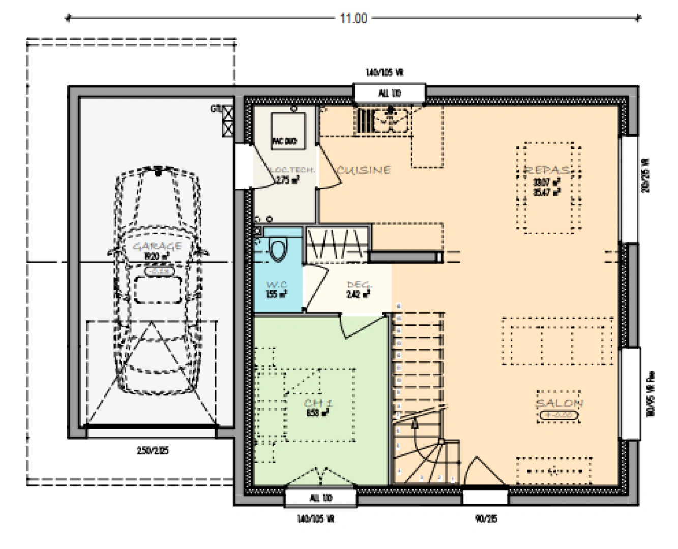
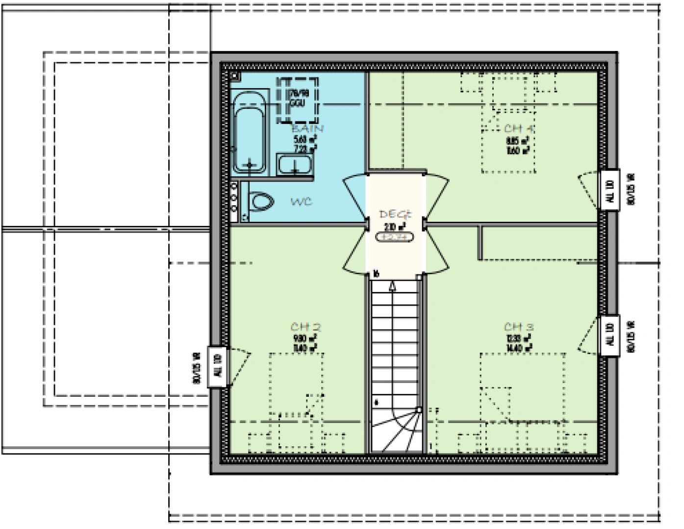
Description du bien

cette villa sera édifiée sur une parcelle de 1102 m² au total (incluant un jardin agricole arboré d'un noyer de 199 m²) située juste au dessus du centre bourg ,accessible à pied . Astucieusement imaginée, la villa de 112 m² utiles comprend 3 chambres et un bureau, ainsi qu' un garage en annexe. Pompe à chaleur, très bon niveau d'équipements (nous consulter pour les détails). Vous profiterez d'un terrain tout plat, donnant sur la campagne. Ce projet est personnalisable. Illustration d'artiste. Prix hors frais de notaire du terrain.

Afficher plus Afficher moins

Caractéristiques du bien

  • Intérieur

    • Surface 112 m2
    • 4 Chambres
    • 2 WC
    • 1 Salle de bain/eau
  • Surfaces annexes

    • Garage
  • Environnement

    • Vue campagne

LOCALISATION DU BIEN

Quartier Mésigny à Mésigny

Points d'intérêts

Transports

Éducation

Services publics

Commerces & Services

Géorisque

Les informations sur les risques auxquels ce bien est exposé sont disponibles sur le site Géorisques https://www.georisques.gouv.fr

Informations financières

A propos du prix

Prix de vente

569 000 €

Prix au m² : 5 081 € / m²

Calcul de vos mensualités

Simulez vos prêts en quelques clics !

*Les données de ce simulateur sont indicatives et non contractuelles. Calcul hors assurance et frais de garantie.

Vos mensualités
1952 € / mois
  • Montant emprunté
  • Coût des intérêts
  • Coût des intérêts :

    187155
    (d’après le taux d’intérêt annuel moyen : 3.3 %)
decoration
Ingen Immo

19 annonces

Annecy

Ce bien vous intéresse ?
*
*
*
*
*
*