property

Terrain à vendre 5 pièces • 4 chambres • 120 m2

310 000 €

Terrain à vendre 5 pièces • 4 chambres • 120 m2 Charvonnex

310 000 €

Prix au m² : 2 584 € / m²

Référence  5639

decoration todo
Fantin Immobilier

14 annonces

Annecy

Description du bien

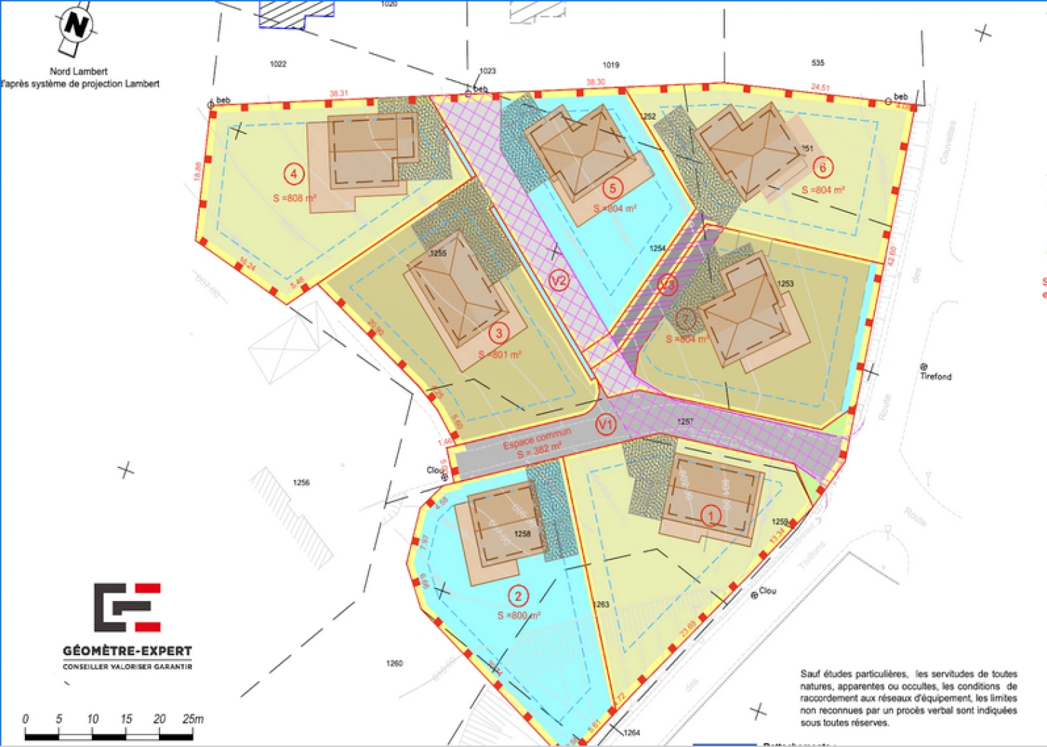
Terrain constructible avec projet de villa, 3 lots à la vente dans un environnement au calme, à 15 minutes d'Annecy, sur l'axe Annecy / Genève. Prix pour un terrain à partir de 310.000€ ttc, dans un lotissement de 7 villas contemporaines au total, sur des parcelles de 800 m² minimum / lot, vue sur le Parmelan et les montagnes du tour du lac. Chaque terrain sera vendu avec un projet de villa de 4 chambres dont une au rdc, d'une grande pièce de vie ouverte sur le jardin et sur un balcon , d'un grand sous sol comprenant un garage, un local technique et une cave. Ce projet de villa est modifiable et personnalisable, il rempli toutes les conditions en matière de qualité de prestations et de confort où tout est conçu pour votre bien être. Nous vous mettrons en contact avec le constructeur des villas; le prix / villa terminée, à partir de 727.000€ ttc comprenant, le terrain, la villa et les frais de notaire. Plus d'informations, visite du terrain, nous consulter. Les informations sur les risques auxquels ce bien est exposé sont disponibles sur le site Géorisques : www.georisques.gouv.fr

Afficher plus Afficher moins

Caractéristiques du bien

  • Intérieur

    • Surface 120 m2
    • 4 Chambres
  • Extérieur

    • Terrasse
  • Surfaces annexes

    • Garage
  • Copropriété

    • Nombre de lots: 7
  • Environnement

    • Exposition SUD-EST
    • Vue montagnes et résidence
    • Environnement village, proche ville

LOCALISATION DU BIEN

Quartier Charvonnex à Charvonnex

Points d'intérêts

Transports

Éducation

Services publics

Commerces & Services

Géorisque

Les informations sur les risques auxquels ce bien est exposé sont disponibles sur le site Géorisques https://www.georisques.gouv.fr

Informations financières

A propos du prix

Prix de vente

310 000 €

Prix au m² : 2 584 € / m²

Calcul de vos mensualités

Simulez vos prêts en quelques clics !

*Les données de ce simulateur sont indicatives et non contractuelles. Calcul hors assurance et frais de garantie.

Vos mensualités
1063 € / mois
  • Montant emprunté
  • Coût des intérêts
  • Coût des intérêts :

    101965
    (d’après le taux d’intérêt annuel moyen : 3.3 %)
decoration
Fantin Immobilier

14 annonces

Annecy

Ce bien vous intéresse ?
*
*
*
*
*
*