Maison à vendre 6 pièces • 5 chambres • 220 m2 Lucinges
Prix au m² : 2 955 € / m²
Référence BVRM50
Description du bien
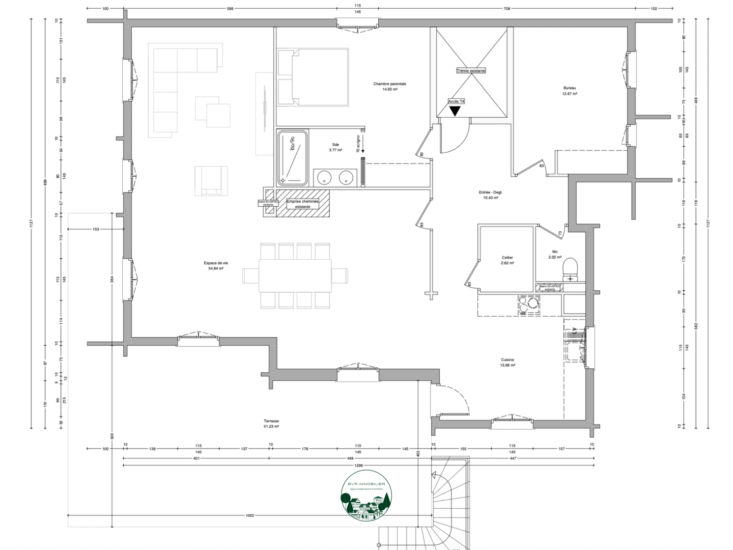
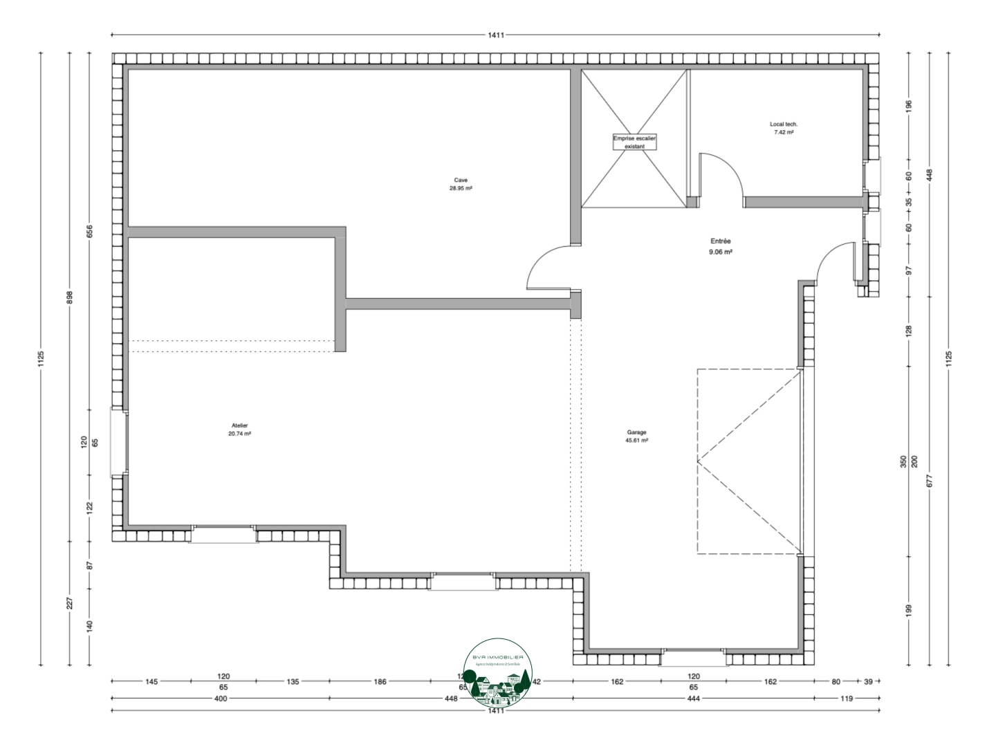
A découvrir sur les hauteurs de Lucinges, ce magnifique projet de vie pour une maison de vacances au quotidien. Chalet de 220 m2 au sol, environ 204 m2 habitables et sous sol de 114 m2. Construction en bois massif des années 90, édifiée sur un terrain plat de 1230 m2 piscinable. Dans sa configuration actuelle, au premier étage, il se compose d'un salon séjour avec cheminée, cuisine ouverte. 2 chambres, bureau, salle d'eau, wc. Au dernier étage, 2 chambres mansardées, et un grand espace lumineux. Nous pouvons vous proposer un projet clés en main, entièrement budgétisé pour réaménager entièrement ce bien plein de charme. Chiffrage en cours. Les plans correspondent au nouveau projet imaginé. Chauffage par chaudière bois + cheminée + radiateurs électriques pour le dernier étage. Les informations sur les risques auxquels ce bien est exposé sont disponibles sur le site Géorisques : www.georisques.gouv.fr L'équipe BVR Immobilier.
Caractéristiques du bien
-
Intérieur
- Surface 220 m2
- 5 Chambres
- 2 WC
- Cheminée
-
Extérieur
- Terrasse
-
Surfaces annexes
- Garage
Diagnostics énergétiques
Consommation énergétique
Emission de gaz
LOCALISATION DU BIEN
Quartier Lucinges à Lucinges
Géorisque
Informations financières
A propos du prix
Prix de vente
Prix au m² : 2 955 € / m²

Calcul de vos mensualités
- Montant emprunté
- Coût des intérêts
-
Coût des intérêts :
213798 €