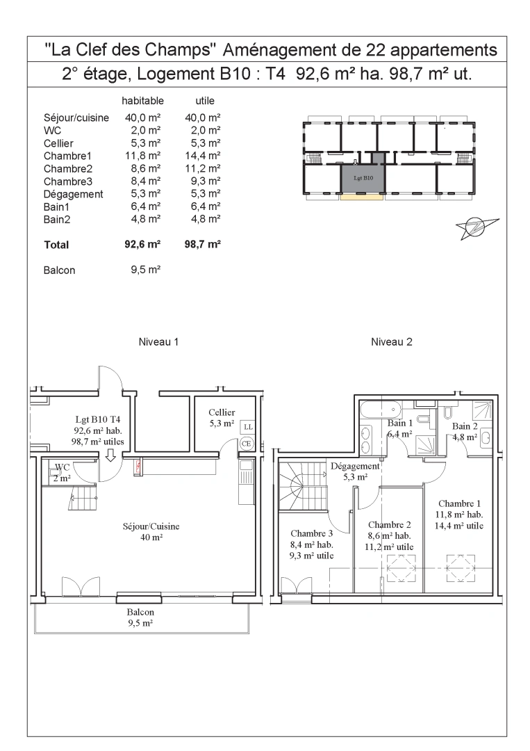
Appartement à vendre 4 pièces • 3 chambres • 92.6 m2 Saint-Jeoire
Prix au m² : 2 528 € / m²
Référence 319
Description du bien
Dans un cadre calme et verdoyant, tout en restant proche des commodités (écoles, commerces, transports scolaires), venez découvrir ce plateau brut de 95.3 m² situé au 2ème étage d’une résidence en cours de réhabilitation. Ce bien rare offre de nombreuses possibilités d’aménagement selon vos besoins. Les réseaux (électricité, eau et évacuation) sont déjà installés pour faciliter vos travaux. Vous disposerez également d’un balcon, d’une cave et d’une place de stationnement privative. Vue Mont-blanc. Plusieurs plateaux sont disponibles dans cette copropriété en pleine rénovation, idéale pour un projet de résidence principale, secondaire ou investissement locatif. Caractéristiques : Surface : 95.3 m² Prix : 234 060 € (honoraires à la charge du vendeur) Bien non soumis au DPE Copropriété de 22 lots – aucune procédure en cours Ce plateau est une véritable page blanche : concevez l’appartement qui vous ressemble, dans un cadre privilégié. Contactez nous pour organiser une visite !
Caractéristiques du bien
-
Intérieur
- Surface 92.6 m2
- 3 Chambres
- 1 WC
- 1 Salle de bain/eau
LOCALISATION DU BIEN
Quartier Saint-Jeoire à Saint-Jeoire
Géorisque
Informations financières
A propos du prix
Prix de vente
Prix au m² : 2 528 € / m²

Calcul de vos mensualités
- Montant emprunté
- Coût des intérêts
-
Coût des intérêts :
76987 €