property

Maison à vendre 8 pièces • 6 chambres • 256 m2

2 480 000 €

Maison à vendre 8 pièces • 6 chambres • 256 m2 Paris 15

2 480 000 €

Prix au m² : 9 688 € / m²

Référence  FBRXNT

decoration todo
ETUDE S. MAYORKAS

10 annonces

Paris 15

Description du bien

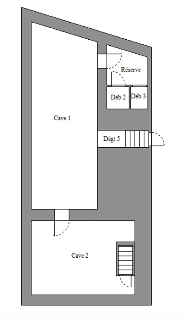
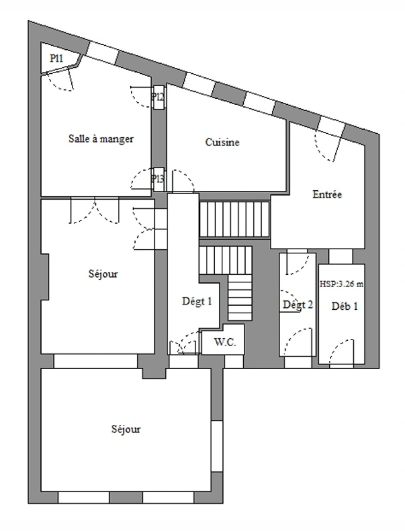
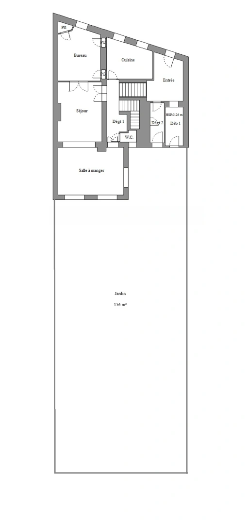
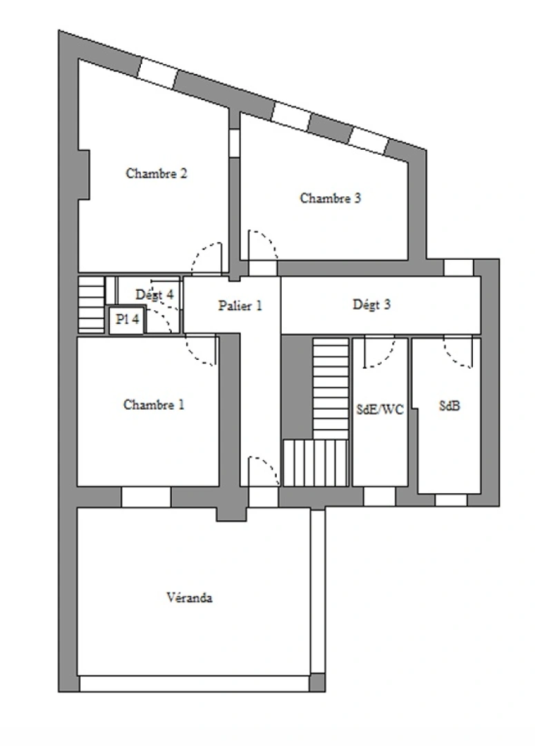
Sur un terrain de 301 m², Maison familiale de 256 m² + entresol de 67 m² et jardin de 156 m² calme et ensoleillé. Elle se compose au rez-de-chaussée surélevé d'une entrée, une triple réception de 55.8 m², une cuisine de 11.6 m², un wc, et un cagibi. Au 1er étage, 3 belles chambres de 16 m², 12.3 m² et 11.9 m², une salle de bains et une salle de douche, des wc, ainsi qu'une belle véranda de 22 m² surplombant le jardin. Au 2ème étage (mansardé), 2 chambres et un cabinet de toilettes, ainsi qu'une pièce non encore aménagée pouvant être une 6ème chambre. A l'entresol, des pièces de stockage et une chaufferie. Au sous-sol, une cave à vin. Terrasse et jardin à l'arrière. La maison date du milieu du XIXème siècle, et les éléments d'origine ont été conservés (parquet, moulures, cheminées). Parfaitement agencée, elle nécessitera toutefois des travaux de rénovation. Emplacement proche des commodités : nombreux commerces, écoles, square. Métro Convention ou Porte de Versailles. . On a 301 m² area, 256 m² family house + 67 m² basement and a 156 m² calm and sunny garden. Including on the ground floor : entrance, triple reception room of 55.8 m², kitchen of 11.6 m², WC, and storage closet. On the 1st floor : 3 beautiful bedrooms of 16 m², 12.3 m² and 11.9 m², bathroom, shower room, WC, as well as a lovely 22 m² veranda overlooking the garden. On the 2nd floor (attic): 2 bedrooms and WC, plus an unconverted space that could become a 6th bedroom. In the basement : storage rooms, boiler room, and wine cellar. Terrace and garden at the back. The house is from the mid-19th century, and original features have been preserved (parquet flooring, mouldings, fireplaces). Perfectly laid out, it will nevertheless require renovation work. Location close to amenities : many shops, schools, park. Metro Convention or Porte de Versailles.

Afficher plus Afficher moins

Caractéristiques du bien

  • Intérieur

    • Surface 256 m2
    • 6 Chambres
    • 3 WC
    • 1 Salle de bain/eau
  • Extérieur

    • Jardin de 156 m2
    • Terrasse

Diagnostics énergétiques

Consommation énergétique

Emission de gaz

LOCALISATION DU BIEN

Quartier Saint-Lambert à Paris 15

Points d'intérêts

Transports

Éducation

Services publics

Commerces & Services

Géorisque

Les informations sur les risques auxquels ce bien est exposé sont disponibles sur le site Géorisques https://www.georisques.gouv.fr

Informations financières

A propos du prix

Prix de vente

2 480 000 €

Prix au m² : 9 688 € / m²

  • Taxe foncière
    4 420 € / an

Calcul de vos mensualités

Simulez vos prêts en quelques clics !

*Les données de ce simulateur sont indicatives et non contractuelles. Calcul hors assurance et frais de garantie.

Vos mensualités
8506 € / mois
  • Montant emprunté
  • Coût des intérêts
  • Coût des intérêts :

    815720
    (d’après le taux d’intérêt annuel moyen : 3.3 %)
decoration
ETUDE S. MAYORKAS

10 annonces

Paris 15

Ce bien vous intéresse ?
*
*
*
*
*
*