Immeuble à vendre 268 m2 Fontainebleau

775 000 €

Prix au m² : 2 892 € / m²

Référence  3118

decoration todo
Cabinet Joffre Transactions

19 annonces

Fontainebleau

Description du bien

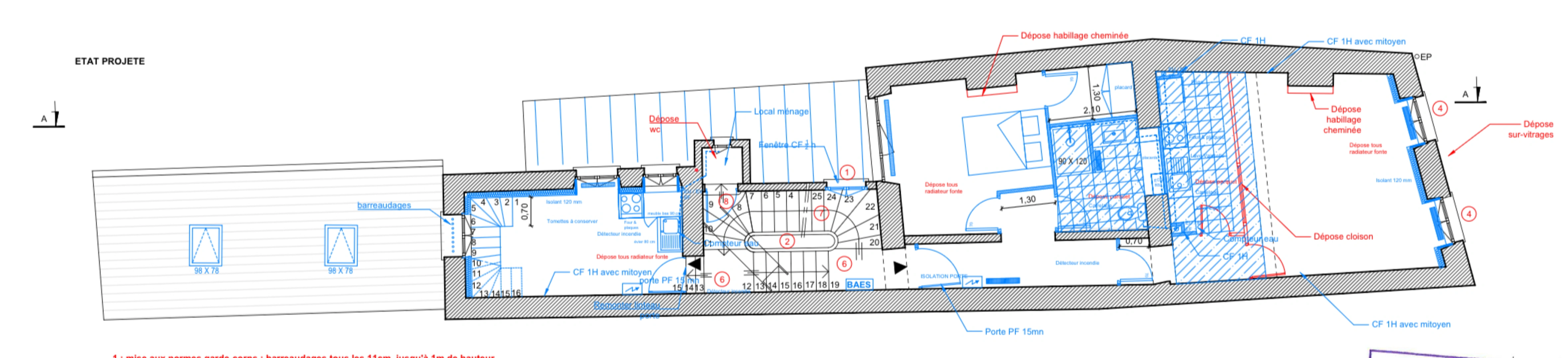
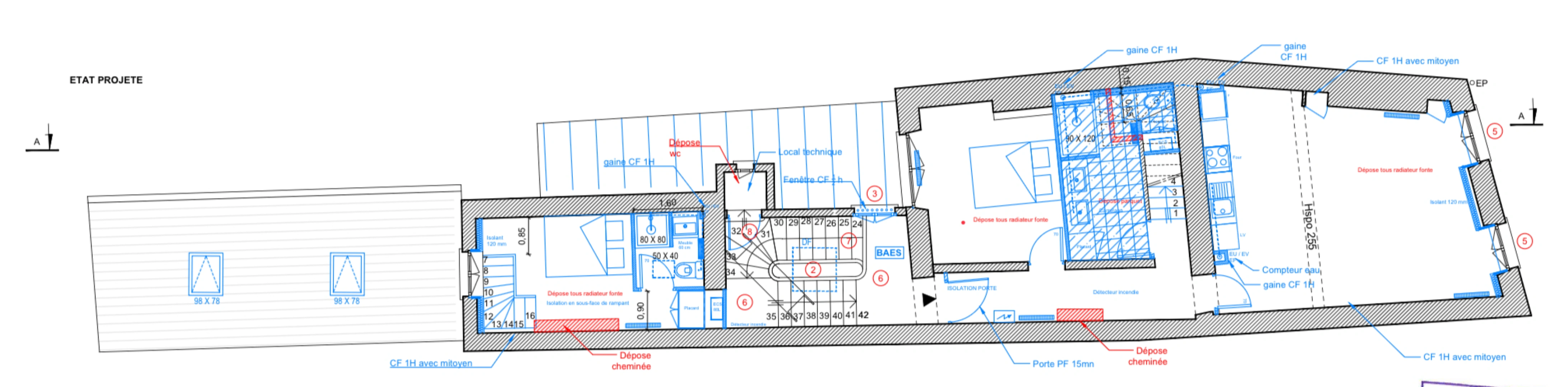
Situé Place de l’Étape, en plein cœur de Fontainebleau, cet immeuble de caractère à usage mixte habitation et commercial bénéficie d’un emplacement premium au sein d’un secteur commerçant très recherché. Il développe une superficie totale d’environ 268 m² et offre un fort potentiel de valorisation grâce à un projet de transformation déjà validé. Le bien : Immeuble mixte habitation / commerce. Cave voûtée. Grenier aménageable d’environ 31 m2 carrez. Beaux volumes et hauteurs sous plafond. Partie habitation (actuelle), environ 173 m²: - Rez-de-chaussée : entrée indépendante desservant les étages. Local poubelles - 1er étage : cuisine, deux bureaux, entrée et couloir. - 2e étage : deux bureaux, entrée / couloir, débarras, WC. Grenier au-dessus. Cave voûtée en sous-sol Projet immobilier validé avec Déclaration Préalable accordée en janvier 2025 pour la création de 3 logements : F2 en duplex (1er / 2e étage) environ 22,63 m². + F2 (1er étage) environ 55,40 m². + F4 en duplex (2e / 3e étage) environ 86,80 m². Étude d’aménagement et chiffrage des travaux disponibles. Commerce en place, environ 95 m² loué depuis 18 ans.

Afficher plus Afficher moins

Caractéristiques du bien

  • Intérieur

    • Surface 268 m2
  • Surfaces annexes

    • Bâtiment de 3 étages

Diagnostics énergétiques

Consommation énergétique

Emission de gaz

LOCALISATION DU BIEN

Quartier Centre Ville Nord-Ouest à Fontainebleau

Points d'intérêts

Transports

Éducation

Services publics

Commerces & Services

Géorisque

Les informations sur les risques auxquels ce bien est exposé sont disponibles sur le site Géorisques https://www.georisques.gouv.fr

Informations financières

A propos du prix

Prix de vente

775 000 €

Prix au m² : 2 892 € / m²

  • Taxe foncière
    4 915 € / an

Calcul de vos mensualités

Simulez vos prêts en quelques clics !

*Les données de ce simulateur sont indicatives et non contractuelles. Calcul hors assurance et frais de garantie.

Vos mensualités
2658 € / mois
  • Montant emprunté
  • Coût des intérêts
  • Coût des intérêts :

    254912
    (d’après le taux d’intérêt annuel moyen : 3.3 %)
decoration
Cabinet Joffre Transactions

19 annonces

Fontainebleau

Ce bien vous intéresse ?
*
*
*
*
*
*