property

Maison à vendre 3 pièces • 2 chambres • 73 m2

292 000 €

Maison à vendre 3 pièces • 2 chambres • 73 m2 Chevreuse

292 000 €

Prix au m² : 4 000 € / m²

Référence  VMA10000939

decoration todo
AGENCE IMMOBILIERE DU GOLF

27 annonces

Igny

Description du bien

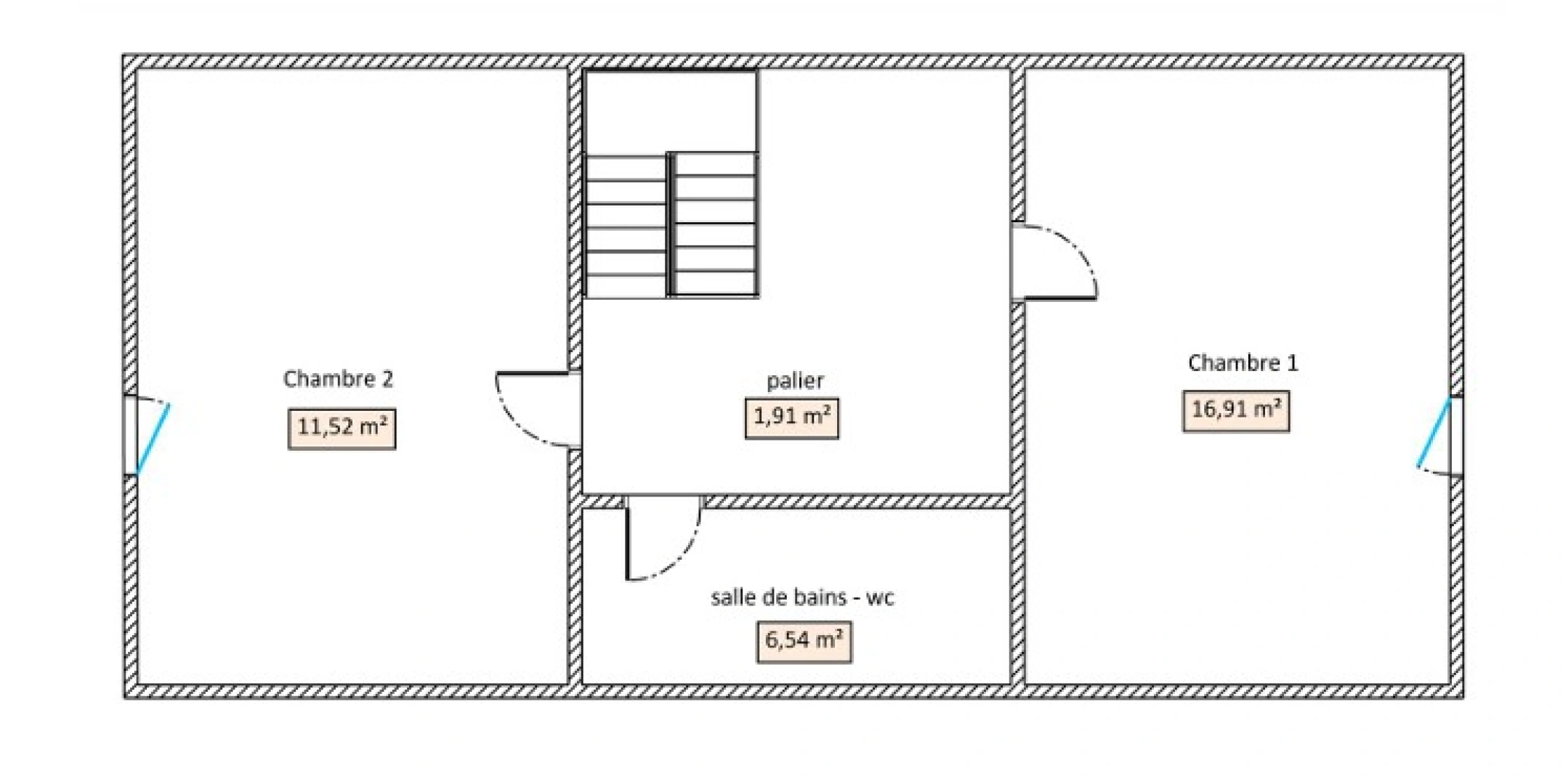
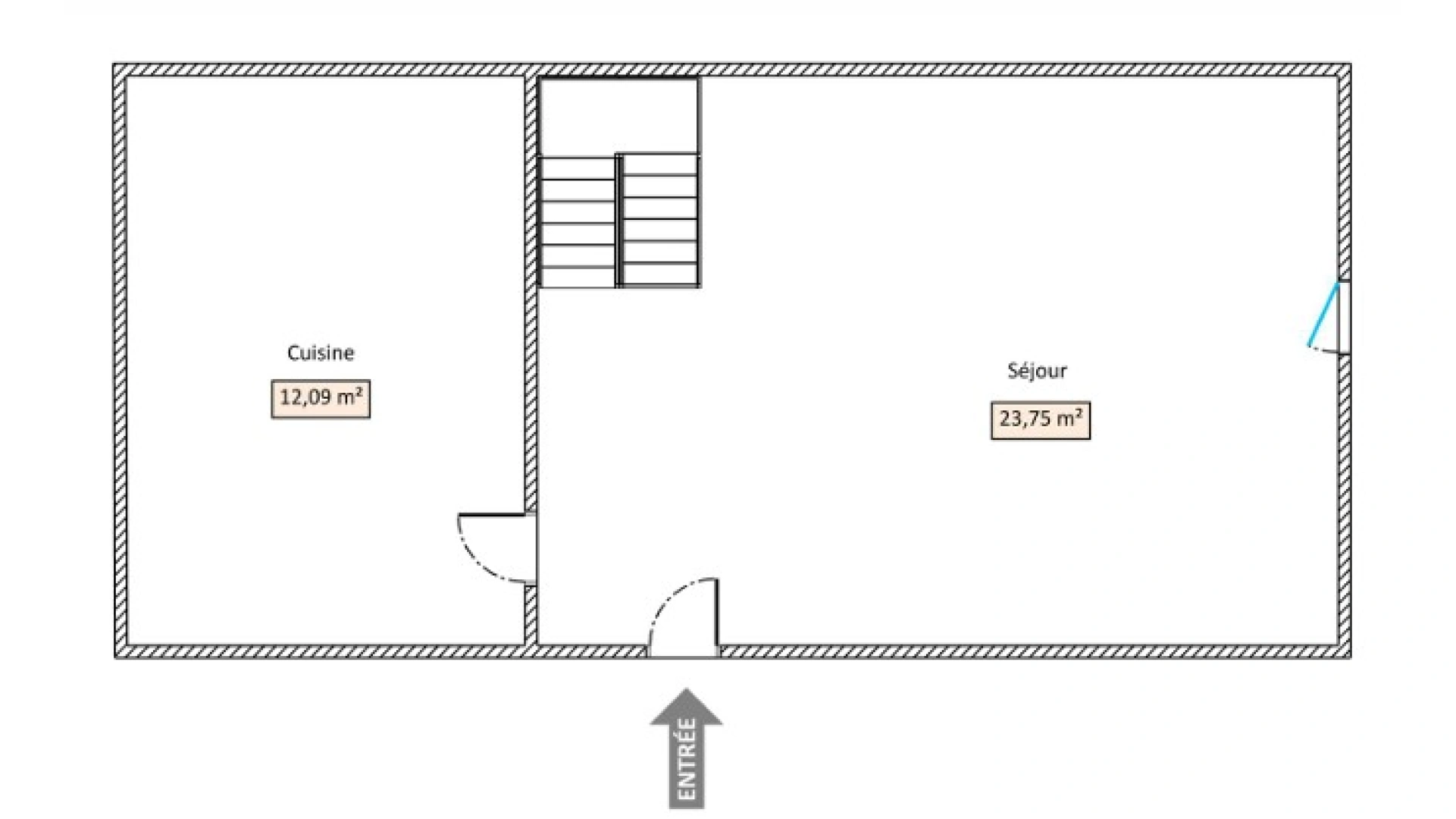
L’Agence de la Ferme vous propose cette charmante maison mitoyenne d’un seul côté, d’une superficie de 73 m², offrant une vue dégagée sur le château de Chevreuse. Idéalement située à proximité immédiate du centre-ville, des écoles, des commerces et de la forêt. Elle se compose au rez-de-chaussée d’un séjour avec cheminée, d’une cuisine indépendante ainsi que de WC séparés. À l’étage, vous trouverez deux chambres et une salle de bains avec WC. Un garage complète ce bien, implanté sur un terrain de 203 m². Des travaux de plomberie et d’électricité ont déjà été réalisés. Des travaux de rafraîchissement et de finitions restent à prévoir, laissant place à un fort potentiel d’aménagement. L'environnement est agréable et recherché.

Afficher plus Afficher moins

Caractéristiques du bien

  • Intérieur

    • Surface 73 m2
    • 2 Chambres
    • 1 WC
    • 1 Salle de bain/eau
    • Cuisine EQUIPEE
  • Surfaces annexes

    • Garage
  • Environnement

    • Exposition EST-OUEST

Diagnostics énergétiques

Consommation énergétique

Emission de gaz

LOCALISATION DU BIEN

Quartier Chevreuse Coteau Sud à Chevreuse

Points d'intérêts

Transports

Éducation

Services publics

Commerces & Services

Géorisque

Les informations sur les risques auxquels ce bien est exposé sont disponibles sur le site Géorisques https://www.georisques.gouv.fr

Informations financières

A propos du prix

Prix de vente

292 000 €

Prix au m² : 4 000 € / m²

Calcul de vos mensualités

Simulez vos prêts en quelques clics !

*Les données de ce simulateur sont indicatives et non contractuelles. Calcul hors assurance et frais de garantie.

Vos mensualités
1001 € / mois
  • Montant emprunté
  • Coût des intérêts
  • Coût des intérêts :

    96044
    (d’après le taux d’intérêt annuel moyen : 3.3 %)
decoration
AGENCE IMMOBILIERE DU GOLF

27 annonces

Igny

Ce bien vous intéresse ?
*
*
*
*
*
*