Maison à vendre 3 pièces • 2 chambres • 58 m2 Soual
Prix au m² : 3 287 € / m²
Référence 54210
Description du bien
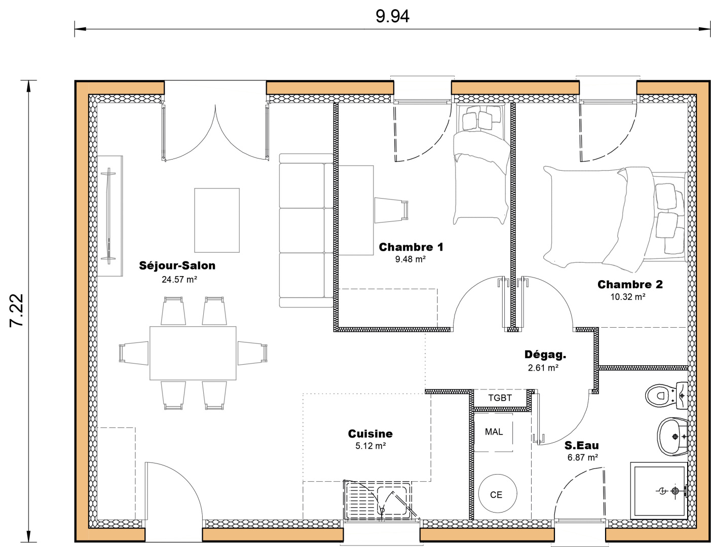
SOUAL, à vendre, un terrain à bâtir d'une surface de 1160 m², au sein d'un écrin de verdure et dans un quartier calme, situé à 15 minutes de Castres et de Revel. Pharmacie, centre médical, supermarché et échangeur d'autoroute sont les atouts supplémentaires de ce charmant village aux portes de Toulouse.Terrain d'une valeur de 58 000 €, vendu directement par son propriétaire à contacter par vous, sans entremise du constructeur Maisons SIC. Pour plus de renseignements, merci de contacter David BALDI, commercial Maisons SIC, au 06 13 72 46 77.PRIMO en 58 m² avec 2 chambres, cuisine ouverte, volets roulants électriques, et chauffage en pompe à chaleur Split. Maison prête à décorer, d'une valeur de 99 900 € ttc.Tarif incluant terrain d'une surface de 1160 m², frais de notaire, VRD et maison : 190 600 € ttc
Caractéristiques du bien
- 
        Intérieur- Surface 58 m2
- 2 Chambres
 
LOCALISATION DU BIEN
Quartier Soual à Soual
Géorisque
Informations financières
A propos du prix
Prix de vente
Prix au m² : 3 287 € / m²
 
           
                          Calcul de vos mensualités
- Montant emprunté
- Coût des intérêts
- 
                              (d’après le taux d’intérêt annuel moyen : 3.3 %)Coût des intérêts : 62692 €
 
     
     
                               
      
               
       
       
                   
             
             
             
             
                     
                       
                                                    