Maison à vendre 4 pièces • 3 chambres • 94 m2 Montbeton
Prix au m² : 2 864 € / m²
Référence 53766
Description du bien
A 10 MNS de Montauban terrain plat, façade 20m, orientation S/E.Viabilisés.Proche centre dans quartier résidentiel.Maison et terrain 269158 eurosPascal MARINMaisons SIC0662337411* Cette annonce concerne un terrain vendu au prix de 51O00 euros, une maison vendue au prix de 187258 euros (hors finitions) aux normes RE2020; les frais de notaire s'élèvent à 5400 euros; 25500 euros de frais annexes ( terrassement, raccordement...).Ce terrain est vendu directement par un partenaire sans entremise du constructeur Maisons Sic.
Caractéristiques du bien
-
Intérieur
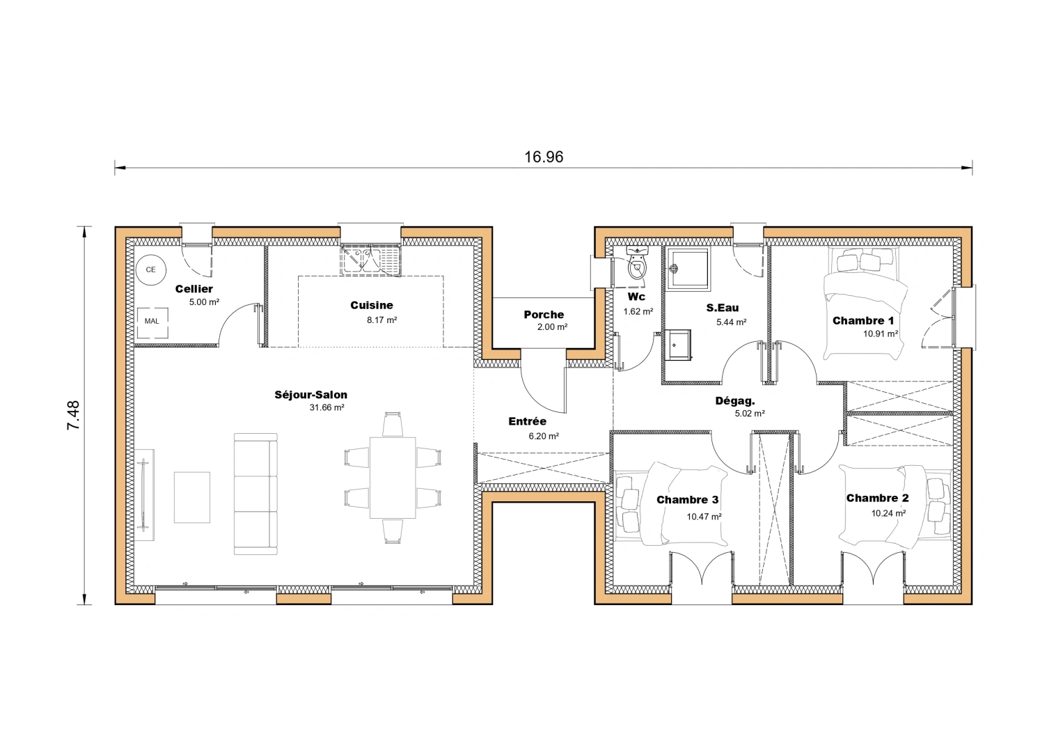
- Surface 94 m2
- 3 Chambres
LOCALISATION DU BIEN
Quartier Montbeton à Montbeton
Géorisque
Informations financières
A propos du prix
Prix de vente
Prix au m² : 2 864 € / m²

Calcul de vos mensualités
- Montant emprunté
- Coût des intérêts
-
Coût des intérêts :
88531 €