property

Maison à vendre 5 pièces • 4 chambres • 174 m2

249 000 €

Maison à vendre 5 pièces • 4 chambres • 174 m2 Brignoles

249 000 €

Prix au m² : 1 432 € / m²

Référence  ENVMA190001314

decoration todo
IMOZEN

55 annonces

Six-Fours-les-Plages

Description du bien

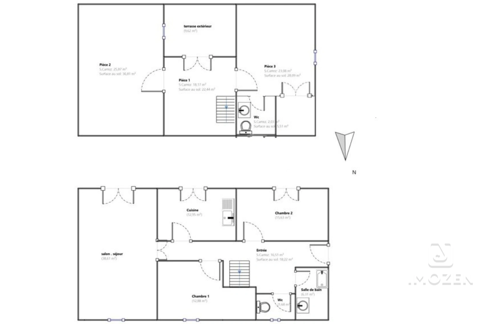
BRIGNOLES -Maison de ville de caractère avec grande terrasse, jardin et stationnementsIdéalement située en plein centre-ville de Brignoles. Cette maison de ville des années 60 offre de beaux volumes, une luminosité remarquable et un cadre de vie pratique, à proximité immédiate des commodités. Développant environ 175 m² habitables (199m² surface sol), la maison se compose de 5 pièces, dont 4 chambres et un bureau, parfaitement adaptées à une vie de famille. Le salon séjour spacieux et lumineux, associé à la cuisine indépendante, bénéficie de larges ouvertures par portes-fenêtres, offrant une circulation fluide et naturelle vers l’extérieur. À l’extérieur, vous profiterez d’une très grande terrasse, véritable prolongement des espaces de vie, ainsi que l’une des chambres. Sous cette terrasse se trouvent deux caves, idéales pour le rangement. La maison est implantée sur un terrain plat, clos et arboré d’environ 387 m² mais utile environ 140m². Côté stationnement, une allée privative permet de garer facilement deux véhicules à l'intérieur de la propriété, avec un portillon d’accès. Un garage complète l’ensemble, davantage adapté à un usage de stockage ou à un véhicule de petit gabarit. Des travaux de modernisation sont à prévoir (menuiseries, chauffage, électricité), offrant l’opportunité de repensez les prestations selon vos envies et de révéler tout le potentiel de cette maison. La toiture a été révisée et réparée. Une maison au caractère affirmé, à l’emplacement recherché, offrant de belles perspectives d’évolution pour un projet réfléchi et personnalisé. Une propriété au fort potentiel, à la situation rare en centre-ville, qui saura séduire les acquéreurs!!! Une visite, un renseignement, contactez Mme Nathalie Erguy de l'agence Imozen. 'Conformément à l'article L 561.5 du code monétaire et financier, une pièce d'identité vous sera demandé pour l'organisation d'une visite'. Les informations sur les risques auxquels ce bien est exposé sont disponibles sur le site Géorisques : www.georisques.gouv.fr ?

Afficher plus Afficher moins

Caractéristiques du bien

  • Intérieur

    • Surface 174 m2
    • 4 Chambres
    • 2 WC
    • 1 Salle de bain/eau
  • Extérieur

    • Jardin de 140 m2
    • Terrasse
  • Surfaces annexes

    • Garage
  • Environnement

    • Exposition SUD

Diagnostics énergétiques

Consommation énergétique

Emission de gaz

LOCALISATION DU BIEN

Quartier Extension Années 50-70 a à Brignoles

Points d'intérêts

Transports

Éducation

Services publics

Commerces & Services

Géorisque

Les informations sur les risques auxquels ce bien est exposé sont disponibles sur le site Géorisques https://www.georisques.gouv.fr

Informations financières

A propos du prix

Prix de vente

249 000 €

Prix au m² : 1 432 € / m²

Calcul de vos mensualités

Simulez vos prêts en quelques clics !

*Les données de ce simulateur sont indicatives et non contractuelles. Calcul hors assurance et frais de garantie.

Vos mensualités
854 € / mois
  • Montant emprunté
  • Coût des intérêts
  • Coût des intérêts :

    81901
    (d’après le taux d’intérêt annuel moyen : 3.3 %)
decoration
IMOZEN

55 annonces

Six-Fours-les-Plages

Ce bien vous intéresse ?
*
*
*
*
*
*