Immeuble à vendre 612 m2 La Môle

2 080 000 €

Prix au m² : 3 399 € / m²

Référence  6806

decoration todo
CLV Immobilier

44 annonces

Cogolin

Description du bien

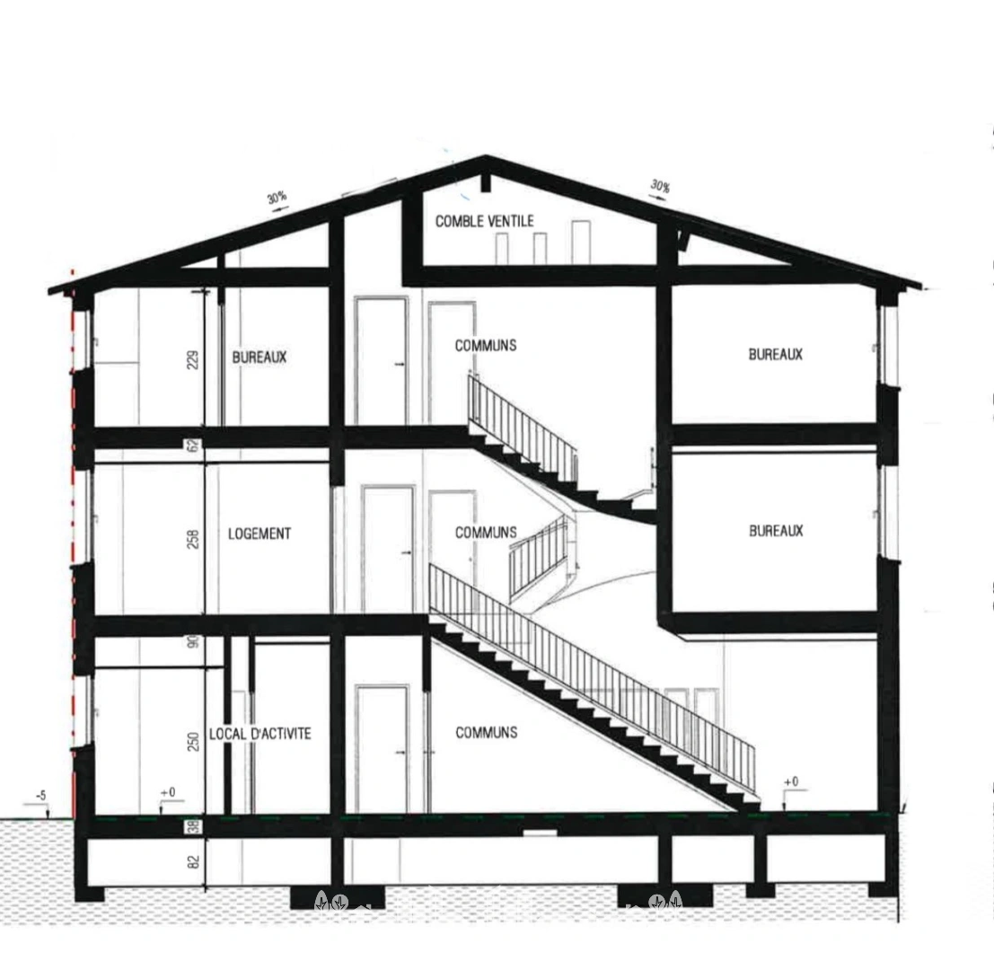
Investisseurs, entreprises, les 3 Agences vous proposent cet immeuble mixte neuf de 612 m² équipé d'un ascenseur ,composé comme suit : - Au RDC = 2 entrepôts de 82 m² chacun . - Au 1er étage = 2 appartements T2 de 30 m² + 2 espaces de co-working comprenant salle d'attente, sanitaires/cuisine, différents espaces de travail/ bureaux lumineux et fonctionnels. Les deux espaces d'une surface totale de 122 m² communiquent et peuvent être reliés ou séparés selon les besoins. - Au deuxième étage = 2 autres espaces de travail de 82 m² chacun et identiques dans la distibution des pièces comprenant 3 bureaux- 1 salle de réunion- cuisine - sanitaires -loggia de 8.5m². Prêt à l'emploi car neuf, Il est équipé d'un ascenseur et boites aux lettres dans le hall commun. Parkings privatif devant l'immeuble et parking libre et facile dans la zone. Une excellente visibilité sur l'axe routier principal de LA MOLE saura mettre en valeur votre enseigne ou celles de vos futurs locataires à seulement 30 minutes de St TROPEZ. Fonctionnel et modulable, cet immeuble prêt à l'emploi car neuf et meublé offrant des prestations haut de gamme saura répondre aux besoins d'entreprises/ cabinets/ professions libérales et activités indépendantes diverses.Afin d'en dégager une rentabilité, il peut aussi être mis en location entièrement ou en partie . L'équipe des 3 Agences sera ravie de vous accompagner dans votre projet, contactez-nous au 04.94.54.59.16 pour plus de détails.

Afficher plus Afficher moins

Caractéristiques du bien

  • Intérieur

    • Surface 612 m2
    • Climatisation
  • Extérieur

    • Terrasse
  • Surfaces annexes

    • Bâtiment de 2 étages
  • Accessibilité

    • Accès PMR
  • Environnement

    • Environnement zone d'activité

LOCALISATION DU BIEN

Quartier La Môle à La Môle

Points d'intérêts

Transports

Éducation

Services publics

Commerces & Services

Géorisque

Les informations sur les risques auxquels ce bien est exposé sont disponibles sur le site Géorisques https://www.georisques.gouv.fr

Informations financières

A propos du prix

Prix de vente

2 080 000 €

Prix au m² : 3 399 € / m²

Calcul de vos mensualités

Simulez vos prêts en quelques clics !

*Les données de ce simulateur sont indicatives et non contractuelles. Calcul hors assurance et frais de garantie.

Vos mensualités
7134 € / mois
  • Montant emprunté
  • Coût des intérêts
  • Coût des intérêts :

    684152
    (d’après le taux d’intérêt annuel moyen : 3.3 %)
decoration
CLV Immobilier

44 annonces

Cogolin

Ce bien vous intéresse ?
*
*
*
*
*
*