property

Architecture à vendre 2 pièces • 1 chambre • 59.29 m2

52 000 €

Architecture à vendre 2 pièces • 1 chambre • 59.29 m2 Hyères

52 000 €

Prix au m² : 878 € / m²

Référence  29850

decoration todo
Grech Viager

26 annonces

Toulon

Description du bien

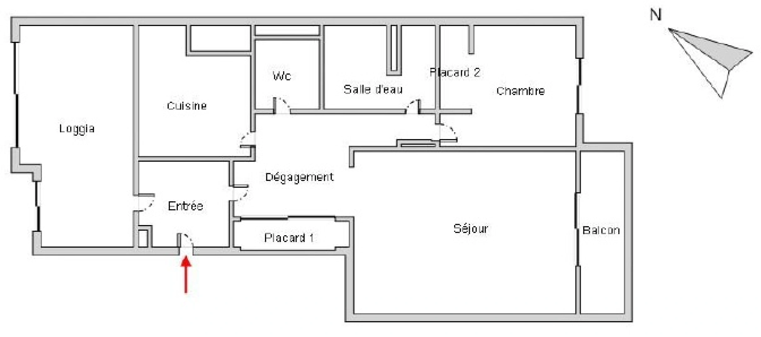
VIAGER OCCUPE - A Hyères, quartier Centre, à 2 pas de toutes les commodités, dans une copropriété de 28 lots d'habitation construite en 1976, au 4ème et dernier étage avec ascenseur, un appartement T2 de 47,64 m² (Carrez) et 59,29 m² au sol comprenant hall d’entrée, salon, cuisine aménagée, 1 chambre, salle d’eau, wc indépendants, rangements. Le tout en très bon état. Terrasse au Nord de 6,75 m², terrasse au sud de 11,43 m². Place de parking aérien inclus. Une aubaine, vous investissez dans une copropriété qui n'aura plus de frais importants du fait que d'Importants travaux ont été votés par la copropriété (1,2 M€) : ravalement de façades, rénovation toiture, étanchéité terrasses, ferronerie, VMC,… qui restent à la charge du vendeur (quote part 33.607 €) ! Ces travaux sont en cours. Vendu en viager occupé sur 1 tête femme de 76 ans. Valeur vénale : 200.000 €. Bouquet : 52.000 € et rente : 400 €/mois. Espérance de vie statistique : 15,68 ans. Une superbe opportunité avec une décote de 40%. Concernant les charges courantes de copropriété : 579 € sur les 919 € annuels (2024) restent à la charge du vendeur (rapport bailleur / locataire).

Afficher plus Afficher moins

Caractéristiques du bien

  • Intérieur

    • Surface 59.29 m2
    • 1 Chambres
    • 1 WC
    • Climatisation
    • Cuisine EQUIPEE
  • Extérieur

    • Terrasse
  • Surfaces annexes

    • Etage 4
    • Bâtiment de 4 étages
  • Copropriété

    • Nombre de lots: 28
  • Environnement

    • Exposition NORD-SUD
    • Vue Dégagée - Dernier étage

Diagnostics énergétiques

Consommation énergétique

Emission de gaz

LOCALISATION DU BIEN

Quartier Centre à Hyères

Points d'intérêts

Transports

Éducation

Services publics

Commerces & Services

Géorisque

Les informations sur les risques auxquels ce bien est exposé sont disponibles sur le site Géorisques https://www.georisques.gouv.fr

Informations financières

A propos du prix

Prix de vente

52 000 €

Prix au m² : 878 € / m²

  • Charge de copropriété
    86 € / an

    Montant annuel de la quote-part du budget prévisionnel des dépenses courantes.

  • Taxe foncière
    944 € / an

Calcul de vos mensualités

Simulez vos prêts en quelques clics !

*Les données de ce simulateur sont indicatives et non contractuelles. Calcul hors assurance et frais de garantie.

Vos mensualités
178 € / mois
  • Montant emprunté
  • Coût des intérêts
  • Coût des intérêts :

    17104
    (d’après le taux d’intérêt annuel moyen : 3.3 %)
decoration
Grech Viager

26 annonces

Toulon

Ce bien vous intéresse ?
*
*
*
*
*
*