Terrain à vendre Le Lavandou

690 000 €

Référence  VTE40008224

decoration todo
AGNES MALECKI CAVALIERE ET RAYOL CANADEL

37 annonces

Le Lavandou

Description du bien

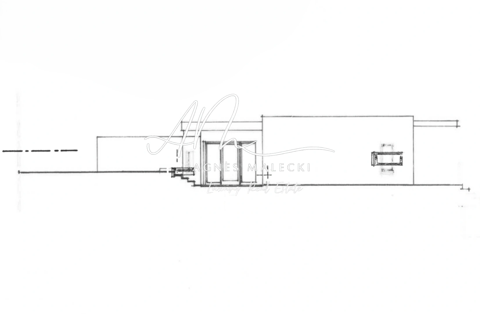
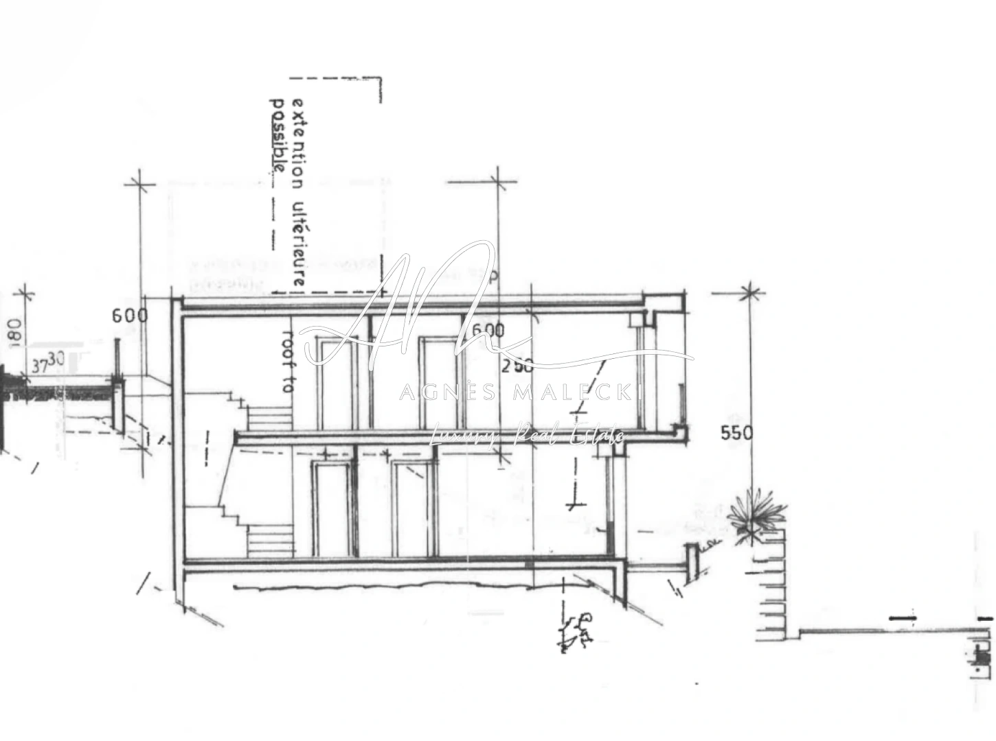
Vous en rêvez, vous pouvez la créer ! À Aiguebelle, superbe terrain plat de 660 m², offrant une vue spectaculaire sur la mer et les îles. Exposé Sud/Sud-Ouest, ce bien rare sur la côte bénéficie d’un environnement calme et préservé. Avec une emprise au sol de 30 %, réalisez une construction jusqu’à 198 m², idéale pour une villa d’architecte pensée sur mesure. D'ailleurs un projet est déjà prévu et n'attend que vous pour commencer ! Le secteur est particulièrement prisé pour sa proximité immédiate avec la mer et son cadre naturel privilégié. Un projet de villa d’architecte est déjà prêt, vous offrant une base solide pour créer la résidence de vos rêves. Besoin d’en savoir plus ? Contactez moi au +33(0)7 50 63 85 16 ou à agnesmalecki02@orange.fr. Georgelin MALECKI, votre expert local en immobilier - RSAC 981 018 971 You dream it, you can create it ! In Aiguebelle, a stunning 660 m² flat plot offering a spectacular view of the sea and the islands. Facing South/Southwest, this rare coastal property enjoys a peaceful and preserved environment. With a 30% building footprint, you can develop up to 198 m², perfect for a custom-designed architect’s villa. In fact, a project is already planned and just waiting for you to bring it to life! This highly sought-after area is known for its close proximity to the sea and its exceptional natural surroundings. An architect’s villa project is already available, providing a solid foundation to create your dream residence. Want to know more ? Contact me at +33(0)7 50 63 85 16 or agnesmalecki02@orange.fr. Georgelin MALECKI, your local real estate expert - RSAC 981 018 971

Afficher plus Afficher moins

LOCALISATION DU BIEN

Quartier Les Calanques à Le Lavandou

Points d'intérêts

Transports

Éducation

Services publics

Commerces & Services

Géorisque

Les informations sur les risques auxquels ce bien est exposé sont disponibles sur le site Géorisques https://www.georisques.gouv.fr

Informations financières

A propos du prix

Prix de vente

690 000 €

Calcul de vos mensualités

Simulez vos prêts en quelques clics !

*Les données de ce simulateur sont indicatives et non contractuelles. Calcul hors assurance et frais de garantie.

Vos mensualités
2367 € / mois
  • Montant emprunté
  • Coût des intérêts
  • Coût des intérêts :

    226954
    (d’après le taux d’intérêt annuel moyen : 3.3 %)
decoration
AGNES MALECKI CAVALIERE ET RAYOL CANADEL

37 annonces

Le Lavandou

Ce bien vous intéresse ?
*
*
*
*
*
*