Terrain à batir à vendre Violès

169 900 €

Référence  VIOLES02

decoration todo
Cogefim Bama Services Transaction

42 annonces

Nîmes

Description du bien

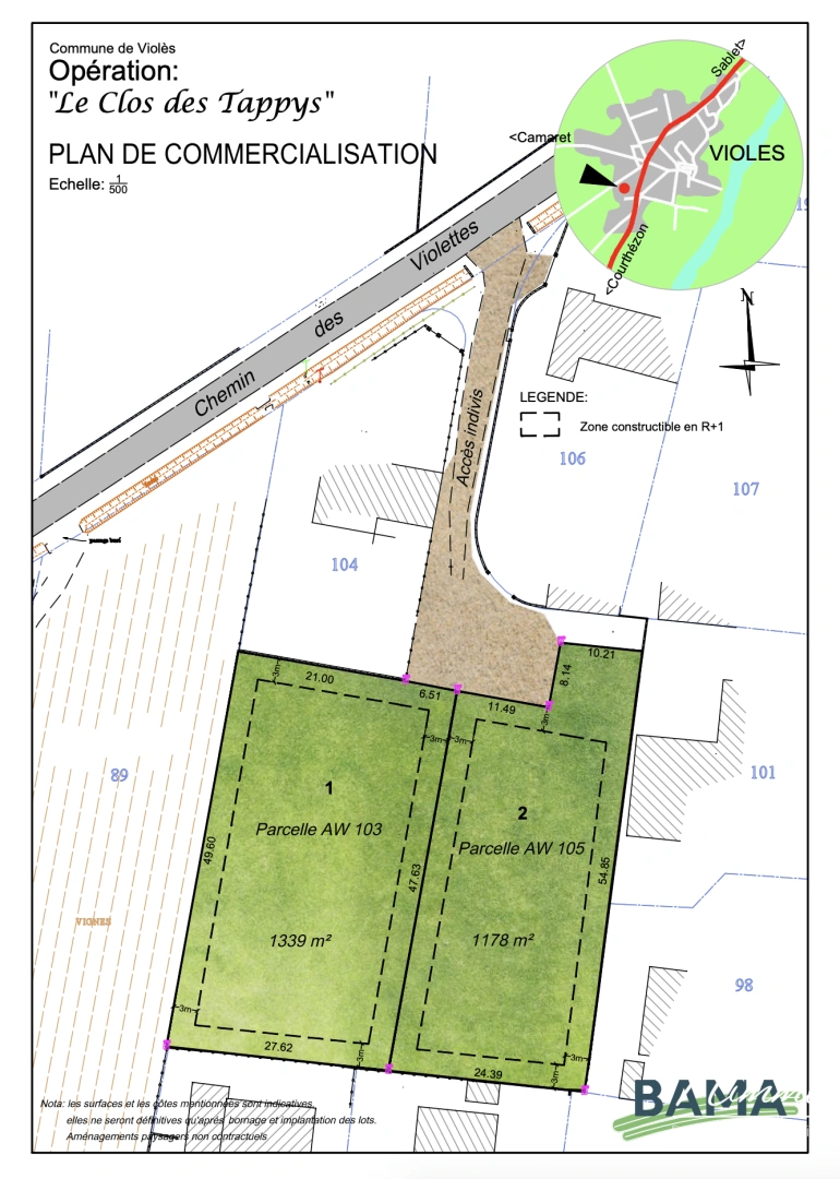
A 35 mn d’Avignon et à 15 mn de Vaison-la-Romaine, au cœur d’un quartier résidentiel, au calme terrain de 1 173 m2 à 169 900€. Viabilisé, libre de constructeur. DP délivrée le 15/12/22 consultable en mairie de Violès.

Afficher plus Afficher moins

LOCALISATION DU BIEN

Quartier Violès à Violès

Points d'intérêts

Transports

Éducation

Services publics

Commerces & Services

Géorisque

Les informations sur les risques auxquels ce bien est exposé sont disponibles sur le site Géorisques https://www.georisques.gouv.fr

Informations financières

A propos du prix

Prix de vente

169 900 €

Calcul de vos mensualités

Simulez vos prêts en quelques clics !

*Les données de ce simulateur sont indicatives et non contractuelles. Calcul hors assurance et frais de garantie.

Vos mensualités
583 € / mois
  • Montant emprunté
  • Coût des intérêts
  • Coût des intérêts :

    55883
    (d’après le taux d’intérêt annuel moyen : 3.3 %)
decoration
Cogefim Bama Services Transaction

42 annonces

Nîmes

Ce bien vous intéresse ?
*
*
*
*
*
*