Terrain à vendre Villelaure
Référence HB14
Description du bien
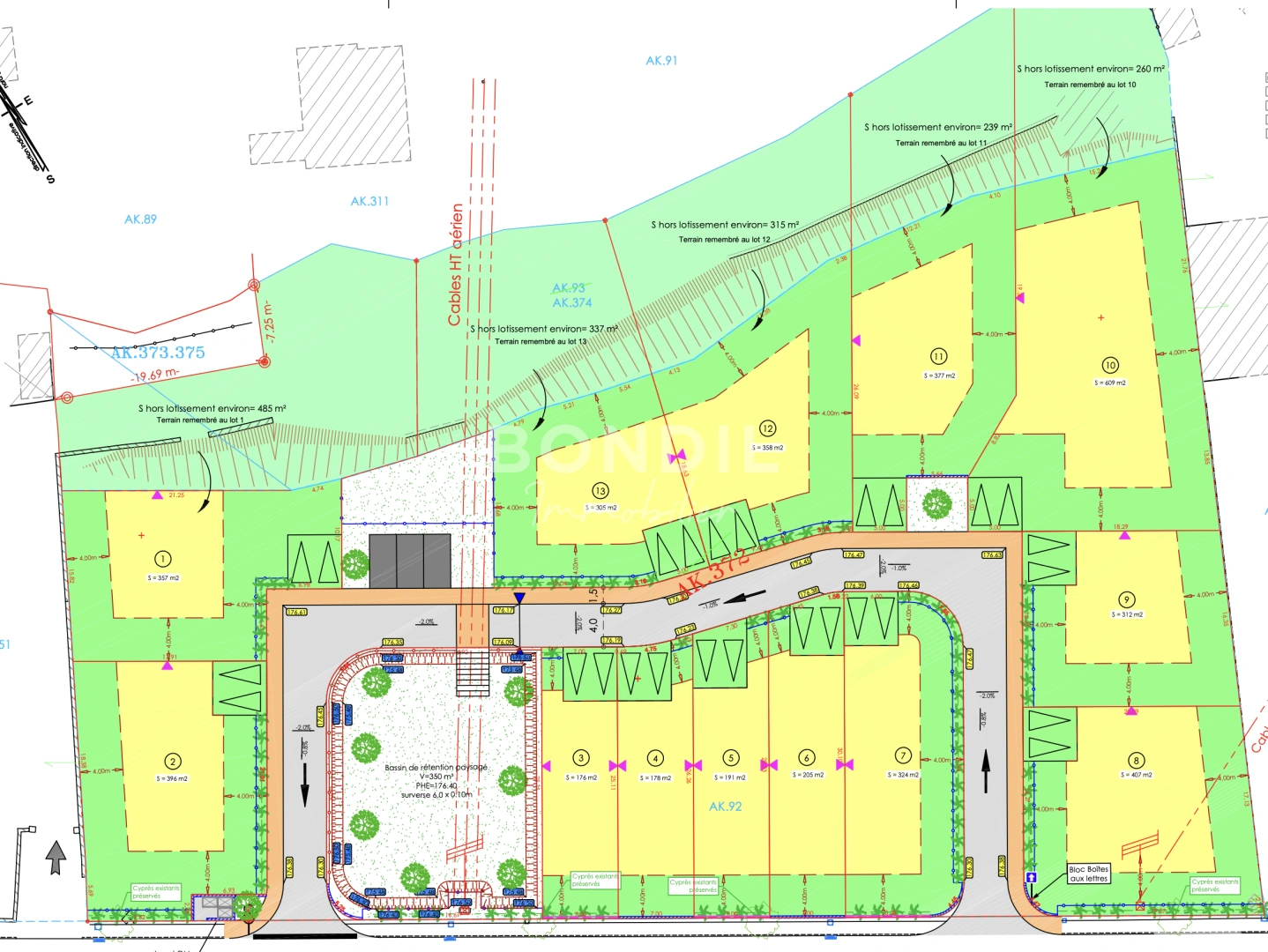
Nouveau lotissement exclusif – Le Clos Ricard Jaqueme à Villelaure En exclusivité, découvrez 13 terrains à bâtir viabilisés et aménagés, libre constructeur, au sein du lotissement Le Clos Ricard Jaqueme. Surfaces disponibles : de 176 m² à 869 m² Prix : de 129 000 € à 183 000 € Atouts de l’emplacement : • À seulement 7 minutes de l’accès autoroute • 5 minutes de Pertuis et de toutes les commodités • Proximité d’Aix-en-Provence et du Luberon • Vue dégagée sur la plaine et les collines environnantes, avec la Sainte-Victoire en toile de fond Les plus du projet : • Terrains plats, viabilisés et aménagés • Libre choix du constructeur • Environnement calme et verdoyant, cadre idéal pour un projet familial ou résidentiel Ce nouveau lotissement offre une opportunité rare de bâtir votre maison dans un secteur recherché, alliant confort de vie, nature et accessibilité. Contactez-nous dès aujourd’hui pour recevoir le plan de composition et réserver votre futur terrain !
LOCALISATION DU BIEN
Quartier Villelaure à Villelaure
Géorisque
Informations financières
A propos du prix
Prix de vente

Calcul de vos mensualités
- Montant emprunté
- Coût des intérêts
-
Coût des intérêts :
47693 €
Achat immobilier sur Villelaure
