property

Villa à vendre 4 pièces • 3 chambres • 85 m2

255 000 €

Villa à vendre 4 pièces • 3 chambres • 85 m2 Villelaure

255 000 €

Prix au m² : 3 000 € / m²

Référence  1812

decoration todo
Les Bastides du midi

13 annonces

Saint-Victoret

Description du bien

Nous vous proposons ce projet de maison neuve R+1, idéalement situé dans un environnement résidentiel, avec le village et les écoles accessibles à pieds.Une opportunité parfaite pour un premier achat ou une résidence familiale. La maison est implantée sur un terrain de 266 m², et répond aux dernières normes RE 2020, garantissant confort thermique, économies d’énergie et qualité de construction. Le projet Maison Rez-de-chaussée + 1 étage Conception moderne et fonctionnelle Prestations soignées Construction conforme RE 2020 Garantie dommage-ouvrage incluse Terrain Surface : 266 m² Terrain proposé en partenariat avec Foncier Idéal Environnement calme et recherché Informations importantes Carrelage : fourniture et pose non comprises Sanitaires : fourniture et pose non comprises Idéal primo-accédants Projet personnalisable selon vos besoins Un projet clé pour devenir propriétaire dans un cadre de vie agréable, proche de toutes les commodités. Frais de notaire 10 200,00€

Afficher plus Afficher moins

Caractéristiques du bien

  • Intérieur

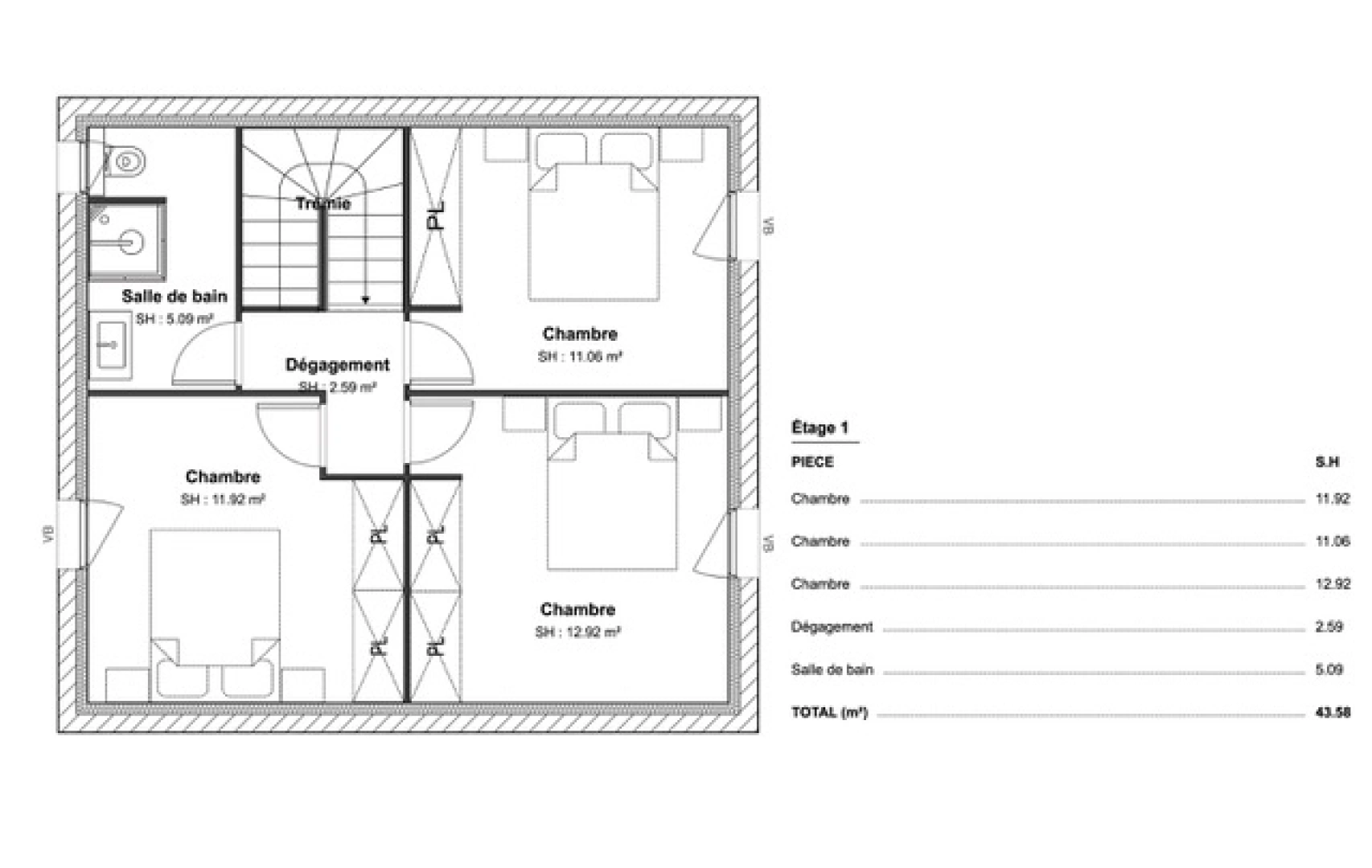
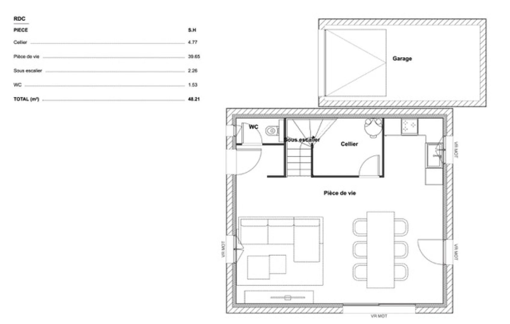
    • Surface 85 m2
    • 3 Chambres
    • 2 WC
    • Climatisation
    • 1 Salle de bain/eau
  • Extérieur

    • Jardin de 266 m2
  • Copropriété

    • Nombre de lots: 17
  • Environnement

    • Exposition EST-OUEST
    • Vue Campagne
    • Environnement Campagne

LOCALISATION DU BIEN

Quartier Villelaure à Villelaure

Points d'intérêts

Transports

Éducation

Services publics

Commerces & Services

Géorisque

Les informations sur les risques auxquels ce bien est exposé sont disponibles sur le site Géorisques https://www.georisques.gouv.fr

Informations financières

A propos du prix

Prix de vente

255 000 €

Prix au m² : 3 000 € / m²

Calcul de vos mensualités

Simulez vos prêts en quelques clics !

*Les données de ce simulateur sont indicatives et non contractuelles. Calcul hors assurance et frais de garantie.

Vos mensualités
875 € / mois
  • Montant emprunté
  • Coût des intérêts
  • Coût des intérêts :

    83874
    (d’après le taux d’intérêt annuel moyen : 3.3 %)
decoration
Les Bastides du midi

13 annonces

Saint-Victoret

Ce bien vous intéresse ?
*
*
*
*
*
*