property

Appartement à vendre 2 pièces • 2 chambres • 57.85 m2

243 800 €

Appartement à vendre 2 pièces • 2 chambres • 57.85 m2 Les Sables d'Olonne

243 800 €

Prix au m² : 4 215 € / m²

Référence  1662

decoration todo
PULLMANN IMMOBILIER

86 annonces

Les Sables d'Olonne

Description du bien

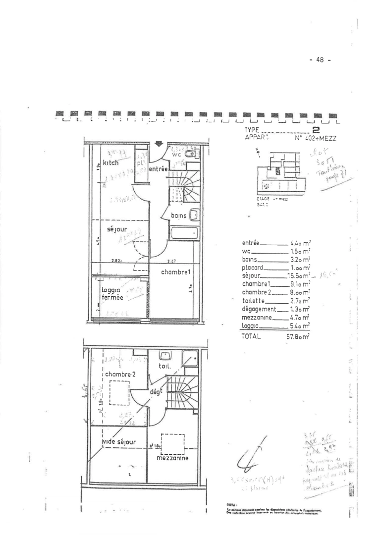
Dans une belle résidence des années 90, cet appartement T3 de 60m2  dispose d'une pièce de vie très lumineuse qui s'ouvre sur la cuisine. A l'entrée: un grand placard,  WC et une salle de bains. Le bien en duplex offre deux chambres à l'étage avec leur salle d'eau et wc.  Belle hauteur de plafond et beaucoup de lumière. La résidence dispose d'un parking vélos.  Beau potentiel pour cet appartement au 4ième étage avec ascenseur. 

Afficher plus Afficher moins

Caractéristiques du bien

  • Intérieur

    • Surface 57.85 m2
    • 2 Chambres
    • 2 WC
    • 1 Salle de bain/eau
    • Cuisine SEMI-EQUIPEE
  • Surfaces annexes

    • Etage 4
    • Bâtiment de 4 étages
  • Copropriété

    • ANCIEN
    • Nombre de lots: 360

Diagnostics énergétiques

Consommation énergétique

Emission de gaz

LOCALISATION DU BIEN

Quartier Commune à Les Sables d'Olonne

Points d'intérêts

Transports

Éducation

Services publics

Commerces & Services

Géorisque

Les informations sur les risques auxquels ce bien est exposé sont disponibles sur le site Géorisques https://www.georisques.gouv.fr

Informations financières

A propos du prix

Prix de vente

243 800 €

Prix au m² : 4 215 € / m²

  • Taxe foncière
    968 € / an

Calcul de vos mensualités

Simulez vos prêts en quelques clics !

*Les données de ce simulateur sont indicatives et non contractuelles. Calcul hors assurance et frais de garantie.

Vos mensualités
836 € / mois
  • Montant emprunté
  • Coût des intérêts
  • Coût des intérêts :

    80191
    (d’après le taux d’intérêt annuel moyen : 3.3 %)
decoration
PULLMANN IMMOBILIER

86 annonces

Les Sables d'Olonne

Ce bien vous intéresse ?
*
*
*
*
*
*