property

Duplex à vendre 4 pièces • 3 chambres • 53 m2

240 000 €

Duplex à vendre 4 pièces • 3 chambres • 53 m2 Les Sables d'Olonne

240 000 €

Prix au m² : 4 529 € / m²

Référence  DMVAP30014611

decoration todo
De Noray Immobilier

86 annonces

Amboise

Description du bien

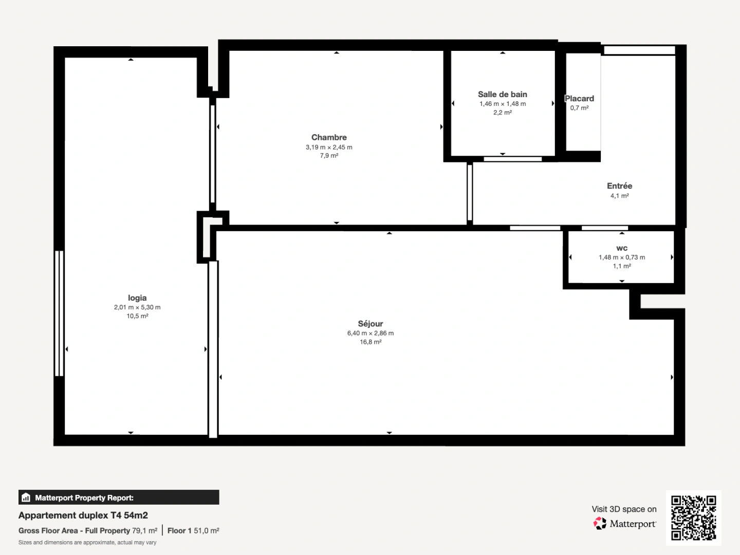
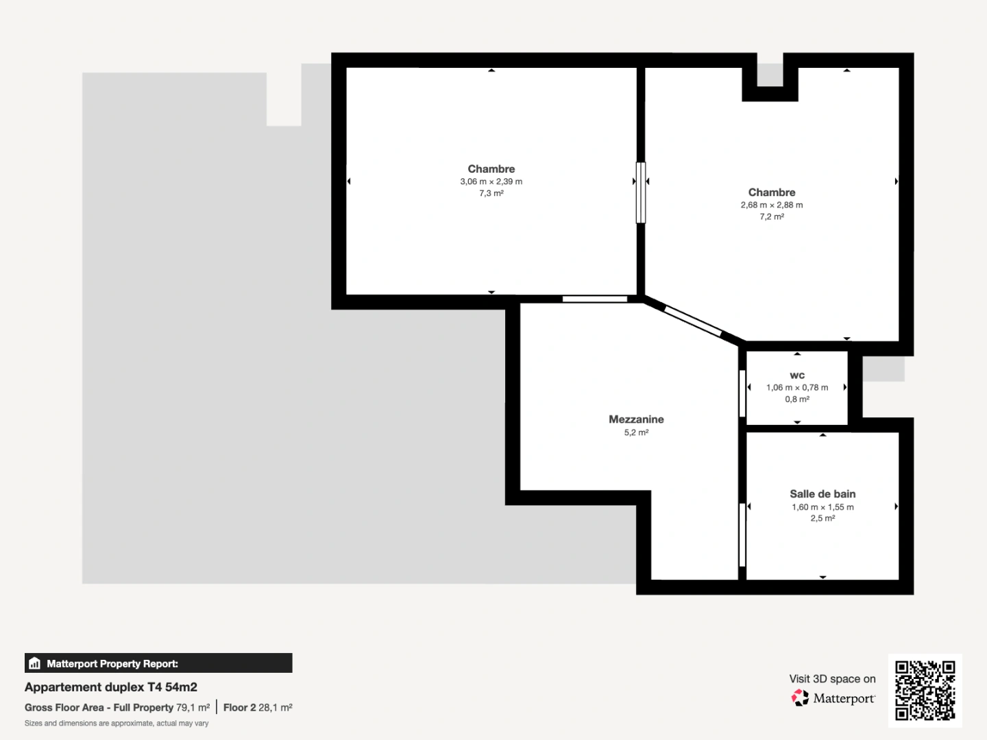
Vente interactive, Découvrez cet appartement en duplex de 3 chambres au 4ème et dernier étage avec ascenceur.  L'appartement est idéalement situé pour se déplacer facilement: à 150m de la Grande Plage des Sables d'Olonne, du Remblai avec ses restaurants. à 400m du cœur de ville avec les commerces et les Halles à 800m de la Gare Son agencement optimisé offre une entrée avec rangements, un wc, salle de bain, chambre, la pièce de vie avec son espace cuisine et l'accès à la loggia. L'étage dispose d'un palier, une salle de douche, un wc et deux chambres. Pour plus de renseignement, contactez Maxime de Noray au O6 59 54 31 91 ou m.denoray@denoray-immobilier.com  Le prix de première offre possible est fixé à 240 000€ (honoraires inclus). Aucuns frais supplémentaires ne sont à prévoir. La participation à la vente interactive est soumise à une visite du bien et à la constitution d’un dossier de financement validé. Toutes les offres seront transmises au vendeur qui restera libre dans la sélection de celle à laquelle il entend donner suite.

Afficher plus Afficher moins

Caractéristiques du bien

  • Intérieur

    • Surface 53 m2
    • 3 Chambres
  • Copropriété

    • Nombre de lots: 34
  • Environnement

    • Exposition OUEST

Diagnostics énergétiques

Consommation énergétique

Emission de gaz

LOCALISATION DU BIEN

Quartier Commune à Les Sables d'Olonne

Points d'intérêts

Transports

Éducation

Services publics

Commerces & Services

Géorisque

Les informations sur les risques auxquels ce bien est exposé sont disponibles sur le site Géorisques https://www.georisques.gouv.fr

Informations financières

A propos du prix

Prix de vente

240 000 €

Prix au m² : 4 529 € / m²

Calcul de vos mensualités

Simulez vos prêts en quelques clics !

*Les données de ce simulateur sont indicatives et non contractuelles. Calcul hors assurance et frais de garantie.

Vos mensualités
823 € / mois
  • Montant emprunté
  • Coût des intérêts
  • Coût des intérêts :

    78941
    (d’après le taux d’intérêt annuel moyen : 3.3 %)
decoration
De Noray Immobilier

86 annonces

Amboise

Ce bien vous intéresse ?
*
*
*
*
*
*