Terrain à batir à vendre Mouchamps

32 500 €

Référence  23569 JR

decoration todo
Les Herbiers

69 annonces

Herbiers

Description du bien

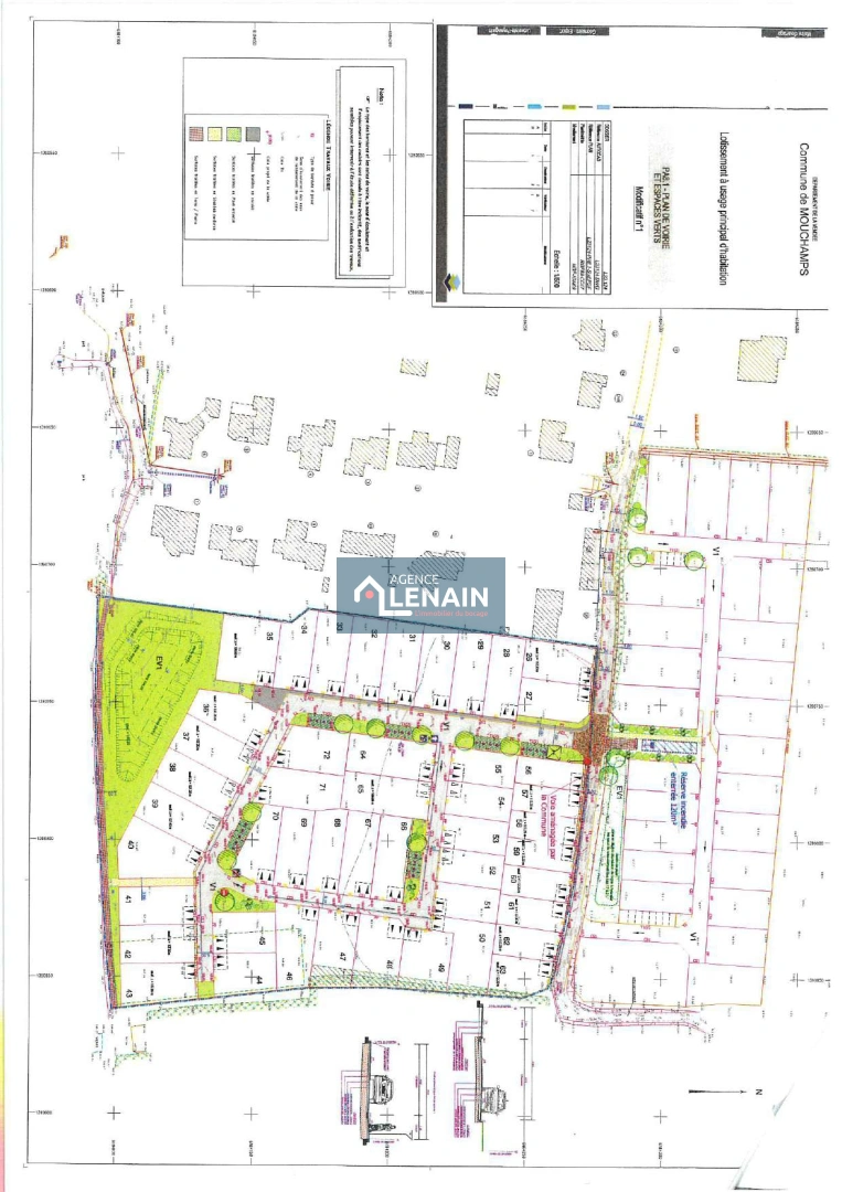
47 Terrains à Bâtir entre 256 m² et 512 m². A VENDRE à partir de 32 500 €. LIBRE DE CONSTRUCTEUR.

Afficher plus Afficher moins

LOCALISATION DU BIEN

Quartier Mouchamps à Mouchamps

Points d'intérêts

Transports

Éducation

Services publics

Commerces & Services

Géorisque

Les informations sur les risques auxquels ce bien est exposé sont disponibles sur le site Géorisques https://www.georisques.gouv.fr

Informations financières

A propos du prix

Prix de vente

32 500 €

Calcul de vos mensualités

Simulez vos prêts en quelques clics !

*Les données de ce simulateur sont indicatives et non contractuelles. Calcul hors assurance et frais de garantie.

Vos mensualités
111 € / mois
  • Montant emprunté
  • Coût des intérêts
  • Coût des intérêts :

    10690
    (d’après le taux d’intérêt annuel moyen : 3.3 %)
decoration
Les Herbiers

69 annonces

Herbiers

Ce bien vous intéresse ?
*
*
*
*
*
*