Maison à vendre 5 pièces • 4 chambres • 135 m2 Châtellerault
Prix au m² : 2 071 € / m²
Référence ATVMA30000430
Description du bien
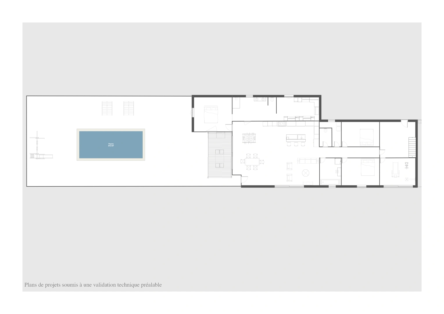
Située à Châtellerault (86100), à seulement trois minutes du centre-ville, de la gare et de toutes les commodités (écoles, commerces, hôpital…), cette maison contemporaine en bois massif, construite en 2015, offre un cadre de vie paisible tout en restant proche de l’animation urbaine. Son emplacement stratégique permet de rejoindre Poitiers en 30 minutes via l’A10 et Paris en seulement 1h30 en TGV. La maison séduit par son architecture moderne et ses volumes généreux. Au cœur de l’habitation, une vaste pièce de vie de 61 m², baignée de lumière, accueille une cuisine aménagée et équipée avec îlot central, pensée pour allier convivialité et fonctionnalité. L’espace nuit comprend une suite parentale avec dressing, salle d'eau et WC attenants, ainsi que deux chambres supplémentaires. Une seconde salle de bains avec douche et baignoire, un WC indépendant, une buanderie, une salle de sport et un grand cellier avec mezzanine aménagée complètent l’ensemble, offrant des possibilités d’aménagement variées (chambre d’amis, salle de jeux, bureau…). À l’extérieur, la maison dispose d’une terrasse en bois équipée d’une pergola bioclimatique, idéale pour profiter des beaux jours. Le terrain, clos de murs et soigneusement arboré, offre une vue dégagée sur Targé et dispose d’un préau ainsi que de nombreuses possibilités de stationnement. La piscine chauffée de 4 x 7,5 mètres, alimentée par pompe à chaleur, constitue un véritable atout pour agrémenter la vie quotidienne. Côté confort, cette maison bénéficie d’excellentes performances énergétiques grâce à son ossature bois, son plancher chauffant relié à une pompe à chaleur, son ballon thermodynamique, ses menuiseries bois en double vitrage avec volets aluminium, sa VMC double flux et son raccordement à l’assainissement collectif. Aucun travaux n’est à prévoir. Cette propriété rare sur le marché allie modernité, confort, efficacité énergétique et qualité de vie, dans un environnement calme et verdoyant à proximité immédiate de la ville.
Caractéristiques du bien
-
Intérieur
- Surface 135 m2
- 4 Chambres
- 1 WC
- 1 Salle de bain/eau
-
Extérieur
- Piscine
-
Surfaces annexes
- Garage
Diagnostics énergétiques
Consommation énergétique
Emission de gaz
LOCALISATION DU BIEN
Quartier Est à Châtellerault
Géorisque
Informations financières
A propos du prix
Prix de vente
Prix au m² : 2 071 € / m²

Calcul de vos mensualités
- Montant emprunté
- Coût des intérêts
-
Coût des intérêts :
91933 €