property

Maison à vendre 5 pièces • 4 chambres • 125 m2

332 778 €

Maison à vendre 5 pièces • 4 chambres • 125 m2 Noé

332 778 €

Prix au m² : 2 663 € / m²

Référence  51716

decoration todo
Sic Habitat vvv

1250 annonces

Tonneins

Description du bien

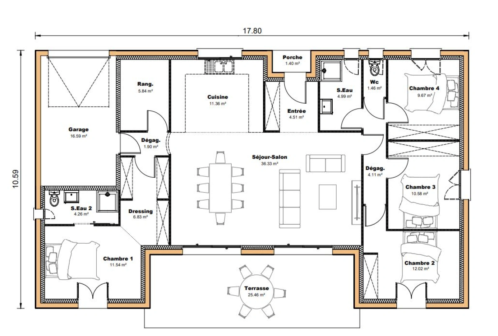
Terrain rare sur le secteurMaison neuve à construireTerrain de 528 m², plat et rectangle. Idéalement situé sur la charmante commune de Noé pour profiter du calme de la campagne à deux pas de toutes les commodités et de l'autoroute pour un accès rapide à Muret et Toulouse, que Maisons Sic vous présente grâce à l'un de nos partenaires fonciers.Vous pourrez, par exemple, y faire construire une maison de plein pied de 125 m² agencée comme suit : entrée avec rangement, garage de 17m², cellier de 6m², espace de vie de 36m², ouvert sur une cuisine de 11m², salle de bains équipée, trois jolies chambres de 10 et 11m² et une superbe suite parentale avec dressing et salle d'eau de 23m² (chauffage gainable, prestations de qualité). Pour un prix de 332 778 euros (frais de notaire et branchements COMPRIS*).Maisons SIC, présent depuis plus de 50 ans dans la construction de maison individuelle, vous propose un accompagnement total pour votre projet de vie. faites le choix d'une maison en ossature bois pour une qualité de vie exceptionnelle (norme RE2020).Plan personnalisable et prestations ajustable à toute vos envies !Renseignements auprès de Julie NEGOL - Maisons SIC agence de Noé au O6 75 09 50 67.* Cette annonce concerne un terrain vendu au prix de 88 000 euros, une maison vendue au prix de 220 000 euros (hors finitions) aux normes RE2020; les frais de notaire s'élèvent à 7 878 euros + 16 900 euros de frais annexes (taxe d'aménagement, terrassement, raccordement...).Ce terrain est vendu directement par un partenaire sans entremise du constructeur Maisons Sic.

Afficher plus Afficher moins

Caractéristiques du bien

  • Intérieur

    • Surface 125 m2
    • 4 Chambres

LOCALISATION DU BIEN

Quartier Noé à Noé

Points d'intérêts

Transports

Éducation

Services publics

Commerces & Services

Géorisque

Les informations sur les risques auxquels ce bien est exposé sont disponibles sur le site Géorisques https://www.georisques.gouv.fr

Informations financières

A propos du prix

Prix de vente

332 778 €

Prix au m² : 2 663 € / m²

Calcul de vos mensualités

Simulez vos prêts en quelques clics !

*Les données de ce simulateur sont indicatives et non contractuelles. Calcul hors assurance et frais de garantie.

Vos mensualités
1141 € / mois
  • Montant emprunté
  • Coût des intérêts
  • Coût des intérêts :

    109457
    (d’après le taux d’intérêt annuel moyen : 3.3 %)
decoration
Sic Habitat vvv

1250 annonces

Tonneins

Ce bien vous intéresse ?
*
*
*
*
*
*