Terrain à vendre Wissous

210 000 €

Référence  1888

decoration todo
Conceptimmo.net

70 annonces

Paris 08

Description du bien

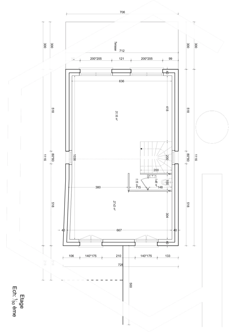
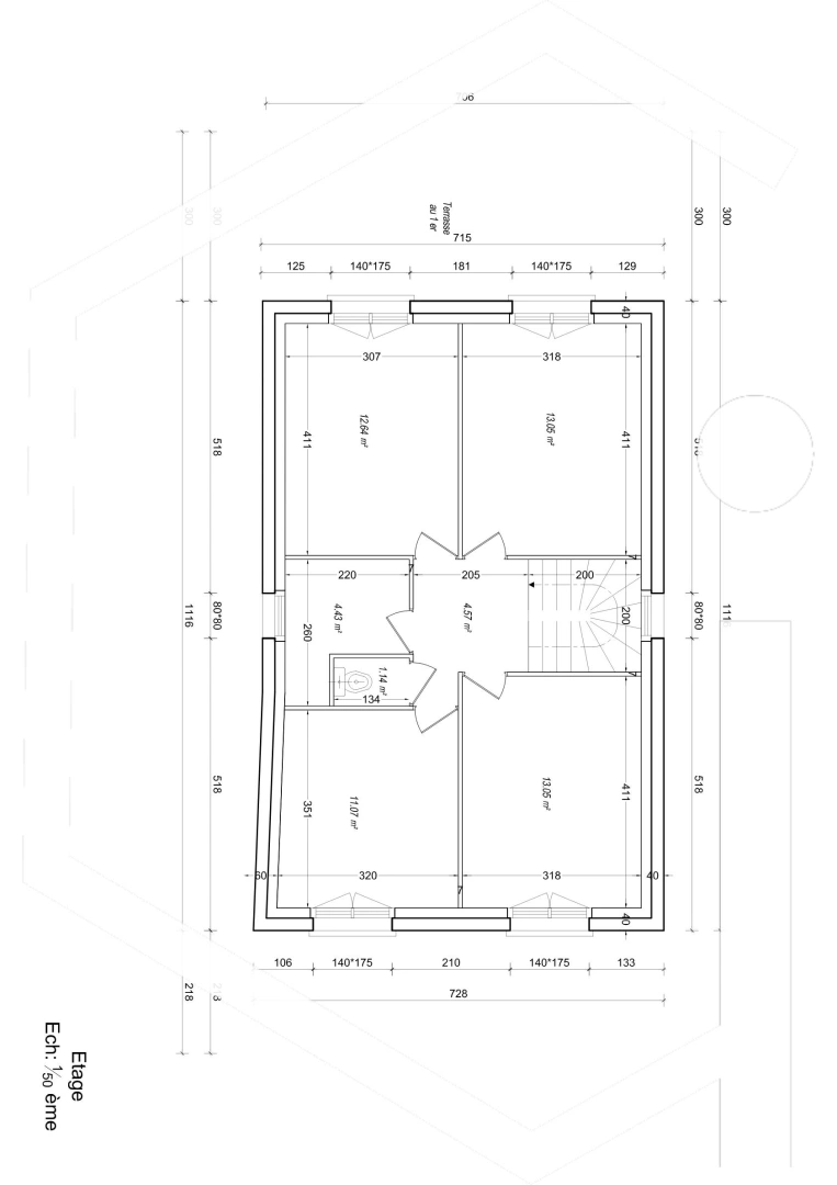
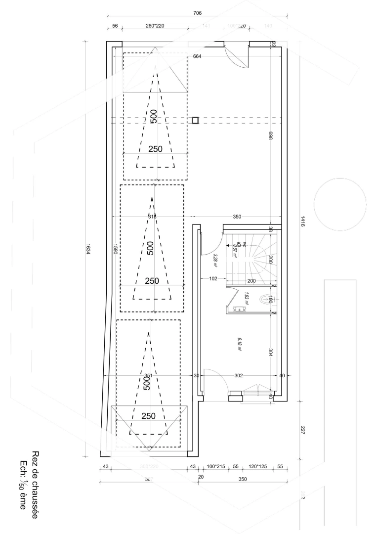
En exclusivité proche Mairie, terrain de 294m2 non viabilisé avec permis de construire accordé, pour une maison sur 3 niveaux de 140m2 composée au rez de jardin d'un garage traversant, une partie remise, une entrée et un wc.   A 1er étage: une pièce à vivre de 60m2 Au 2ème étage: 4 chambres d'environ 13m2 chacunes, une salle de bains et un wc.  Combles perdus au 3ème.

Afficher plus Afficher moins

LOCALISATION DU BIEN

Quartier Wissous à Wissous

Points d'intérêts

Transports

Éducation

Services publics

Commerces & Services

Géorisque

Les informations sur les risques auxquels ce bien est exposé sont disponibles sur le site Géorisques https://www.georisques.gouv.fr

Informations financières

A propos du prix

Prix de vente

210 000 €

Calcul de vos mensualités

Simulez vos prêts en quelques clics !

*Les données de ce simulateur sont indicatives et non contractuelles. Calcul hors assurance et frais de garantie.

Vos mensualités
720 € / mois
  • Montant emprunté
  • Coût des intérêts
  • Coût des intérêts :

    69073
    (d’après le taux d’intérêt annuel moyen : 3.3 %)
decoration
Conceptimmo.net

70 annonces

Paris 08

Ce bien vous intéresse ?
*
*
*
*
*
*